Votre courriel a été envoyé.
The Myles: Bar/Restaurant in Arts District 125 W Imperial Ave 2 068–5 141 pi² d'espace disponible • Commerce de détail • 4 étoiles • Las Vegas, NV 89102



Certaines informations ont été traduites automatiquement.
Faits saillants
- Fully fronting Commerce St. with max visibility and walkability
- HVAC compressors paid for by landlord (@ one ton per 250 SF of Premises Area)
- Commerce Neighbors: Dustland, Stray Pirate, Prowl, The Good Wolf, SerVehZah, Liquid Diet, Meraki (soon), Guerilla Pizza (soon), Sublimotion (soon)
- Electrical, upsized waterline, gasline, sewer, fire riser/sprinklers & grease interceptor stubbed into Premises
- Favorable tenant improvement allowance contemplated for experienced operator(s)
Tous les espaces disponibles(2)
Afficher les taux de location en
- Espace
- Taille
- Terme
- Taux de location
- Utilisation de l’espace
- Aménagement
- Disponible
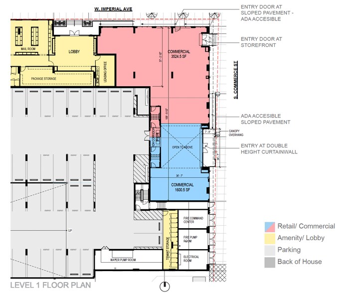
Your premises will be delivered with a substantial amount of work completed by landlord for your benefit. Ample electrical, upsized water line, gas, sewer, community grease interceptor all stubbed into space and fire-riser complete plus HVAC compressors (at one ton per 250 SF of Premises area place on roof with drops into your suite). With delivery anticipated in April 2026, you've time to sign your lease, design and permit your plans before receiving the keys. You can hit the ground running and ready to build out your improvements day one. A seasoned operator can take delivery and complete its build out with time to spare for soft opening before commencement of regular rent payments. Your Premises will front the sidewalk on the west side of Commerce St (across from Prowl, The Good Wolf and Mi Barrio) with a 7-story building casting shade early in the day. This will benefit your sidewalk dining options in the public right of way (available through the City via encroachment permit). Floor-to-ceiling window and generous ceiling heights allow for max visibility from traffic and pedestrians and offer the opportunity to provide your patrons with a truly unique experience for the Arts District.
- Le taux de location ne comprend pas les services publics, les services de bâtiment ou les dépenses immobilières.
- Espace en excellent état
- Fully frontage on Commerce St. with max visibility
- HVAC compressors paid for by landlord
- Electrical, upsized water & gas line stubbed
- Partiellement construit comme Espace pour un restaurant ou un café
- Plafonds finis: 12’6” - 22’6”
- Adjacent city-operated parking lot
- Generous ceiling heights
- Fire riser/sprinklers & grease interceptor stubbed
Your premises will be delivered with a substantial amount of work completed by landlord for your benefit. Ample electrical, upsized water line, gas, sewer, community grease interceptor all stubbed into space and fire-riser complete plus HVAC compressors (at one ton per 250 SF of Premises area place on roof with drops into your suite). With delivery anticipated in April 2026, you've time to sign your lease, design and permit your plans before receiving the keys. You can hit the ground running and ready to build out your improvements day one. A seasoned operator can take delivery and complete its build out with time to spare for soft opening before commencement of regular rent payments. Your Premises will front the sidewalk on the west side of Commerce St (across from Prowl, The Good Wolf and Mi Barrio) with a 7-story building casting shade early in the day. This will benefit your sidewalk dining options in the public right of way (available through the City via encroachment permit). Floor-to-ceiling window and generous ceiling heights allow for max visibility from traffic and pedestrians and offer the opportunity to provide your patrons with a truly unique experience for the Arts District.
- Le taux de location ne comprend pas les services publics, les services de bâtiment ou les dépenses immobilières.
- Espace en excellent état
- Adjacent city-operated parking lot
- Generous ceiling heights
- Grease interceptor & fire riser/sprinklers stubbed
- Partiellement construit comme Espace pour un restaurant ou un café
- Fully frontage on Commerce St. with max visibility
- HVAC compressors paid for by landlord
- Electrical, upsized water, gas & sewer stubbed
| Espace | Taille | Terme | Taux de location | Utilisation de l’espace | Aménagement | Disponible |
| 1er étage, ste 100 | 3 073 pi² | Négociable | 61,99 $ CAD/pi²/an 5,17 $ CAD/pi²/mois 190 488 $ CAD/an 15 874 $ CAD/mois | Commerce de détail | construction partielle | Maintenant |
| 1er étage, ste 120 | 2 068 pi² | Négociable | 61,99 $ CAD/pi²/an 5,17 $ CAD/pi²/mois 128 190 $ CAD/an 10 683 $ CAD/mois | Commerce de détail | construction partielle | Maintenant |
1er étage, ste 100
| Taille |
| 3 073 pi² |
| Terme |
| Négociable |
| Taux de location |
| 61,99 $ CAD/pi²/an 5,17 $ CAD/pi²/mois 190 488 $ CAD/an 15 874 $ CAD/mois |
| Utilisation de l’espace |
| Commerce de détail |
| Aménagement |
| construction partielle |
| Disponible |
| Maintenant |
1er étage, ste 120
| Taille |
| 2 068 pi² |
| Terme |
| Négociable |
| Taux de location |
| 61,99 $ CAD/pi²/an 5,17 $ CAD/pi²/mois 128 190 $ CAD/an 10 683 $ CAD/mois |
| Utilisation de l’espace |
| Commerce de détail |
| Aménagement |
| construction partielle |
| Disponible |
| Maintenant |
1er étage, ste 100
| Taille | 3 073 pi² |
| Terme | Négociable |
| Taux de location | 61,99 $ CAD/pi²/an |
| Utilisation de l’espace | Commerce de détail |
| Aménagement | construction partielle |
| Disponible | Maintenant |
Your premises will be delivered with a substantial amount of work completed by landlord for your benefit. Ample electrical, upsized water line, gas, sewer, community grease interceptor all stubbed into space and fire-riser complete plus HVAC compressors (at one ton per 250 SF of Premises area place on roof with drops into your suite). With delivery anticipated in April 2026, you've time to sign your lease, design and permit your plans before receiving the keys. You can hit the ground running and ready to build out your improvements day one. A seasoned operator can take delivery and complete its build out with time to spare for soft opening before commencement of regular rent payments. Your Premises will front the sidewalk on the west side of Commerce St (across from Prowl, The Good Wolf and Mi Barrio) with a 7-story building casting shade early in the day. This will benefit your sidewalk dining options in the public right of way (available through the City via encroachment permit). Floor-to-ceiling window and generous ceiling heights allow for max visibility from traffic and pedestrians and offer the opportunity to provide your patrons with a truly unique experience for the Arts District.
- Le taux de location ne comprend pas les services publics, les services de bâtiment ou les dépenses immobilières.
- Partiellement construit comme Espace pour un restaurant ou un café
- Espace en excellent état
- Plafonds finis: 12’6” - 22’6”
- Fully frontage on Commerce St. with max visibility
- Adjacent city-operated parking lot
- HVAC compressors paid for by landlord
- Generous ceiling heights
- Electrical, upsized water & gas line stubbed
- Fire riser/sprinklers & grease interceptor stubbed
1er étage, ste 120
| Taille | 2 068 pi² |
| Terme | Négociable |
| Taux de location | 61,99 $ CAD/pi²/an |
| Utilisation de l’espace | Commerce de détail |
| Aménagement | construction partielle |
| Disponible | Maintenant |
Your premises will be delivered with a substantial amount of work completed by landlord for your benefit. Ample electrical, upsized water line, gas, sewer, community grease interceptor all stubbed into space and fire-riser complete plus HVAC compressors (at one ton per 250 SF of Premises area place on roof with drops into your suite). With delivery anticipated in April 2026, you've time to sign your lease, design and permit your plans before receiving the keys. You can hit the ground running and ready to build out your improvements day one. A seasoned operator can take delivery and complete its build out with time to spare for soft opening before commencement of regular rent payments. Your Premises will front the sidewalk on the west side of Commerce St (across from Prowl, The Good Wolf and Mi Barrio) with a 7-story building casting shade early in the day. This will benefit your sidewalk dining options in the public right of way (available through the City via encroachment permit). Floor-to-ceiling window and generous ceiling heights allow for max visibility from traffic and pedestrians and offer the opportunity to provide your patrons with a truly unique experience for the Arts District.
- Le taux de location ne comprend pas les services publics, les services de bâtiment ou les dépenses immobilières.
- Partiellement construit comme Espace pour un restaurant ou un café
- Espace en excellent état
- Fully frontage on Commerce St. with max visibility
- Adjacent city-operated parking lot
- HVAC compressors paid for by landlord
- Generous ceiling heights
- Electrical, upsized water, gas & sewer stubbed
- Grease interceptor & fire riser/sprinklers stubbed
Faits sur la propriété
| Superficie totale disponible | 5 141 pi² | Style d’appartement | De hauteur moyenne |
| Nombre d’unités | 311 | Taille du bâtiment | 300 000 pi² |
| Type de propriété | Immeuble residentiel | Année de construction | 2026 |
| Sous-type de propriété | Appartement | État de la construction | En construction |
| Superficie totale disponible | 5 141 pi² |
| Nombre d’unités | 311 |
| Type de propriété | Immeuble residentiel |
| Sous-type de propriété | Appartement |
| Style d’appartement | De hauteur moyenne |
| Taille du bâtiment | 300 000 pi² |
| Année de construction | 2026 |
| État de la construction | En construction |
À propos de la propriété
Espace commercial 5 étoiles optimisé pour des concepts de restaurant et bar, avec des fenêtres pleine hauteur offrant une visibilité et une accessibilité maximales sur Commerce. Avec 311 unités d'appartements et 7 étages situés derrière et au-dessus, votre façade de rue sera entièrement ombragée tôt dans la journée. La Ville est ouverte aux demandes des locataires pour des terrasses sur le trottoir via des permis d'empiètement. Les espaces sont livrés prêts à l'emploi sous forme de coque grise chaude, avec des économies de coûts incroyables offertes par le propriétaire grâce à : (1) un tableau électrique avec une puissance suffisante, (2) une conduite d'eau surdimensionnée, (3) une conduite de gaz, (4) un système de gicleurs/incendie, (5) un séparateur de graisses et (6) des unités de compresseur HVAC déjà installées à raison d'une tonne par 250 pi² de surface. Inscrivez-vous dès aujourd'hui pour avoir le temps de concevoir et d'obtenir les permis pour vos améliorations avant la livraison. Cela vous permettra de démarrer rapidement et de maximiser votre période de loyer gratuit. Le propriétaire est ouvert à la négociation concernant l'allocation pour les améliorations locatives, en fonction des termes du bail, de l'utilisation prévue par le locataire et de son expérience/historique opérationnel. Appelez ou textez Michael Park au 702.235.7300 pour plus d'informations.
Principaux détaillants à proximité
Présenté par
The Myles: Bar/Restaurant in Arts District | 125 W Imperial Ave
Hmm, il semble y avoir eu une erreur lors de l’envoi de votre message. Veuillez réessayer.
Merci! Votre message a été envoyé.




