Votre courriel a été envoyé.
Office | Medical | Tech - 500 to 5,000 SF 1250 E Hallandale Beach Blvd 1 129–11 708 pi² d'espace disponible • Bureau • Hallandale Beach, FL 33009



Certaines informations ont été traduites automatiquement.
Faits saillants
- Stationnement gratuit couvert en libre-service pour tous les locataires et visiteurs
- Accès facile aux commodités et aux divertissements environnants
- Café et espace d'attente assis dans le hall
- Idéalement situé sur le boulevard Hallandale Beach (SR 858) près de l'intersection Biscayne Blvd (US1), à seulement 2 milles à l'est de l'I95
- Personnel de gestion et d'entretien des biens sur place
- Les locataires et les employés du bâtiment bénéficient d'un abonnement à prix réduit au gymnase
Tous les espaces disponibles(8)
Afficher les taux de location en
- Espace
- Taille
- Terme
- Taux de location
- Utilisation de l’espace
- Aménagement
- Disponible
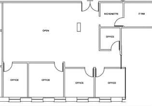
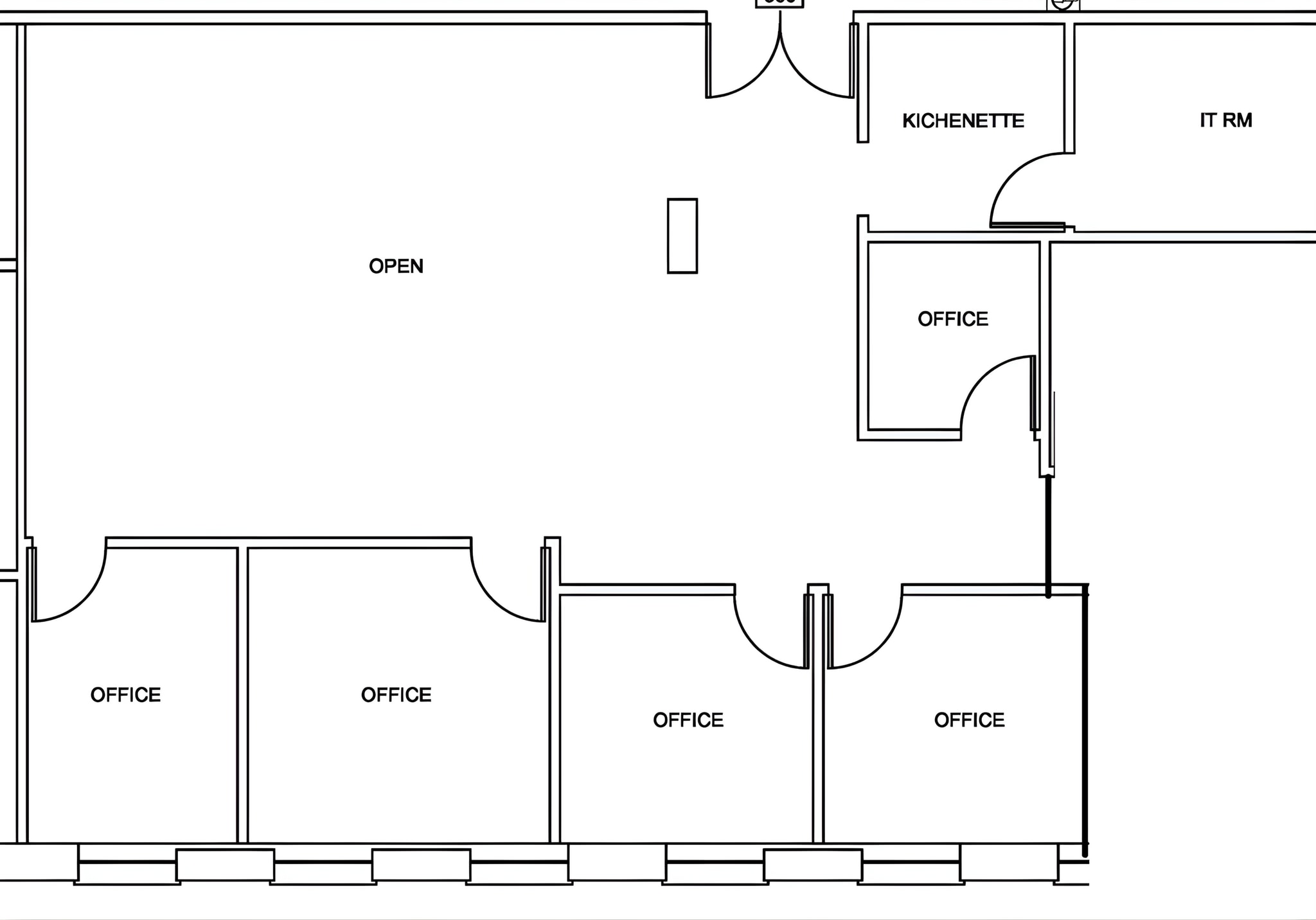
Great for Professional Small Business for 5-7 employees such as Insurance and Sales
- Le taux comprend les services publics, les services de bâtiment et les dépenses immobilières.
- 7 bureaux privés
- Plafonds finis: 9’
- Cuisine
- Lumière naturelle
- Toilettes communes
- Entièrement construit comme Bureau de services professionnels
- Salles de conférence
- Climatisation centrale
- Entreposage sécurisé
- CVCA disponible après les heures de travail
- Le taux comprend les services publics, les services de bâtiment et les dépenses immobilières.
- Le taux comprend les services publics, les services de bâtiment et les dépenses immobilières.
- Le taux comprend les services publics, les services de bâtiment et les dépenses immobilières.
- 3 bureaux privés
- Disposition du plan d’étage ouverte en général
- Le taux comprend les services publics, les services de bâtiment et les dépenses immobilières.
- Le taux comprend les services publics, les services de bâtiment et les dépenses immobilières.
- 3 bureaux privés
- Plafonds finis: 9’
- Climatisation centrale
- Entreposage sécurisé
- CVCA disponible après les heures de travail
- Entièrement construit comme Bureau de services professionnels
- Salles de conférence
- Espace en excellent état
- Cuisine
- Lumière naturelle
- Toilettes communes
- Le taux comprend les services publics, les services de bâtiment et les dépenses immobilières.
| Espace | Taille | Terme | Taux de location | Utilisation de l’espace | Aménagement | Disponible |
| 3e étage, ste 300 | 1 991 pi² | Négociable | 42,14 $ CAD/pi²/an 3,51 $ CAD/pi²/mois 83 910 $ CAD/an 6 992 $ CAD/mois | Bureau | construction complète | Maintenant |
| 3e étage, ste 303 | 1 129 pi² | Négociable | 43,50 $ CAD/pi²/an 3,63 $ CAD/pi²/mois 49 116 $ CAD/an 4 093 $ CAD/mois | Bureau | - | Maintenant |
| 5e étage, ste 501 | 1 168 pi² | Négociable | 43,50 $ CAD/pi²/an 3,63 $ CAD/pi²/mois 50 813 $ CAD/an 4 234 $ CAD/mois | Bureau | - | Maintenant |
| 6e étage, ste 603 | 1 625 pi² | 2-5 ans | 46,22 $ CAD/pi²/an 3,85 $ CAD/pi²/mois 75 112 $ CAD/an 6 259 $ CAD/mois | Bureau | - | Maintenant |
| 8e étage, ste 805 | 1 200 pi² | Négociable | 44,86 $ CAD/pi²/an 3,74 $ CAD/pi²/mois 53 836 $ CAD/an 4 486 $ CAD/mois | Bureau | - | Maintenant |
| 8e étage, ste 809 | 1 461 pi² | Négociable | 47,58 $ CAD/pi²/an 3,97 $ CAD/pi²/mois 69 518 $ CAD/an 5 793 $ CAD/mois | Bureau | - | Maintenant |
| 9e étage, ste 901-A | 1 264 pi² | Négociable | 44,86 $ CAD/pi²/an 3,74 $ CAD/pi²/mois 56 707 $ CAD/an 4 726 $ CAD/mois | Bureau | construction complète | Maintenant |
| 10e étage, ste 1000 | 1 870 pi² | Négociable | 47,58 $ CAD/pi²/an 3,97 $ CAD/pi²/mois 88 979 $ CAD/an 7 415 $ CAD/mois | Bureau | - | Maintenant |
3e étage, ste 300
| Taille |
| 1 991 pi² |
| Terme |
| Négociable |
| Taux de location |
| 42,14 $ CAD/pi²/an 3,51 $ CAD/pi²/mois 83 910 $ CAD/an 6 992 $ CAD/mois |
| Utilisation de l’espace |
| Bureau |
| Aménagement |
| construction complète |
| Disponible |
| Maintenant |
3e étage, ste 303
| Taille |
| 1 129 pi² |
| Terme |
| Négociable |
| Taux de location |
| 43,50 $ CAD/pi²/an 3,63 $ CAD/pi²/mois 49 116 $ CAD/an 4 093 $ CAD/mois |
| Utilisation de l’espace |
| Bureau |
| Aménagement |
| - |
| Disponible |
| Maintenant |
5e étage, ste 501
| Taille |
| 1 168 pi² |
| Terme |
| Négociable |
| Taux de location |
| 43,50 $ CAD/pi²/an 3,63 $ CAD/pi²/mois 50 813 $ CAD/an 4 234 $ CAD/mois |
| Utilisation de l’espace |
| Bureau |
| Aménagement |
| - |
| Disponible |
| Maintenant |
6e étage, ste 603
| Taille |
| 1 625 pi² |
| Terme |
| 2-5 ans |
| Taux de location |
| 46,22 $ CAD/pi²/an 3,85 $ CAD/pi²/mois 75 112 $ CAD/an 6 259 $ CAD/mois |
| Utilisation de l’espace |
| Bureau |
| Aménagement |
| - |
| Disponible |
| Maintenant |
8e étage, ste 805
| Taille |
| 1 200 pi² |
| Terme |
| Négociable |
| Taux de location |
| 44,86 $ CAD/pi²/an 3,74 $ CAD/pi²/mois 53 836 $ CAD/an 4 486 $ CAD/mois |
| Utilisation de l’espace |
| Bureau |
| Aménagement |
| - |
| Disponible |
| Maintenant |
8e étage, ste 809
| Taille |
| 1 461 pi² |
| Terme |
| Négociable |
| Taux de location |
| 47,58 $ CAD/pi²/an 3,97 $ CAD/pi²/mois 69 518 $ CAD/an 5 793 $ CAD/mois |
| Utilisation de l’espace |
| Bureau |
| Aménagement |
| - |
| Disponible |
| Maintenant |
9e étage, ste 901-A
| Taille |
| 1 264 pi² |
| Terme |
| Négociable |
| Taux de location |
| 44,86 $ CAD/pi²/an 3,74 $ CAD/pi²/mois 56 707 $ CAD/an 4 726 $ CAD/mois |
| Utilisation de l’espace |
| Bureau |
| Aménagement |
| construction complète |
| Disponible |
| Maintenant |
10e étage, ste 1000
| Taille |
| 1 870 pi² |
| Terme |
| Négociable |
| Taux de location |
| 47,58 $ CAD/pi²/an 3,97 $ CAD/pi²/mois 88 979 $ CAD/an 7 415 $ CAD/mois |
| Utilisation de l’espace |
| Bureau |
| Aménagement |
| - |
| Disponible |
| Maintenant |
3e étage, ste 300
| Taille | 1 991 pi² |
| Terme | Négociable |
| Taux de location | 42,14 $ CAD/pi²/an |
| Utilisation de l’espace | Bureau |
| Aménagement | construction complète |
| Disponible | Maintenant |
Great for Professional Small Business for 5-7 employees such as Insurance and Sales
- Le taux comprend les services publics, les services de bâtiment et les dépenses immobilières.
- Entièrement construit comme Bureau de services professionnels
- 7 bureaux privés
- Salles de conférence
- Plafonds finis: 9’
- Climatisation centrale
- Cuisine
- Entreposage sécurisé
- Lumière naturelle
- CVCA disponible après les heures de travail
- Toilettes communes
3e étage, ste 303
| Taille | 1 129 pi² |
| Terme | Négociable |
| Taux de location | 43,50 $ CAD/pi²/an |
| Utilisation de l’espace | Bureau |
| Aménagement | - |
| Disponible | Maintenant |
- Le taux comprend les services publics, les services de bâtiment et les dépenses immobilières.
5e étage, ste 501
| Taille | 1 168 pi² |
| Terme | Négociable |
| Taux de location | 43,50 $ CAD/pi²/an |
| Utilisation de l’espace | Bureau |
| Aménagement | - |
| Disponible | Maintenant |
- Le taux comprend les services publics, les services de bâtiment et les dépenses immobilières.
6e étage, ste 603
| Taille | 1 625 pi² |
| Terme | 2-5 ans |
| Taux de location | 46,22 $ CAD/pi²/an |
| Utilisation de l’espace | Bureau |
| Aménagement | - |
| Disponible | Maintenant |
- Le taux comprend les services publics, les services de bâtiment et les dépenses immobilières.
- Disposition du plan d’étage ouverte en général
- 3 bureaux privés
8e étage, ste 805
| Taille | 1 200 pi² |
| Terme | Négociable |
| Taux de location | 44,86 $ CAD/pi²/an |
| Utilisation de l’espace | Bureau |
| Aménagement | - |
| Disponible | Maintenant |
- Le taux comprend les services publics, les services de bâtiment et les dépenses immobilières.
8e étage, ste 809
| Taille | 1 461 pi² |
| Terme | Négociable |
| Taux de location | 47,58 $ CAD/pi²/an |
| Utilisation de l’espace | Bureau |
| Aménagement | - |
| Disponible | Maintenant |
9e étage, ste 901-A
| Taille | 1 264 pi² |
| Terme | Négociable |
| Taux de location | 44,86 $ CAD/pi²/an |
| Utilisation de l’espace | Bureau |
| Aménagement | construction complète |
| Disponible | Maintenant |
- Le taux comprend les services publics, les services de bâtiment et les dépenses immobilières.
- Entièrement construit comme Bureau de services professionnels
- 3 bureaux privés
- Salles de conférence
- Plafonds finis: 9’
- Espace en excellent état
- Climatisation centrale
- Cuisine
- Entreposage sécurisé
- Lumière naturelle
- CVCA disponible après les heures de travail
- Toilettes communes
10e étage, ste 1000
| Taille | 1 870 pi² |
| Terme | Négociable |
| Taux de location | 47,58 $ CAD/pi²/an |
| Utilisation de l’espace | Bureau |
| Aménagement | - |
| Disponible | Maintenant |
- Le taux comprend les services publics, les services de bâtiment et les dépenses immobilières.
Aperçu de la propriété
Situé à Hallandale Beach, en Floride, le 12 Fifty Office & Health Center est un immeuble de bureaux de 11 étages offrant 111 794 pieds carrés de bureaux. Construit à l'origine en 1972, l'édifice a fait l'objet d'importantes rénovations en 2022 afin de moderniser ses installations et son infrastructure afin de répondre aux besoins des entreprises d'aujourd'hui. 12 Fifty dispose d'un hall d'accueil qui offre une atmosphère accueillante aux locataires et aux visiteurs. L'immeuble offre également un parking couvert, un équipement essentiel dans cette région tropicale, assurant un accès facile et sécurisé à tous les locataires et clients. Les services supplémentaires comprennent des abonnements à prix réduit à notre centre de conditionnement physique de deux étages et à un café sur place, améliorant l'équilibre travail-vie personnelle des locataires avec des options pratiques de restauration et de remise en forme. Idéalement situé avec un accès facile aux principales autoroutes et aux transports en commun, l'immeuble est idéalement situé pour les entreprises qui cherchent à bénéficier de son emplacement stratégique et de l'économie locale dynamique, peu importe la façon dont vous vous déplacez. 12 Fifty Office & Health Center allie fonctionnalité et commodités à l'intérieur et à l'extérieur, ce qui en fait le premier lieu d'affaires dans le sud de la Floride.
- Accès 24 heures
- Ligne d'autobus
- Garderie
- Centre de conditionnement physique
- Gestionnaire d'immeuble sur place
- Restaurant
- Affichage
- Accessible aux fauteuils roulants
- Lumière naturelle
- Climatisation
Faits sur la propriété
Sélectionner des locataires
- Étage
- Nom du locataire
- Secteur
- 4ᵉ
- All American Insurance Consultants
- Finance et assurances
- PENT.
- Coane and Associates, PLLC
- Services administratifs et de soutien
- 4ᵉ
- First Class Trucking
- Transport et entreposage
- 8ᵉ
- Hollywood Dermatology & Cosmetic Specialists
- Soins de santé et assistance sociale
- 10ᵉ
- My Peonika
- Détaillant
- Multiple
- Premier Health & Fitness
- Services
- 7ᵉ
- Prosperity Wellness & Medspa
- Services
- 10ᵉ
- Toxwell Med Spa & Wellness
- Services
Présenté par
Office | Medical | Tech - 500 to 5,000 SF | 1250 E Hallandale Beach Blvd
Hmm, il semble y avoir eu une erreur lors de l’envoi de votre message. Veuillez réessayer.
Merci! Votre message a été envoyé.









