Votre courriel a été envoyé.
Certaines informations ont été traduites automatiquement.
Tous les espaces disponibles(2)
Afficher les taux de location en
- Espace
- Taille
- Terme
- Taux de location
- Utilisation de l’espace
- État
- Disponible
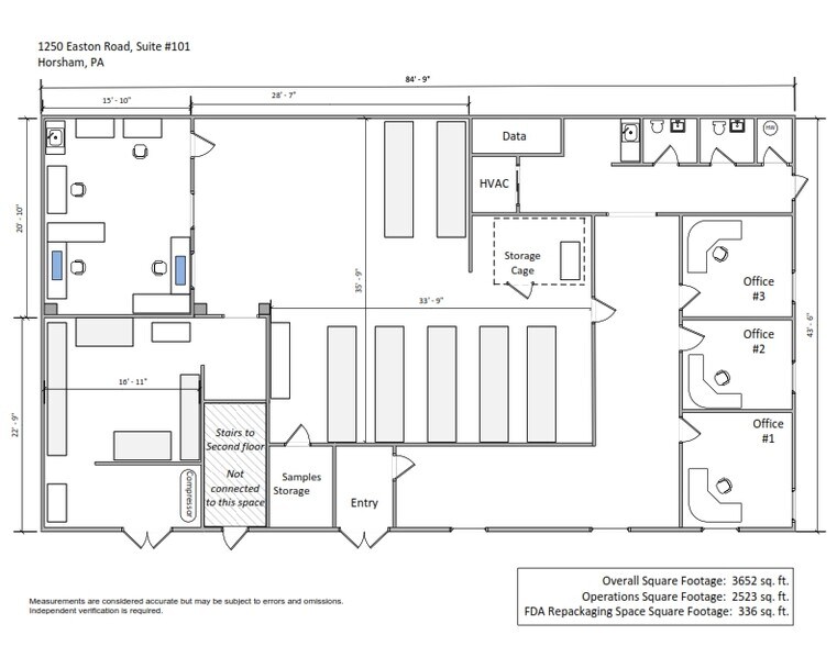
This space is currently configured for a pharmaceutical use which includes a receptionist area; three private offices; a large area demised into a work/storage area with two adjoining conference room/work area sized rooms; two bath facilities and a coffee area.
- Taux de location inscrit plus part proportionnelle des services publics
- Disposition du plan d’étage ouverte en général
- 3 bureaux privés
- 1 poste de travail
- Espace en excellent état
- CVCA disponible après les heures de travail
- Partiellement construit comme Espace de recherche et développement
- Convient pour 10 à 15 personnes
- 2 salles de conférence
- Plafonds finis: 8’
- Peut être associé à un ou plusieurs espaces supplémentaires pour obtenir jusqu’à 7 304 pi² d’espace adjacent.
This nicely finished space is currently configured with a reception area, large +/-1,000 sf open area, 8 private offices, conference room, kitchen and two rest rooms. A floor plan is included herein.
- Taux de location inscrit plus part proportionnelle des services publics
- Disposition du plan d’étage ouverte en général
- 8 bureaux privés
- 15 postes de travail
- Espace en excellent état
- Air central et chauffage
- Lumière naturelle
- Plan ouvert
- Partiellement construit comme Bureau standard
- Convient pour 10 à 30 personnes
- 1 salle de conférence
- Plafonds finis: 8’
- Peut être associé à un ou plusieurs espaces supplémentaires pour obtenir jusqu’à 7 304 pi² d’espace adjacent.
- Aire de réception
- CVCA disponible après les heures de travail
| Espace | Taille | Terme | Taux de location | Utilisation de l’espace | État | Disponible |
| 1er étage, ste 101 S | 3 652 pi² | 3-10 ans | 18,46 $ CAD/pi²/an 1,54 $ CAD/pi²/mois 67 407 $ CAD/an 5 617 $ CAD/mois | Bureau | construction partielle | Maintenant |
| 2e étage, ste 201 S | 3 652 pi² | 3-10 ans | 16,39 $ CAD/pi²/an 1,37 $ CAD/pi²/mois 59 868 $ CAD/an 4 989 $ CAD/mois | Bureau | construction partielle | 30 jours |
1er étage, ste 101 S
| Taille |
| 3 652 pi² |
| Terme |
| 3-10 ans |
| Taux de location |
| 18,46 $ CAD/pi²/an 1,54 $ CAD/pi²/mois 67 407 $ CAD/an 5 617 $ CAD/mois |
| Utilisation de l’espace |
| Bureau |
| État |
| construction partielle |
| Disponible |
| Maintenant |
2e étage, ste 201 S
| Taille |
| 3 652 pi² |
| Terme |
| 3-10 ans |
| Taux de location |
| 16,39 $ CAD/pi²/an 1,37 $ CAD/pi²/mois 59 868 $ CAD/an 4 989 $ CAD/mois |
| Utilisation de l’espace |
| Bureau |
| État |
| construction partielle |
| Disponible |
| 30 jours |
1er étage, ste 101 S
| Taille | 3 652 pi² |
| Terme | 3-10 ans |
| Taux de location | 18,46 $ CAD/pi²/an |
| Utilisation de l’espace | Bureau |
| État | construction partielle |
| Disponible | Maintenant |
This space is currently configured for a pharmaceutical use which includes a receptionist area; three private offices; a large area demised into a work/storage area with two adjoining conference room/work area sized rooms; two bath facilities and a coffee area.
- Taux de location inscrit plus part proportionnelle des services publics
- Partiellement construit comme Espace de recherche et développement
- Disposition du plan d’étage ouverte en général
- Convient pour 10 à 15 personnes
- 3 bureaux privés
- 2 salles de conférence
- 1 poste de travail
- Plafonds finis: 8’
- Espace en excellent état
- Peut être associé à un ou plusieurs espaces supplémentaires pour obtenir jusqu’à 7 304 pi² d’espace adjacent.
- CVCA disponible après les heures de travail
2e étage, ste 201 S
| Taille | 3 652 pi² |
| Terme | 3-10 ans |
| Taux de location | 16,39 $ CAD/pi²/an |
| Utilisation de l’espace | Bureau |
| État | construction partielle |
| Disponible | 30 jours |
This nicely finished space is currently configured with a reception area, large +/-1,000 sf open area, 8 private offices, conference room, kitchen and two rest rooms. A floor plan is included herein.
- Taux de location inscrit plus part proportionnelle des services publics
- Partiellement construit comme Bureau standard
- Disposition du plan d’étage ouverte en général
- Convient pour 10 à 30 personnes
- 8 bureaux privés
- 1 salle de conférence
- 15 postes de travail
- Plafonds finis: 8’
- Espace en excellent état
- Peut être associé à un ou plusieurs espaces supplémentaires pour obtenir jusqu’à 7 304 pi² d’espace adjacent.
- Air central et chauffage
- Aire de réception
- Lumière naturelle
- CVCA disponible après les heures de travail
- Plan ouvert
Aperçu de la propriété
Idéalement situé sur la route 611, à quelques milles de la sortie Willow Grove de la PA Turnpike, ainsi qu'une grande variété de services de détail et de vente au détail. Le 1250 Easton Rd est un immeuble de 46 000 pi2 composé de 30 000 pi2 de bureaux et d'espaces commerciaux à l'avant sur 2 niveaux et de 16 000 pi2 d'espace d'entreposage derrière. Dunkin Donuts et Renaissance Tile sont situés sur la propriété. La propriété se trouve à proximité d'une grande variété de services de vente au détail et de vente au détail.
Faits sur la propriété
Présenté par
1250 Easton Rd
Hmm, il semble y avoir eu une erreur lors de l’envoi de votre message. Veuillez réessayer.
Merci! Votre message a été envoyé.





