Votre courriel a été envoyé.
12501 SW 236th St - AMC PARK SOUTH DADE MULTI-FAMILY DEVELOPMENT Lot • Résidentiel • 6,87 Acres • 17 905 079 $ CAD • Homestead, FL 33032



Certaines informations ont été traduites automatiquement.
Faits saillants de l'investissement
- DÉVELOPPEMENT MULTIFAMILIAL VENDU SOUS RÉSERVE D'UN CHANGEMENT DE ZONAGE ET D'UNE MODIFICATION DE L'UTILISATION DU SOL, DE LA DENSITÉ RU-4 HAUTE DENSITÉ (50 DU/ACRE) ET DE L'APPROBATION DU PLAN DE SITE
- 376 PLACES DE STATIONNEMENT FOURNIES
- À PROXIMITÉ DE LENNAR HOMES, DE COMMERCES ET D'ÉCOLES DE LA RÉGION
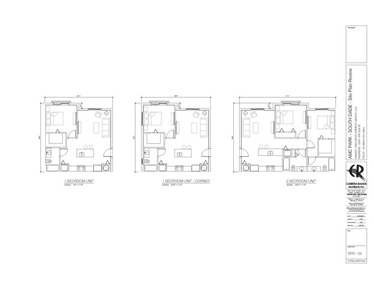
- PLAN DE SITE POUR LE DÉVELOPPEMENT MULTIFAMILIAL DE 248 LOGEMENTS
- LA PROPRIÉTÉ EST SITUÉE À L'EST DE LA ROUTE SOUTH DIXIE, (US-1) AVEC UNE FAÇADE DE 682 PIEDS ET UN ACCÈS SUR LA 125E AVENUE SUD-OUEST ET LA 236TH STREET.
- UN ACCÈS FACILE À CELA. ROUTE DIXIE, (US-1), CIRCA. AUTOROUTE À PÉAGE ET AUTRES ROUTES PRINCIPALES
Résumé de l'annonce
Salle de données Cliquez ici pour accéder à
- Offering Memorandum
Faits sur la propriété
1 Lot disponible
Lot
| Prix | 17 905 079 $ CAD | Taille du lot | 6,87 AC |
| Prix par AC | 2 606 270,65 $ CAD |
| Prix | 17 905 079 $ CAD |
| Prix par AC | 2 606 270,65 $ CAD |
| Taille du lot | 6,87 AC |
AMC PARK SOUTH DADE, 7,27+/- Acres bruts (6,49+/- Net) situés au 12501 SW 236th Street. La demande de modification et de changement de zonage du CDMP de UA (district agricole) à RU-4 (district d'immeubles à haute densité, maximum 50 UD/acre) a été approuvée.
Description
Situé au centre de l'US-1, au cœur d'une communauté en pleine croissance dans le sud-ouest de Miami-Dade. CDMP/ZONAGE DÉJÀ APPROUVÉ POUR LE QUARTIER RU-4 D'HABITATIONS À APPARTEMENTS À HAUTE DENSITÉ ; DENSITÉ MAXIMALE AUTORISÉE (50 DU/ACRE). APPROBATION D'UN PLAN D'IMPLANTATION POUR 248 LOGEMENTS MULTIFAMILIAUX ET 100 % DE LOGEMENTS POUR LA MAIN-D'ŒUVRE (WHU). AVEC (2) ALLÉES D'ACCÈS ; (1) SUR LA 125E AVENUE ET (1) SUR LA 236TH ST. COMPOSÉ DE 6 BÂTIMENTS, 84 UNITÉS (1BD) /164 UNITÉS (2BD), AVEC 370 PLACES DE STATIONNEMENT EN SURFACE AU TOTAL FOURNIES, et avec des équipements tels qu'une piscine, une aire de jeux, des sentiers piétons, des kiosques postaux, des porte-vélos et des aires ouvertes communes paysagées. Le plan du site décrit également l'inauguration de l'avenue SW 125 et de la rue SW 236, qui permettent au public d'accéder au site. Le projet disposera de deux entrées et d'un accès piétonnier le long de l'avenue SW 125 et de la rue SW 236. (60 000,00$ par PORTE). LA PROPRIÉTÉ EST SITUÉE À L'EST DE LA ROUTE SOUTH DIXIE, (US-1), AVEC UNE FAÇADE DE 682 PIEDS SUR LA 236TH ST. Eau et égout à proximité, remplissage minimal requis. La propriété est située dans l'extension Naranja, à proximité de Lennar Homes Developments, à quelques minutes du district du centre métropolitain de Cutler Ridge, du centre commercial Southland Mall, du supercentre Wal-Mart, de Target, de Home Depot et des écoles de la région. Situé vers la pointe sud de la Floride, Homestead, en Floride, est souvent considéré comme la « porte d'entrée des parcs nationaux des Everglades et de Biscayne », en raison de sa proximité avec les sites naturels historiques. Les résidents se trouvent à environ 30 milles de Key Largo et à 22 milles du centre-ville de Miami, ce qui offre beaucoup de choses à faire dans la région. Homestead est également le site du château de Coral, un bâtiment unique sculpté à la main et des sculptures de corail par Ed Leedskalnin au cours de 28 ans.
Impôts fonciers
| Numéro de lot | 30-6924-000-0800 | Évaluation des bâtiments | 0 $ CAD |
| Évaluation du terrain | 0 $ CAD | Évaluation totale | 2 070 493 $ CAD |
Impôts fonciers
Présenté par
12501 SW 236th St - AMC PARK SOUTH DADE MULTI-FAMILY DEVELOPMENT
Hmm, il semble y avoir eu une erreur lors de l’envoi de votre message. Veuillez réessayer.
Merci! Votre message a été envoyé.

