Votre courriel a été envoyé.
Certaines informations ont été traduites automatiquement.
FAITS SAILLANTS DE LA SOUS-LOCATION
- Espace de bureau flexible haut de gamme dans le pôle technologique de Kanata.
- Salle dédiée aux serveurs pour l'infrastructure informatique.
- Zones de collaboration ouvertes pour la synergie d'équipe.
- 3 salles de réunion et 3 laboratoires pour la R&D.
- Composante d'entrepôt avec chargement au niveau du sol.
- Stationnement abondant et accès facile à l'autoroute.
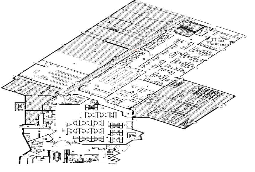
TOUS LES ESPACES DISPONIBLES(1)
Afficher les taux de location en
- ESPACE
- TAILLE
- TERME
- TAUX DE LOCATION
- UTILISATION DE L’ESPACE
- ÉTAT
- DISPONIBLE
Situé au 1260–1280 chemin Teron dans le quartier d'affaires de Kanata à Ottawa, cet espace de bureau flexible haut de gamme offre un environnement moderne et collaboratif, idéal pour les équipes innovantes. S'étendant sur environ 33 764 pieds carrés, l'aménagement comprend 10 bureaux privés, une salle de conférence pour 20 personnes, trois salles de réunion et trois laboratoires spécialisés, complétés par une salle de serveurs dédiée pour l'infrastructure informatique. Les employés apprécieront la grande cuisine et salle à manger, les douches intégrées et les vastes espaces de collaboration ouverts conçus pour favoriser la productivité et le confort. La propriété inclut également un entrepôt avec un accès au niveau du sol, offrant une solution polyvalente pour les entreprises ayant besoin à la fois d'espaces de bureau et de capacités industrielles légères. Un stationnement sur place en quantité suffisante et la proximité des principales routes améliorent l'accessibilité, positionnant cet espace comme un choix de premier plan pour les organisations avant-gardistes.
- Espace de sous-location disponible auprès du locataire actuel
- 1 accès plain-pied
- Laboratoire
- Disposition du plan d’étage ouverte en général
- 4 salles de conférence
- Stationnement abondant, accès facile aux principales routes
- Entrepôt avec quai de chargement au niveau du sol
- Le taux de location ne comprend pas les services publics, les services de bâtiment ou les dépenses immobilières.
- 10 bureaux privés
- Douches
- 105 postes de travail
- Espace premium dans le quartier d'affaires de Kanata
- Grande cuisine, salle à manger, douches et espaces collaboratifs.
| Espace | Taille | Terme | Taux de location | Utilisation de l’espace | État | Disponible |
| 1er étage | 33 764 pi² | Févr. 2030 | Sur demande Sur demande Sur demande Sur demande | Flex | construction complète | 2026-01-01 |
1er étage
| Taille |
| 33 764 pi² |
| Terme |
| Févr. 2030 |
| Taux de location |
| Sur demande Sur demande Sur demande Sur demande |
| Utilisation de l’espace |
| Flex |
| État |
| construction complète |
| Disponible |
| 2026-01-01 |
1er étage
| Taille | 33 764 pi² |
| Terme | Févr. 2030 |
| Taux de location | Sur demande |
| Utilisation de l’espace | Flex |
| État | construction complète |
| Disponible | 2026-01-01 |
Situé au 1260–1280 chemin Teron dans le quartier d'affaires de Kanata à Ottawa, cet espace de bureau flexible haut de gamme offre un environnement moderne et collaboratif, idéal pour les équipes innovantes. S'étendant sur environ 33 764 pieds carrés, l'aménagement comprend 10 bureaux privés, une salle de conférence pour 20 personnes, trois salles de réunion et trois laboratoires spécialisés, complétés par une salle de serveurs dédiée pour l'infrastructure informatique. Les employés apprécieront la grande cuisine et salle à manger, les douches intégrées et les vastes espaces de collaboration ouverts conçus pour favoriser la productivité et le confort. La propriété inclut également un entrepôt avec un accès au niveau du sol, offrant une solution polyvalente pour les entreprises ayant besoin à la fois d'espaces de bureau et de capacités industrielles légères. Un stationnement sur place en quantité suffisante et la proximité des principales routes améliorent l'accessibilité, positionnant cet espace comme un choix de premier plan pour les organisations avant-gardistes.
- Espace de sous-location disponible auprès du locataire actuel
- Le taux de location ne comprend pas les services publics, les services de bâtiment ou les dépenses immobilières.
- 1 accès plain-pied
- 10 bureaux privés
- Laboratoire
- Douches
- Disposition du plan d’étage ouverte en général
- 105 postes de travail
- 4 salles de conférence
- Espace premium dans le quartier d'affaires de Kanata
- Stationnement abondant, accès facile aux principales routes
- Grande cuisine, salle à manger, douches et espaces collaboratifs.
- Entrepôt avec quai de chargement au niveau du sol
APERÇU DE LA PROPRIÉTÉ
Situé dans le corridor technologique de Kanata Nord à Ottawa, le 1260–1280 chemin Teron offre une occasion rare de sous-louer un espace de bureau flexible et de laboratoire haut de gamme dans l’un des districts d’innovation les plus dynamiques du Canada. Ce complexe à un seul étage et à locataires multiples bénéficie d’un emplacement idéal entre l’avenue Carling et le chemin March, offrant un accès direct aux principales artères routières ainsi qu’à un mélange dynamique de voisins commerciaux et industriels. La disposition est parfaite pour les entreprises de technologie, des sciences de la vie ou d’ingénierie à la recherche d’une solution clé en main avec une infrastructure intégrée, incluant une salle de serveurs dédiée et un espace de laboratoire aménagé sur place. Kanata Nord abrite plus de 540 entreprises et 33 000 employés, ce qui en fait le plus grand parc technologique du Canada. La région profite de sa proximité avec l’autoroute 417, les lignes de transport en commun et le centre-ville d’Ottawa. La communauté environnante offre un mélange de quartiers résidentiels, de commodités commerciales et d’espaces verts, créant un environnement équilibré pour le travail et la vie.
- Bio-tech/Laboratoire
- Affichage
FAITS SUR LA PROPRIÉTÉ
SÉLECTIONNER DES LOCATAIRES
- ÉTAGE
- NOM DU LOCATAIRE
- SECTEUR
- 1ᵉʳ
- Jabil
- Fabrication
- 1ᵉʳ
- Satcom Direct
- Information
- 1ᵉʳ
- TÜV SÜD
- Services professionnels, scientifiques et techniques
Présenté par
1260-1280 Teron Rd
Hmm, il semble y avoir eu une erreur lors de l’envoi de votre message. Veuillez réessayer.
Merci! Votre message a été envoyé.






