Se Connecter/S’inscrire
Votre courriel a été envoyé.
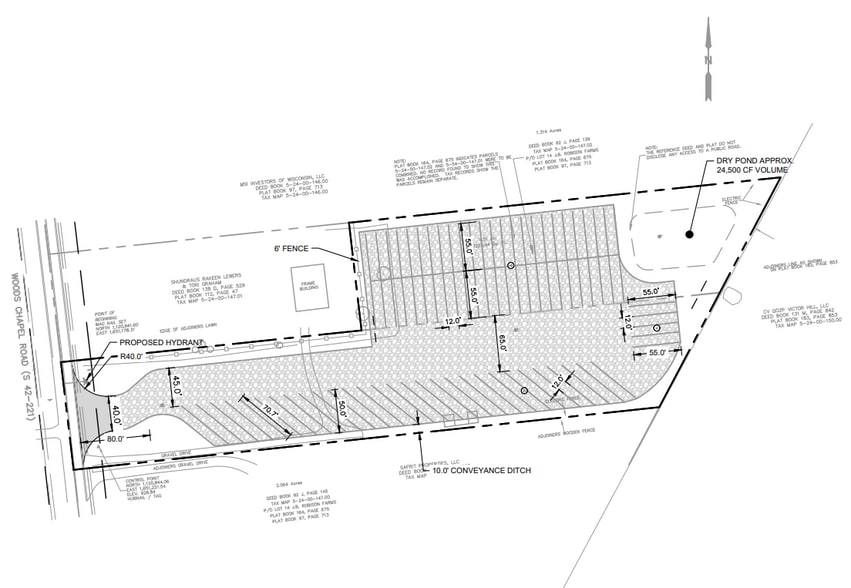
1271 Woods Chapel Road - Greer Industrial Outdoor Storage Site Immeuble de 4 800 pi² • Spécialité • À vendre 1 837 580 $ CAD • Duncan, SC 29334



Certaines informations ont été traduites automatiquement.
Faits saillants de l'investissement
- Entreposage extérieur des remorques.
- Contractors and Equipment Yard
- Truck & Trailer Parking / Fleet Storage
- Accès direct à BMW et aux entrepôts à proximité.
- Light Manufacturing or Assembly Support Yard
- 24/7 Access with Full Coverage Lighting
Résumé de l'annonce
Le lot de remorques Woods Chapel offre un entreposage extérieur sécurisé pour les remorques, les tracteurs, l'équipement ou les matériaux. Une fois terminé, ce site offrira 2,15 acres d'entreposage extérieur clôturé, gravelé et sécurisé. Avec un accès pratique à BMW Amérique du Nord, à l'aéroport GSP et à plus de 300 fournisseurs, distributeurs et fabricants dans un rayon de 5 milles. Ce lot comprendra 81 places de stationnement au total, 52 places pour les remorques de 55 pieds et 29 emplacements pour les ensembles tracteur/remorque de 70 pieds. Ce site permet également la construction de nouveaux entrepôts.
Faits sur la propriété
Impôts fonciers
| Numéros de lot | Évaluation des bâtiments | 0 $ CAD | |
| Évaluation du terrain | 2 624 $ CAD | Évaluation totale | 2 624 $ CAD |
Impôts fonciers
Numéros de lot
Évaluation du terrain
2 624 $ CAD
Évaluation des bâtiments
0 $ CAD
Évaluation totale
2 624 $ CAD
1 de 6
Vidéos
Visite extérieure 3D Matterport
Visite 3D Matterport
Photos
Vue depuis la rue
Rue
Carte
Présenté par
1271 Woods Chapel Road - Greer Industrial Outdoor Storage Site
Vous êtes déjà membre? Connectez-vous
Hmm, il semble y avoir eu une erreur lors de l’envoi de votre message. Veuillez réessayer.
Merci! Votre message a été envoyé.
Votre message a été envoyé !
Activez votre compte LoopNet dès maintenant pour suivre les propriétés, recevoir des alertes en temps réel, gagner du temps sur vos demandes futures et bien plus encore.

