Votre courriel a été envoyé.
1275 Cleveland St 2 700 pi² d'espace disponible • Bureau/Médical • Clearwater, FL 33755



Certaines informations ont été traduites automatiquement.
FAITS SAILLANTS
- Located in Newly Redesigned Downtown Clearwater
- Located near Clearwater Beach, The Sound, shopping & more!
- Zoning is “D” Downtown which allows for medical clinic, professional office, business, educational facilities, entertainment, museum, place of worship
- Conveniently located in a 1 story corner building with plenty of parking space
- Larger space available upon request
TOUS LES ESPACES DISPONIBLES(1)
Afficher les taux de location en
- ESPACE
- TAILLE
- TERME
- TAUX DE LOCATION
- UTILISATION DE L’ESPACE
- ÉTAT
- DISPONIBLE
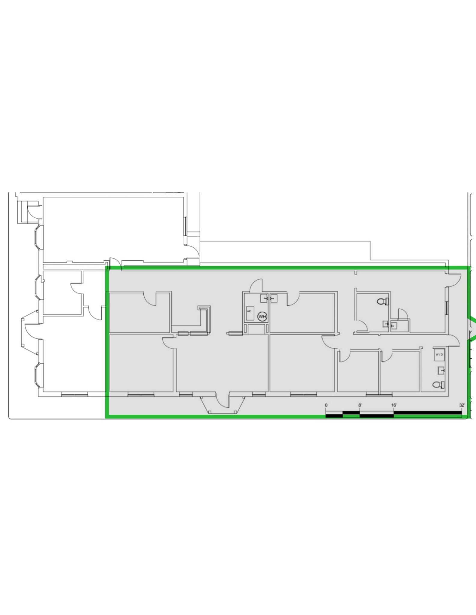
Limited-time lease incentive: sign a 3-year lease and your January and February 2026 rent will be $100 per month. Position your business in the heart of Downtown Clearwater at a highly visible corner location in the Downtown Clearwater Business District—just steps from the $84M “The Sound” waterfront redevelopment featuring a 9,000-seat amphitheater, splash pad, and expanded public amenities. This approximately 2,700 SF, fully remodeled standalone office building (renovation completed June 2023) is well-suited for medical, professional, or general business use, with Downtown “D” zoning that supports a wide range of uses including medical clinic, professional office, business services, educational facilities, entertainment, museum, place of worship, and more. The space offers a functional layout with a large reception/lobby and waiting area, plus seven multi-purpose rooms ideal for private offices, exam rooms, consultation rooms, or conference space. Additional highlights include two restrooms (one ADA-compliant), multiple sink and cabinetry stations, modern finishes, and a flexible configuration that can accommodate a variety of operational needs. A washer/dryer and full-size refrigerator are included, and one room can easily serve as a break room. Parking is a major advantage for downtown: a private on-site lot with approximately 10 spaces, additional parking available upon request, and a shared handicap space. The building also includes a main entrance from the parking lot plus two additional side entrances for staff convenience. Lease structure is triple net (NNN). Minimum lease term is three years (negotiable). Minutes to Clearwater Beach, The Sound, restaurants, shopping, and the area’s expanding business corridor. Larger space available upon request. Tenant pays its pro-rata share of real estate taxes and property insurance (currently approximately half of the building).
- Le taux de location ne comprend pas les services publics, les services de bâtiment ou les dépenses immobilières.
- 7 bureaux privés
- Aire de réception
- Salle de bains privée
- Système de sécurité
- CVCA disponible après les heures de travail
- Accessible aux fauteuils roulants
- Multiple sink and cabinet stations
- 10+ parking spaces
- Minutes - Clearwater Beach, The Sound, restaurants
- Entièrement construit comme Bureau de services professionnels
- Salles de conférence
- Air central et chauffage
- Salle d’impression/Photocopie
- Lumière naturelle
- Détecteur de fumée
- Modern finishes
- Larger space available upon request
- Downtown Clearwater
| Espace | Taille | Terme | Taux de location | Utilisation de l’espace | État | Disponible |
| 1er étage, ste A | 2 700 pi² | 3-5 ans | 33,40 $ CAD/pi²/an 2,78 $ CAD/pi²/mois 90 169 $ CAD/an 7 514 $ CAD/mois | Bureau/Médical | construction complète | Maintenant |
1er étage, ste A
| Taille |
| 2 700 pi² |
| Terme |
| 3-5 ans |
| Taux de location |
| 33,40 $ CAD/pi²/an 2,78 $ CAD/pi²/mois 90 169 $ CAD/an 7 514 $ CAD/mois |
| Utilisation de l’espace |
| Bureau/Médical |
| État |
| construction complète |
| Disponible |
| Maintenant |
1er étage, ste A
| Taille | 2 700 pi² |
| Terme | 3-5 ans |
| Taux de location | 33,40 $ CAD/pi²/an |
| Utilisation de l’espace | Bureau/Médical |
| État | construction complète |
| Disponible | Maintenant |
Limited-time lease incentive: sign a 3-year lease and your January and February 2026 rent will be $100 per month. Position your business in the heart of Downtown Clearwater at a highly visible corner location in the Downtown Clearwater Business District—just steps from the $84M “The Sound” waterfront redevelopment featuring a 9,000-seat amphitheater, splash pad, and expanded public amenities. This approximately 2,700 SF, fully remodeled standalone office building (renovation completed June 2023) is well-suited for medical, professional, or general business use, with Downtown “D” zoning that supports a wide range of uses including medical clinic, professional office, business services, educational facilities, entertainment, museum, place of worship, and more. The space offers a functional layout with a large reception/lobby and waiting area, plus seven multi-purpose rooms ideal for private offices, exam rooms, consultation rooms, or conference space. Additional highlights include two restrooms (one ADA-compliant), multiple sink and cabinetry stations, modern finishes, and a flexible configuration that can accommodate a variety of operational needs. A washer/dryer and full-size refrigerator are included, and one room can easily serve as a break room. Parking is a major advantage for downtown: a private on-site lot with approximately 10 spaces, additional parking available upon request, and a shared handicap space. The building also includes a main entrance from the parking lot plus two additional side entrances for staff convenience. Lease structure is triple net (NNN). Minimum lease term is three years (negotiable). Minutes to Clearwater Beach, The Sound, restaurants, shopping, and the area’s expanding business corridor. Larger space available upon request. Tenant pays its pro-rata share of real estate taxes and property insurance (currently approximately half of the building).
- Le taux de location ne comprend pas les services publics, les services de bâtiment ou les dépenses immobilières.
- Entièrement construit comme Bureau de services professionnels
- 7 bureaux privés
- Salles de conférence
- Aire de réception
- Air central et chauffage
- Salle de bains privée
- Salle d’impression/Photocopie
- Système de sécurité
- Lumière naturelle
- CVCA disponible après les heures de travail
- Détecteur de fumée
- Accessible aux fauteuils roulants
- Modern finishes
- Multiple sink and cabinet stations
- Larger space available upon request
- 10+ parking spaces
- Downtown Clearwater
- Minutes - Clearwater Beach, The Sound, restaurants
APERÇU DE LA PROPRIÉTÉ
Espace de bureau / médical – Centre-ville de Clearwater. Emplacement de coin très visible dans le quartier des affaires du centre-ville de Clearwater, à quelques pas du projet de réaménagement de 84 millions de dollars « The Sound », comprenant un amphithéâtre de 9 000 places, une aire de jeux aquatique, un accès au bord de l'eau, et bien plus encore. Au moins 11 places de stationnement dédiées, avec possibilité d'en obtenir davantage sur demande. Le bail est en formule tout compris. Le propriétaire couvrira les taxes foncières, l'assurance immobilière, l'eau, l'entretien des espaces verts et le système de sécurité. Le zonage est « D » Centre-ville, ce qui permet l'exploitation de cliniques médicales, bureaux professionnels, établissements éducatifs, lieux de divertissement, musées, lieux de culte, et plus encore. La propriété est située à proximité de Clearwater Beach, The Sound, des restaurants, des commerces et du centre d'affaires en pleine expansion de Clearwater.
- Accès 24 heures
- Affichage
- Réception
- Affichage sur monument
- Climatisation
FAITS SUR LA PROPRIÉTÉ
Présenté par
Tampa Bay Home Realty
1275 Cleveland St
Hmm, il semble y avoir eu une erreur lors de l’envoi de votre message. Veuillez réessayer.
Merci! Votre message a été envoyé.


