Votre courriel a été envoyé.
Build-to-Suit Medical/Office Space 1299 E Commercial Blvd 207–2 920 pi² d'espace disponible • Bureau/Médical • Oakland Park, FL 33334



Certaines informations ont été traduites automatiquement.
Faits saillants
- Emplacement pratique près des principaux hôpitaux, du district d'affaires de Cypress Creek, des hôtels et des restaurants
- Trafic quotidien moyen : ±55 000 véhicules
- Suites médicales professionnelles de première génération et espaces de bureau
Tous les espaces disponibles(1)
Afficher les taux de location en
- Espace
- Taille
- Terme
- Taux de location
- Utilisation de l’espace
- État
- Disponible
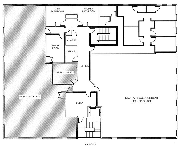
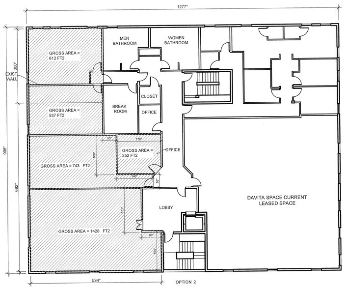
• First Generation Professional Medical/Office Space suites - many options available: ±207 SF, ±537 SF, ±612 SF, ±743 SF, ±1,428 SF, ±2,103 SF, ±2,713 SF, ±2,920 SF • Parking: 4.0/1000 • Zoned: B-1, City of Oakland Park • Convenient location near major hospitals, Cypress Creek Business District, hotels and restaurants • Average Daily Traffic: ±55,000 vehicles
- Le taux de location ne comprend pas les services publics, les services de bâtiment ou les dépenses immobilières.
- Convient pour 1 à 24 personnes
- Climatisation centrale
- Disposition du plan d’étage ouverte en général
- Espace en excellent état
| Espace | Taille | Terme | Taux de location | Utilisation de l’espace | État | Disponible |
| 2e étage, ste 202 | 207 à 2 920 pi² | 1-5 ans | 38,09 $ CAD/pi²/an 3,17 $ CAD/pi²/mois 111 220 $ CAD/an 9 268 $ CAD/mois | Bureau/Médical | construction partielle | Maintenant |
2e étage, ste 202
| Taille |
| 207 à 2 920 pi² |
| Terme |
| 1-5 ans |
| Taux de location |
| 38,09 $ CAD/pi²/an 3,17 $ CAD/pi²/mois 111 220 $ CAD/an 9 268 $ CAD/mois |
| Utilisation de l’espace |
| Bureau/Médical |
| État |
| construction partielle |
| Disponible |
| Maintenant |
2e étage, ste 202
| Taille | 207 à 2 920 pi² |
| Terme | 1-5 ans |
| Taux de location | 38,09 $ CAD/pi²/an |
| Utilisation de l’espace | Bureau/Médical |
| État | construction partielle |
| Disponible | Maintenant |
• First Generation Professional Medical/Office Space suites - many options available: ±207 SF, ±537 SF, ±612 SF, ±743 SF, ±1,428 SF, ±2,103 SF, ±2,713 SF, ±2,920 SF • Parking: 4.0/1000 • Zoned: B-1, City of Oakland Park • Convenient location near major hospitals, Cypress Creek Business District, hotels and restaurants • Average Daily Traffic: ±55,000 vehicles
- Le taux de location ne comprend pas les services publics, les services de bâtiment ou les dépenses immobilières.
- Disposition du plan d’étage ouverte en général
- Convient pour 1 à 24 personnes
- Espace en excellent état
- Climatisation centrale
Aperçu de la propriété
• Suites médicales professionnelles de première génération et espaces de bureau - de nombreuses options sont offertes : ±207 SF, ±537 SF, ±612 SF, ±743 SF, ±1 428 SF, ±2 103 SF, ±2 713 SF, ±2 920 SF • Stationnement : 4.0/1000 • Zoné : B-1, parc de la ville d'Oakland • Emplacement pratique près des principaux hôpitaux, du district d'affaires de Cypress Creek, des hôtels et des restaurants • Circulation quotidienne moyenne : ±55 000 véhicules
- Affichage
- Chauffage central
- Plafond suspendu
- Climatisation
Faits sur la propriété
Présenté par
Build-to-Suit Medical/Office Space | 1299 E Commercial Blvd
Hmm, il semble y avoir eu une erreur lors de l’envoi de votre message. Veuillez réessayer.
Merci! Votre message a été envoyé.



