Votre courriel a été envoyé.
Certaines informations ont été traduites automatiquement.
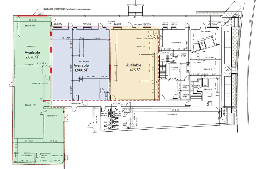
Disponibilité de l’espace (1)
Afficher les taux de location en
- Espace
- Taille
- Terme
- Taux de location
- Type de loyer
| Espace | Taille | Terme | Taux de location | Type de loyer | ||
| 1er étage | 2 870 à 6 450 pi² | Négociable | Sur demande Sur demande Sur demande Sur demande | À déterminer |
1er étage
- Espace embout très recherché
Types de loyers
Le type et le montant du loyer que le locataire (preneur) est tenu de payer au propriétaire (bailleur) sur la durée du bail sont négociés avant la signature du bail par les deux parties. Le type de loyer varie selon les services fournis. Par exemple, le prix d’un loyer hypernet est habituellement inférieur à celui d’un bail à service complet puisque le locataire est tenu d’assumer des dépenses additionnelles par rapport au loyer de base. Contactez le courtier inscripteur pour tout connaître sur les frais connexes et additionnels associés à chaque type de loyer.
1. Service complet: Un taux de location qui comprend des services standards liés à l’immeuble fournis par le propriétaire dans le cadre d’une location annuelle de base.
2. Loyer supernet: Le locataire paie seulement deux des frais de l’immeuble. Le propriétaire et le locataire déterminent ces frais spécifiques avant la signature du bail.
3. Loyer hypernet: Un bail en vertu duquel le locataire est responsable de tous les frais liés à sa part proportionnelle d’occupation de l’immeuble.
4. Brut modifié: Le loyer brut modifié désigne un type général de taux de location dans lequel le locataire est habituellement responsable de sa part proportionnelle d’un ou de plusieurs frais. C’est le propriétaire qui paie les frais restants. Considérez les structures tarifaires courantes suivantes applicables aux loyers bruts modifiés: 4. Plus les services: Un type de bail brut modifié suivant lequel le locataire est responsable de sa part proportionnelle des coûts des services publics, en plus du loyer. 4. Plus le nettoyage: Un type de bail brut modifié suivant lequel le locataire est responsable de sa part proportionnelle des coûts de nettoyage, en plus du loyer. 4. Plus l'électricité: Un type de bail brut modifié suivant lequel le locataire est responsable de sa part proportionnelle des coûts d’électricité, en plus du loyer. 4. Plus l’électricité et le nettoyage: Un type de bail brut modifié dans lequel le locataire est responsable de sa part proportionnelle des coûts d’électricité et de nettoyage, en plus du loyer. 4. Plus les services publics et le nettoyage: Un type de bail brut modifié dans lequel le locataire est responsable de sa part proportionnelle des coûts des services publics et de nettoyage, en plus du loyer. 4. Bail industriel brut: Un type de bail brut modifié dans lequel le locataire paie un ou plusieurs des frais, en plus du loyer. Le propriétaire et le locataire déterminent ces frais spécifiques avant la signature du bail.
5. L’électricité est à la charge du locataire: Le propriétaire paie pour tous les services et le locataire est responsable de sa propre utilisation de l’éclairage et des prises électriques dans l’espace qu’il occupe.
6. Négociable ou sur demande: Cette option est utilisée lorsque le contact de location ne précise pas le type de loyer ou de service.
7. À déterminer: À déterminer ; utilisé pour les immeubles dont le type de services ou de loyer n’est pas connu, souvent quand l’immeuble n’est pas encore construit.
Sélectionner des locataires à 1299 Highland Ave, Needham, MA 02492
- Locataire
- Description
- Emplacements US
- Portée
- Mathnasium
- Autres services
- 1 305
- International
- Needham Nail & Skin Care
- Salon / Barbier / Spa
- 1
- -
- Pure Hockey
- Articles de sport
- 91
- National
- Supercuts
- Salon / Barbier / Spa
- 3 743
- International
| Locataire | Description | Emplacements US | Portée |
| Mathnasium | Autres services | 1 305 | International |
| Needham Nail & Skin Care | Salon / Barbier / Spa | 1 | - |
| Pure Hockey | Articles de sport | 91 | National |
| Supercuts | Salon / Barbier / Spa | 3 743 | International |
Faits sur la propriété
| Superficie totale disponible | 6 450 pi² | Superficie commerciale brute | 8 854 pi² |
| Min. divisible | 2 870 pi² | Superficie totale du terrain | 0,71 AC |
| Type de propriété | Commerce de détail | Année de construction | 1946 |
| Sous-type de propriété | Immeuble de commerce | Ratio de stationnement | 4,54/1 000 pi² |
| Superficie totale disponible | 6 450 pi² |
| Min. divisible | 2 870 pi² |
| Type de propriété | Commerce de détail |
| Sous-type de propriété | Immeuble de commerce |
| Superficie commerciale brute | 8 854 pi² |
| Superficie totale du terrain | 0,71 AC |
| Année de construction | 1946 |
| Ratio de stationnement | 4,54/1 000 pi² |
Caractéristiques et commodités
- Ligne d'autobus
- Enseigne sur pylône
- Affichage
Principaux détaillants à proximité
Présenté par
1299 Highland Ave
Hmm, il semble y avoir eu une erreur lors de l’envoi de votre message. Veuillez réessayer.
Merci! Votre message a été envoyé.



