Se Connecter/S’inscrire
Votre courriel a été envoyé.
The Gaming Lodge 13-13A Oxford St 1 682 pi² Commerce de détail Immeuble Harrogate HG1 1PY 1 466 651 $ CAD (871,97 $ CAD/pi²)



Certaines informations ont été traduites automatiquement.
Faits saillants de l'investissement
- Great footfall area
- Upper floors can be converted.
- Good corner location.
Résumé de l'annonce
Offers are invited for the freehold interest at a guide price of £800,000 Exc
The property comprises tenanted ground floor and part rear first floor retail with separately accessed, vacant duplex offices on the uppers at the front. The property is located in central Harrogate at the corner of Oxford Street and Cambridge Place adjacent to the M&S Foodhall and in close proximity to the Victoria Shopping Centre.
The retail shop is let to Games Crusade at a rental of £50,000 per annum for a period of 7 years from April 2024 with a tenant break option at year 3.
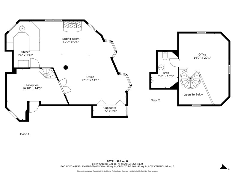
The upper floor offices are currently vacant but are fitted out to a high specification and as is evident from the internal photographs would be an easy conversion to residential STP.
The property comprises tenanted ground floor and part rear first floor retail with separately accessed, vacant duplex offices on the uppers at the front. The property is located in central Harrogate at the corner of Oxford Street and Cambridge Place adjacent to the M&S Foodhall and in close proximity to the Victoria Shopping Centre.
The retail shop is let to Games Crusade at a rental of £50,000 per annum for a period of 7 years from April 2024 with a tenant break option at year 3.
The upper floor offices are currently vacant but are fitted out to a high specification and as is evident from the internal photographs would be an easy conversion to residential STP.
Faits sur la propriété
Type de vente
Investissement
Type de propriété
Commerce de détail
Ancienneté
Pleine propriété
Sous-type de propriété
Boutique
Taille du bâtiment
1 682 pi²
Classe d’immeuble
B
Année de construction
1988
Prix
1 466 651 $ CAD
Prix par pi²
871,97 $ CAD
Location
Unique
Hauteur du bâtiment
3 étages
Coefficient d’occupation des sols de l’immeuble
0,87
Taille du lot
0,04 AC
Façade
37’ sur Oxford Street
Commodités
- Accès 24 heures
1 1
Principaux détaillants à proximité
1 de 9
Vidéos
Visite extérieure 3D Matterport
Visite 3D Matterport
Photos
Vue depuis la rue
Rue
Carte
1 de 1
Présenté par
The Gaming Lodge | 13-13A Oxford St
Vous êtes déjà membre? Connectez-vous
Hmm, il semble y avoir eu une erreur lors de l’envoi de votre message. Veuillez réessayer.
Merci! Votre message a été envoyé.
Votre message a été envoyé !
Activez votre compte LoopNet dès maintenant pour suivre les propriétés, recevoir des alertes en temps réel, gagner du temps sur vos demandes futures et bien plus encore.
