Votre courriel a été envoyé.
13 E 37th St 17 819 pi² 63% Loué Bureau Immeuble New York, NY 10016 16 401 599 $ CAD (920,46 $ CAD/pi²)



Certaines informations ont été traduites automatiquement.
Faits saillants de l'investissement
- Prime Midtown location close to Fifth Avenue, Bryant Park, and major global employers.
- Located along a well-established commercial corridor with strong foot traffic.
- Walkable access to Grand Central Terminal and Herald Square transportation networks.
- Surrounding amenity base includes dining, retail, hotels, and cultural destinations.
Faits sur la propriété
Commodités
- Accès 24 heures
- Restaurant
- Système de sécurité
- Puits de lumière
- Espace d'entreposage
- Sous-sol
- Exposition directe à l'ascenseur
- Plan ouvert
- Bureaux partitionnés
- Planchers de bois franc
- Climatisation
- Internet par fibre optique
Principaux locataires
- Locataire
- Secteur
- pi² Occupé
- Loyer/pi²
- Type de bail
- Fin du bail
Allure Lashes est un salon d'extension de cils de premier plan situé en plein milieu des quartiers Herald Square, Murray Hill et Midtown de New York, sur la 37e rue entre Madison et Fifth Avenues. La philosophie et l'objectif d'Allure Lashes et de nos services sont assez simples : utiliser les produits et techniques les plus sûrs, les plus sains et les meilleurs de l'industrie pour offrir un service sans compromis et la beauté des cils à nos clients. Nos normes élevées en matière de services et la satisfaction de la clientèle changeront la façon dont les clients penseront à l'amélioration de leur beauté naturelle avec des extensions de cils et distingueront notre salon du reste de nos concurrents. Nos services sont conçus en pensant à vous, le client, et nous nous efforçons toujours de vous fournir les extensions de cils les plus saines, les plus durables, les plus légères et les plus personnalisées. Après une seule visite chez Allure Lashes, vous remarquerez la différence de look et de longévité de nos cils par rapport à la plupart des autres salons. Voyez par vous-même et prenez rendez-vous dès aujourd'hui.
- Chili
- Hébergement et services alimentaires
- 2 000 pi²
- -
- -
- -
- Dingxiang Inc
- Services
- 2 400 pi²
- -
- -
- -
- Off Record Music
- Arts, divertissement et loisirs
- 2 400 pi²
- -
- -
- -
- Sperm & Embryo Bank
- Soins de santé et assistance sociale
- -
- -
- -
- Déc. 2020
- Sterling Express Inc
- Transport et entreposage
- -
- -
- Plus l'électricité
- Avr. 2027
| Locataire | Secteur | pi² Occupé | Loyer/pi² | Type de bail | Fin du bail | |
| C.K. Allure Lashes LLC | Services | - | - | Plus l'électricité | Juin 2018 | |
| Chili | Hébergement et services alimentaires | 2 000 pi² | - | - | - | |
| Dingxiang Inc | Services | 2 400 pi² | - | - | - | |
| Off Record Music | Arts, divertissement et loisirs | 2 400 pi² | - | - | - | |
| Sperm & Embryo Bank | Soins de santé et assistance sociale | - | - | - | Déc. 2020 | |
| Sterling Express Inc | Transport et entreposage | - | - | Plus l'électricité | Avr. 2027 |
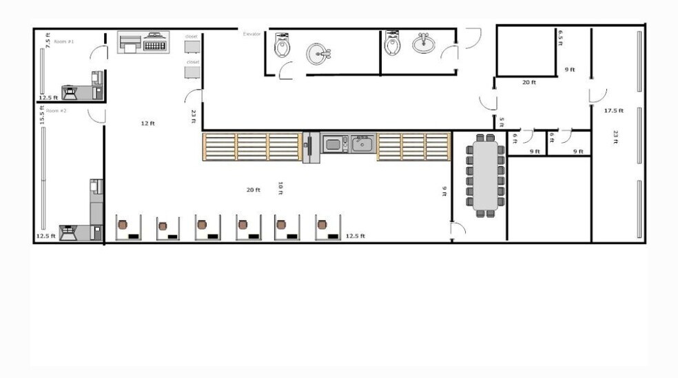
Disponibilité des espaces
- Espace
- Taille
- Utilisation de l’espace
- État
- Disponible
1,350SF of office space. Flexible term.
5 salles de soins Salle de conférence Aire de réception Connexion laveuse-sécheuse A/C central contrôlé par le locataire Salle de bain privée
Up to 2,400 SF of office/medical space available.
BUREAU MÉDICAL PRÉCONSTRUIT
| Espace | Taille | Utilisation de l’espace | État | Disponible |
| 3e Ét.-ste Rear | 1 350 pi² | Bureau | espace cloisonné | Maintenant |
| 4e Ét.-ste 4R | 1 430 pi² | Médical | construction complète | Maintenant |
| 6e étage | 1 000 à 2 400 pi² | Bureau/Médical | - | Maintenant |
| 7e Ét.-ste 7R | 1 350 pi² | Bureau/Médical | construction complète | Maintenant |
3e Ét.-ste Rear
| Taille |
| 1 350 pi² |
| Utilisation de l’espace |
| Bureau |
| État |
| espace cloisonné |
| Disponible |
| Maintenant |
4e Ét.-ste 4R
| Taille |
| 1 430 pi² |
| Utilisation de l’espace |
| Médical |
| État |
| construction complète |
| Disponible |
| Maintenant |
6e étage
| Taille |
| 1 000 à 2 400 pi² |
| Utilisation de l’espace |
| Bureau/Médical |
| État |
| - |
| Disponible |
| Maintenant |
7e Ét.-ste 7R
| Taille |
| 1 350 pi² |
| Utilisation de l’espace |
| Bureau/Médical |
| État |
| construction complète |
| Disponible |
| Maintenant |
3e Ét.-ste Rear
| Taille | 1 350 pi² |
| Utilisation de l’espace | Bureau |
| État | espace cloisonné |
| Disponible | Maintenant |
1,350SF of office space. Flexible term.
4e Ét.-ste 4R
| Taille | 1 430 pi² |
| Utilisation de l’espace | Médical |
| État | construction complète |
| Disponible | Maintenant |
5 salles de soins Salle de conférence Aire de réception Connexion laveuse-sécheuse A/C central contrôlé par le locataire Salle de bain privée
6e étage
| Taille | 1 000 à 2 400 pi² |
| Utilisation de l’espace | Bureau/Médical |
| État | - |
| Disponible | Maintenant |
Up to 2,400 SF of office/medical space available.
7e Ét.-ste 7R
| Taille | 1 350 pi² |
| Utilisation de l’espace | Bureau/Médical |
| État | construction complète |
| Disponible | Maintenant |
BUREAU MÉDICAL PRÉCONSTRUIT
Impôts fonciers
| Numéro de lot | 0867-0012 | Évaluation des bâtiments | 943 551 $ CAD |
| Évaluation du terrain | 875 027 $ CAD | Évaluation totale | 1 818 578 $ CAD |
Impôts fonciers
Présenté par
AZN Realty, LLC
13 E 37th St
Hmm, il semble y avoir eu une erreur lors de l’envoi de votre message. Veuillez réessayer.
Merci! Votre message a été envoyé.











