Votre courriel a été envoyé.
Certaines informations ont été traduites automatiquement.
Faits saillants
- Fully Renovated Two-Level Commercial Space with Historic Character
- Historically accurate brand new tin ceilings.
- Rare opportunity to lease a two-level commercial space
- The space is offered at $2.00 per square foot per month, with an owner build-out allowance available for tenants committing to a minimum 3 year lease
Tous les espaces disponibles(2)
Afficher les taux de location en
- Espace
- Taille
- Terme
- Taux de location
- Utilisation de l’espace
- Aménagement
- Disponible
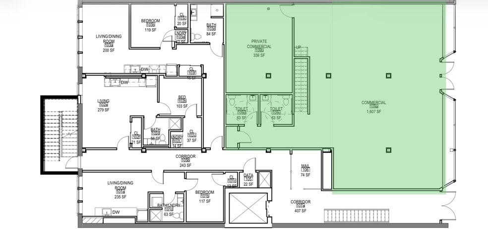
Fully Renovated Two-Level Commercial Space with Historic Character Rare opportunity to lease a two-level commercial space totaling approximately 3,200 SF, thoughtfully restored and fully modernized while preserving its historic integrity. The first floor offers 2,200 SF with striking 14-foot ceilings and expansive floor-to-ceiling windows, providing exceptional natural light and a strong street presence. The garden level adds an additional 1,000 SF, enhanced by shared light windows, making it ideal for seating, office space, studio use, or support areas. This property has undergone a complete gut renovation, including brand-new HVAC, plumbing, and electrical systems, while maintaining its architectural heritage. Exterior improvements feature a restored historic white terracotta façade, a grand new entrance, and 18+ new windows. Interior details include historically accurate, brand-new tin ceilings, blending timeless design with modern construction. The space is offered at $2.00 per square foot per month, with an owner build-out allowance available for tenants committing to a minimum three-year lease, allowing customization to suit your business needs. With its flexibility, light-filled layout, and prominent presence, this space is perfect for a restaurant, coffee shop, gallery, creative studio, or professional office use. A unique opportunity to secure a character-rich, move-in-ready commercial space that combines historic charm with modern infrastructure Two floors of commercial space available. First floor space is 2,200 sf. 1000SF on garden level $2.00 a sf. per month Owner build out allowance included with a min of a 3 year lease. 14" ceilings, floor to ceiling windows Restored historic white terracotta facade. Historically accurate brand new tin ceilings. Shared light windows into garden level. Perfect for a restaurant, coffee shop, Gallery, or office space.
- Le taux inscrit peut ne pas comprendre certains services publics, les services de bâtiment et les dépenses immobilières.
- Peut être associé à un ou plusieurs espaces supplémentaires pour obtenir jusqu’à 3 200 pi² d’espace adjacent.
- Convient pour 3 à 8 personnes
- Fully Renovated Two-Level Commercial Space
Fully Renovated Two-Level Commercial Space with Historic Character Rare opportunity to lease a two-level commercial space totaling approximately 3,200 SF, thoughtfully restored and fully modernized while preserving its historic integrity. The first floor offers 2,200 SF with striking 14-foot ceilings and expansive floor-to-ceiling windows, providing exceptional natural light and a strong street presence. The garden level adds an additional 1,000 SF, enhanced by shared light windows, making it ideal for seating, office space, studio use, or support areas. This property has undergone a complete gut renovation, including brand-new HVAC, plumbing, and electrical systems, while maintaining its architectural heritage. Exterior improvements feature a restored historic white terracotta façade, a grand new entrance, and 18+ new windows. Interior details include historically accurate, brand-new tin ceilings, blending timeless design with modern construction. The space is offered at $2.00 per square foot per month, with an owner build-out allowance available for tenants committing to a minimum three-year lease, allowing customization to suit your business needs. With its flexibility, light-filled layout, and prominent presence, this space is perfect for a restaurant, coffee shop, gallery, creative studio, or professional office use. A unique opportunity to secure a character-rich, move-in-ready commercial space that combines historic charm with modern infrastructure Two floors of commercial space available. First floor space is 2,200 sf. 1000SF on garden level $2.00 a sf. per month Owner build out allowance included with a min of a 3 year lease. 14" ceilings, floor to ceiling windows Restored historic white terracotta facade. Historically accurate brand new tin ceilings. Shared light windows into garden level. Perfect for a restaurant, coffee shop, Gallery, or office space.
- Le taux inscrit peut ne pas comprendre certains services publics, les services de bâtiment et les dépenses immobilières.
- Peut être associé à un ou plusieurs espaces supplémentaires pour obtenir jusqu’à 3 200 pi² d’espace adjacent.
- Convient pour 6 à 18 personnes
- Fully Renovated Two-Level Commercial Space
| Espace | Taille | Terme | Taux de location | Utilisation de l’espace | Aménagement | Disponible |
| Sous-sol | 1 000 pi² | 3-10 ans | 32,84 $ CAD/pi²/an 2,74 $ CAD/pi²/mois 32 844 $ CAD/an 2 737 $ CAD/mois | Bureau/Commerce de détail | - | Maintenant |
| 1er étage, ste 132 | 2 200 pi² | 3-10 ans | Sur demande Sur demande Sur demande Sur demande | Bureau/Commerce de détail | - | Maintenant |
Sous-sol
| Taille |
| 1 000 pi² |
| Terme |
| 3-10 ans |
| Taux de location |
| 32,84 $ CAD/pi²/an 2,74 $ CAD/pi²/mois 32 844 $ CAD/an 2 737 $ CAD/mois |
| Utilisation de l’espace |
| Bureau/Commerce de détail |
| Aménagement |
| - |
| Disponible |
| Maintenant |
1er étage, ste 132
| Taille |
| 2 200 pi² |
| Terme |
| 3-10 ans |
| Taux de location |
| Sur demande Sur demande Sur demande Sur demande |
| Utilisation de l’espace |
| Bureau/Commerce de détail |
| Aménagement |
| - |
| Disponible |
| Maintenant |
Sous-sol
| Taille | 1 000 pi² |
| Terme | 3-10 ans |
| Taux de location | 32,84 $ CAD/pi²/an |
| Utilisation de l’espace | Bureau/Commerce de détail |
| Aménagement | - |
| Disponible | Maintenant |
Fully Renovated Two-Level Commercial Space with Historic Character Rare opportunity to lease a two-level commercial space totaling approximately 3,200 SF, thoughtfully restored and fully modernized while preserving its historic integrity. The first floor offers 2,200 SF with striking 14-foot ceilings and expansive floor-to-ceiling windows, providing exceptional natural light and a strong street presence. The garden level adds an additional 1,000 SF, enhanced by shared light windows, making it ideal for seating, office space, studio use, or support areas. This property has undergone a complete gut renovation, including brand-new HVAC, plumbing, and electrical systems, while maintaining its architectural heritage. Exterior improvements feature a restored historic white terracotta façade, a grand new entrance, and 18+ new windows. Interior details include historically accurate, brand-new tin ceilings, blending timeless design with modern construction. The space is offered at $2.00 per square foot per month, with an owner build-out allowance available for tenants committing to a minimum three-year lease, allowing customization to suit your business needs. With its flexibility, light-filled layout, and prominent presence, this space is perfect for a restaurant, coffee shop, gallery, creative studio, or professional office use. A unique opportunity to secure a character-rich, move-in-ready commercial space that combines historic charm with modern infrastructure Two floors of commercial space available. First floor space is 2,200 sf. 1000SF on garden level $2.00 a sf. per month Owner build out allowance included with a min of a 3 year lease. 14" ceilings, floor to ceiling windows Restored historic white terracotta facade. Historically accurate brand new tin ceilings. Shared light windows into garden level. Perfect for a restaurant, coffee shop, Gallery, or office space.
- Le taux inscrit peut ne pas comprendre certains services publics, les services de bâtiment et les dépenses immobilières.
- Convient pour 3 à 8 personnes
- Peut être associé à un ou plusieurs espaces supplémentaires pour obtenir jusqu’à 3 200 pi² d’espace adjacent.
- Fully Renovated Two-Level Commercial Space
1er étage, ste 132
| Taille | 2 200 pi² |
| Terme | 3-10 ans |
| Taux de location | Sur demande |
| Utilisation de l’espace | Bureau/Commerce de détail |
| Aménagement | - |
| Disponible | Maintenant |
Fully Renovated Two-Level Commercial Space with Historic Character Rare opportunity to lease a two-level commercial space totaling approximately 3,200 SF, thoughtfully restored and fully modernized while preserving its historic integrity. The first floor offers 2,200 SF with striking 14-foot ceilings and expansive floor-to-ceiling windows, providing exceptional natural light and a strong street presence. The garden level adds an additional 1,000 SF, enhanced by shared light windows, making it ideal for seating, office space, studio use, or support areas. This property has undergone a complete gut renovation, including brand-new HVAC, plumbing, and electrical systems, while maintaining its architectural heritage. Exterior improvements feature a restored historic white terracotta façade, a grand new entrance, and 18+ new windows. Interior details include historically accurate, brand-new tin ceilings, blending timeless design with modern construction. The space is offered at $2.00 per square foot per month, with an owner build-out allowance available for tenants committing to a minimum three-year lease, allowing customization to suit your business needs. With its flexibility, light-filled layout, and prominent presence, this space is perfect for a restaurant, coffee shop, gallery, creative studio, or professional office use. A unique opportunity to secure a character-rich, move-in-ready commercial space that combines historic charm with modern infrastructure Two floors of commercial space available. First floor space is 2,200 sf. 1000SF on garden level $2.00 a sf. per month Owner build out allowance included with a min of a 3 year lease. 14" ceilings, floor to ceiling windows Restored historic white terracotta facade. Historically accurate brand new tin ceilings. Shared light windows into garden level. Perfect for a restaurant, coffee shop, Gallery, or office space.
- Le taux inscrit peut ne pas comprendre certains services publics, les services de bâtiment et les dépenses immobilières.
- Convient pour 6 à 18 personnes
- Peut être associé à un ou plusieurs espaces supplémentaires pour obtenir jusqu’à 3 200 pi² d’espace adjacent.
- Fully Renovated Two-Level Commercial Space
À propos de la propriété
Fully Renovated Two-Level Commercial Space with Historic Character Rare opportunity to lease a two-level commercial space totaling approximately 3,200 SF, thoughtfully restored and fully modernized while preserving its historic integrity. The first floor offers 2,200 SF with striking 14-foot ceilings and expansive floor-to-ceiling windows, providing exceptional natural light and a strong street presence. The garden level adds an additional 1,000 SF, enhanced by shared light windows, making it ideal for seating, office space, studio use, or support areas. This property has undergone a complete gut renovation, including brand-new HVAC, plumbing, and electrical systems, while maintaining its architectural heritage. Exterior improvements feature a restored historic white terracotta façade, a grand new entrance, and 18+ new windows. Interior details include historically accurate, brand-new tin ceilings, blending timeless design with modern construction. The space is offered at $2.00 per square foot per month, with an owner build-out allowance available for tenants committing to a minimum three-year lease, allowing customization to suit your business needs. With its flexibility, light-filled layout, and prominent presence, this space is perfect for a restaurant, coffee shop, gallery, creative studio, or professional office use. A unique opportunity to secure a character-rich, move-in-ready commercial space that combines historic charm with modern infrastructure Two floors of commercial space available. First floor space is 2,200 sf. 1000SF on garden level $2.00 a sf. per month Owner build out allowance included with a min of a 3 year lease. 14" ceilings, floor to ceiling windows Restored historic white terracotta facade. Historically accurate brand new tin ceilings. Shared light windows into garden level. Perfect for a restaurant, coffee shop, Gallery, or office space.
Faits sur la propriété
| Superficie totale disponible | 3 200 pi² | Style d’appartement | De faible hauteur |
| Nombre d’unités | 18 | Taille du bâtiment | 16 220 pi² |
| Type de propriété | Immeuble residentiel | Année de construction | 2025 |
| Sous-type de propriété | Appartement |
| Superficie totale disponible | 3 200 pi² |
| Nombre d’unités | 18 |
| Type de propriété | Immeuble residentiel |
| Sous-type de propriété | Appartement |
| Style d’appartement | De faible hauteur |
| Taille du bâtiment | 16 220 pi² |
| Année de construction | 2025 |
Présenté par
130 Pearl St
Hmm, il semble y avoir eu une erreur lors de l’envoi de votre message. Veuillez réessayer.
Merci! Votre message a été envoyé.



