Se Connecter/S’inscrire
Votre courriel a été envoyé.
Certaines informations ont été traduites automatiquement.
Tous les espaces disponibles(1)
Afficher les taux de location en
- Espace
- Taille
- Terme
- Taux de location
- Utilisation de l’espace
- Aménagement
- Disponible
Fully furnished office with podcast studio and training room.
- Espace de sous-location disponible auprès du locataire actuel
- Convient pour 6 à 18 personnes
- Entièrement construit comme Bureau standard
| Espace | Taille | Terme | Taux de location | Utilisation de l’espace | Aménagement | Disponible |
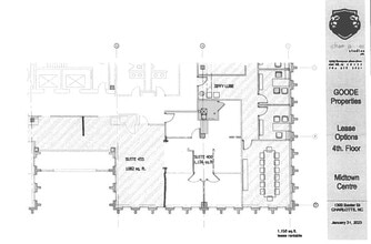
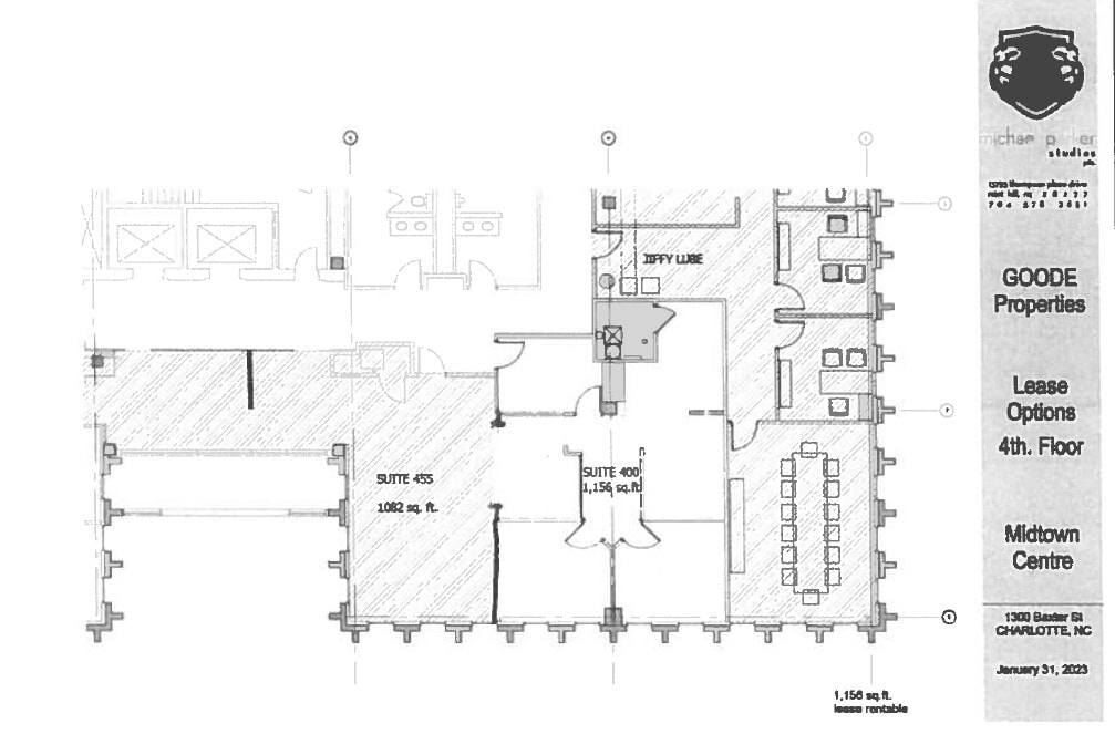
| 4e étage, ste 400 | 2 238 pi² | Juil. 2028 | Sur demande Sur demande Sur demande Sur demande | Bureau | construction complète | Maintenant |
4e étage, ste 400
| Taille |
| 2 238 pi² |
| Terme |
| Juil. 2028 |
| Taux de location |
| Sur demande Sur demande Sur demande Sur demande |
| Utilisation de l’espace |
| Bureau |
| Aménagement |
| construction complète |
| Disponible |
| Maintenant |
1 de 12
Vidéos
Visite extérieure 3D Matterport
Visite 3D Matterport
Photos
Vue depuis la rue
Rue
Carte
4e étage, ste 400
| Taille | 2 238 pi² |
| Terme | Juil. 2028 |
| Taux de location | Sur demande |
| Utilisation de l’espace | Bureau |
| Aménagement | construction complète |
| Disponible | Maintenant |
Fully furnished office with podcast studio and training room.
- Espace de sous-location disponible auprès du locataire actuel
- Entièrement construit comme Bureau standard
- Convient pour 6 à 18 personnes
Caractéristiques et commodités
- Ligne d'autobus
- Installations de conférences
Faits sur la propriété
Type de bâtiment
Bureau
Année de construction/rénovation
1962/2012
Hauteur du bâtiment
4 étages
Taille du bâtiment
66 397 pi²
Classe d’immeuble
B
Superficie de plancher typique
15 844 pi²
Hauteur du plafond non finie
10’
Stationnement
128 places de stationnement surface
Stationnement Couvert
Sélectionner des locataires
- Étage
- Nom du locataire
- Secteur
- 4ᵉ
- Achieve Balance
- Soins de santé et assistance sociale
- 2ᵉ
- Children's Home Society of North Carolina
- Soins de santé et assistance sociale
- 1ᵉʳ
- Harkins Builders
- Construction
- 4ᵉ
- Jabian Consulting
- Services professionnels, scientifiques et techniques
- 3ᵉ
- Kirk Palmer & Thigpen, P.A.
- Services professionnels, scientifiques et techniques
- 4ᵉ
- Maxim Healthcare Services
- Soins de santé et assistance sociale
- 1ᵉʳ
- Park National Bank
- Finance et assurances
- 2ᵉ
- Phenogen Sciences Inc.
- Soins de santé et assistance sociale
- 3ᵉ
- The Stump Corporation
- Services administratifs et de soutien
- 2ᵉ
- Vanderweil Engineers
- Services professionnels, scientifiques et techniques
Exceptionnellement praticable à pied
90/100
Exceptionnellement facile d’accès en voiture
90/100
Transports en commun relativement accessibles
50/100
Moyennement praticable en vélo
70/100
1 de 6
Vidéos
Visite extérieure 3D Matterport
Visite 3D Matterport
Photos
Vue depuis la rue
Rue
Carte
Présenté par
Midtown Centre | 1300 Baxter St
Vous êtes déjà membre? Connectez-vous
Hmm, il semble y avoir eu une erreur lors de l’envoi de votre message. Veuillez réessayer.
Merci! Votre message a été envoyé.







