Votre courriel a été envoyé.
Certaines informations ont été traduites automatiquement.
Caractéristiques
Tous les espaces disponibles(1)
Afficher les taux de location en
- Espace
- Taille
- Terme
- Taux de location
- Utilisation de l’espace
- État
- Disponible
Position your business for success at 1303 Terminal St., a well-located industrial property in the heart of West Sacramento’s established industrial corridor. This functional space offers convenient access to major transportation routes including I-80, I-5, and Highway 50, providing efficient connectivity throughout the Sacramento region and beyond. The property is ideal for a variety of industrial users, featuring a flexible layout suited for warehouse, distribution, or light manufacturing operations. Its strategic location near the Port of West Sacramento and downtown Sacramento makes it a prime choice for businesses seeking accessibility, visibility, and operational efficiency. Surrounded by a strong mix of industrial users and supported by a business-friendly environment, 1303 Terminal St. presents an excellent opportunity for tenants looking to establish or expand their presence in one of the region’s most sought-after industrial submarkets.
- Espace de sous-location disponible auprès du locataire actuel
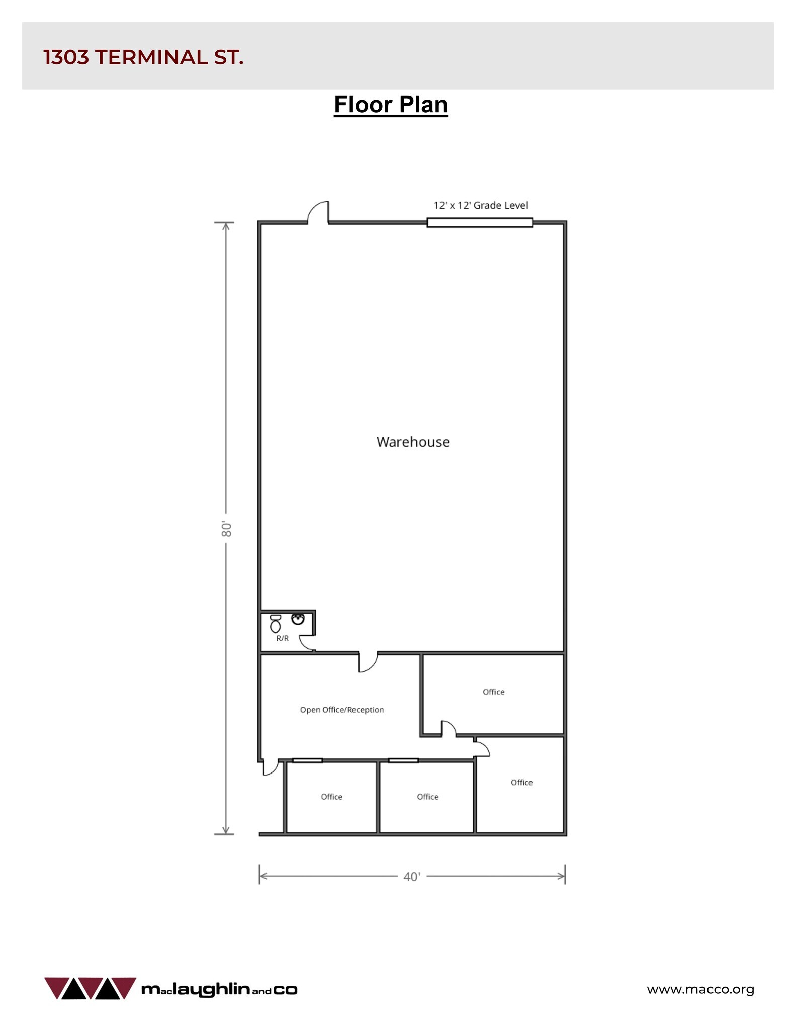
- Comprend 800 pi² d’espace de bureau dédié
- Great West Sacramento location, freeway access
- 16’-18’ Clear height
- (1) Restroom
- Le taux de location ne comprend pas les services publics, les services de bâtiment ou les dépenses immobilières.
- 1 accès plain-pied
- (1) 12’ x 12’ Grade level door
- 100 Amp, 120/208 Volt
- LED Lighting, New Paint
| Espace | Taille | Terme | Taux de location | Utilisation de l’espace | État | Disponible |
| 1er étage - 1303 Terminal St. | 3 200 pi² | Négociable | Sur demande Sur demande Sur demande Sur demande | Industriel | - | Maintenant |
1er étage - 1303 Terminal St.
| Taille |
| 3 200 pi² |
| Terme |
| Négociable |
| Taux de location |
| Sur demande Sur demande Sur demande Sur demande |
| Utilisation de l’espace |
| Industriel |
| État |
| - |
| Disponible |
| Maintenant |
1er étage - 1303 Terminal St.
| Taille | 3 200 pi² |
| Terme | Négociable |
| Taux de location | Sur demande |
| Utilisation de l’espace | Industriel |
| État | - |
| Disponible | Maintenant |
Position your business for success at 1303 Terminal St., a well-located industrial property in the heart of West Sacramento’s established industrial corridor. This functional space offers convenient access to major transportation routes including I-80, I-5, and Highway 50, providing efficient connectivity throughout the Sacramento region and beyond. The property is ideal for a variety of industrial users, featuring a flexible layout suited for warehouse, distribution, or light manufacturing operations. Its strategic location near the Port of West Sacramento and downtown Sacramento makes it a prime choice for businesses seeking accessibility, visibility, and operational efficiency. Surrounded by a strong mix of industrial users and supported by a business-friendly environment, 1303 Terminal St. presents an excellent opportunity for tenants looking to establish or expand their presence in one of the region’s most sought-after industrial submarkets.
- Espace de sous-location disponible auprès du locataire actuel
- Le taux de location ne comprend pas les services publics, les services de bâtiment ou les dépenses immobilières.
- Comprend 800 pi² d’espace de bureau dédié
- 1 accès plain-pied
- Great West Sacramento location, freeway access
- (1) 12’ x 12’ Grade level door
- 16’-18’ Clear height
- 100 Amp, 120/208 Volt
- (1) Restroom
- LED Lighting, New Paint
Aperçu de la propriété
1303 Terminal Street presents a well-positioned industrial opportunity in the heart of West Sacramento’s established industrial corridor. The ±3,200 square foot building offers a functional mix of warehouse and office space, with approximately ±800 square feet of office build-out, making it ideal for a variety of light industrial, distribution, or service-oriented users. Designed for operational efficiency, the property features 16’–18’ clear height, one grade-level loading door, and 100 Amps of 120/208V power to support a range of business needs. Its strategic location provides excellent access to major freeways and close proximity to Downtown Sacramento, allowing for convenient connectivity throughout the region. With a practical layout and strong infill location, 1303 Terminal Street is well-suited for tenants seeking a versatile and accessible industrial space in a proven West Sacramento market.
Faits sur l’installation entrepôt
Sélectionner des locataires
- Étage
- Nom du locataire
- Secteur
- 1ᵉʳ
- JackRabbit
- Détaillant
- 1ᵉʳ
- Michelli Measurement Group
- Services
- 1ᵉʳ
- Service Master Co
- Services
- 1ᵉʳ
- Swisher Hygiene USA Operation Inc
- Détaillant
Présenté par
1301-1323 Terminal St
Hmm, il semble y avoir eu une erreur lors de l’envoi de votre message. Veuillez réessayer.
Merci! Votre message a été envoyé.





