Se Connecter/S’inscrire
Votre courriel a été envoyé.
1301 SE 59th St 12 830 pi² Bureau Immeuble Oklahoma City, OK 73129 2 278 980 $ CAD (177,63 $ CAD/pi²)



Certaines informations ont été traduites automatiquement.
Faits saillants de l'investissement
- Les grands bureaux bénéficient d'une excellente lumière naturelle
- Suite Exécutive avec Salle de bain Privée
- 12 minutes du centre-ville d'OKC
- Prêt pour aspersion et Ethernet
- Accès facile depuis les I-35 et I-40
- À 12 minutes de l'aéroport de Rogers World de l'aéroport de Rogers
Résumé de l'annonce
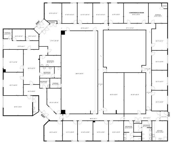
Un immeuble de bureaux très accessible est disponible dans le sud d'Oklahoma City, juste à côté de l'autoroute I-35. Cet immeuble de 12 830 Pi2 est en excellent état avec un nouveau toit, une plomberie mise à jour et 78 places de stationnement. Des bureaux de bonne taille avec une excellente lumière naturelle bordent le périmètre de l'immeuble et comprennent une suite exécutive avec salle de bain privée. L'intérieur du bâtiment comporte de grands espaces qui peuvent être utilisés pour les grandes salles de réunion, les opérations, l'installation de cabines, ou peuvent être convertis pour des utilisations spécifiques pour votre entreprise. Le bâtiment équipé d'un système de gicleurs et d'une connexion Ethernet dispose d'environ 675 ampères d'électricité qui entrent dans le bâtiment, ainsi que d'une infrastructure de sécurité, d'irrigation et de lutte contre les incendies. La salle mécanique comprend des racks de serveurs et un câblage basse tension.
Faits sur la propriété
Type de vente
Propriétaire utilisateur
Type de propriété
Bureau
Sous-type de propriété
Médical
Taille du bâtiment
12 830 pi²
Classe d’immeuble
C
Année de construction
1981
Prix
2 278 980 $ CAD
Prix par pi²
177,63 $ CAD
Location
Unique
Hauteur du bâtiment
1 étage
Superficie de plancher typique
12 830 pi²
Coefficient d’occupation des sols de l’immeuble
0,12
Taille du lot
2,54 AC
Zonage
I-2 - Industriel modéré
Stationnement
80 places (6,24 places par 1 000 pi² loué)
Commodités
- Système de sécurité
- Accessible aux fauteuils roulants
- Espace d'entreposage
- Chauffage central
- Réception
- Climatisation
- Détecteur de fumée
1 1
Assez praticable à pied
40/100
Exceptionnellement facile d’accès en voiture
100/100
Transports en commun limités
30/100
Assez praticable en vélo
30/100
Impôts fonciers
| Numéro de lot | 132109727 | Évaluation des bâtiments | 116 714 $ CAD (2025) |
| Évaluation du terrain | 32 828 $ CAD (2025) | Évaluation totale | 149 543 $ CAD (2025) |
Impôts fonciers
Numéro de lot
132109727
Évaluation du terrain
32 828 $ CAD (2025)
Évaluation des bâtiments
116 714 $ CAD (2025)
Évaluation totale
149 543 $ CAD (2025)
1 de 4
Vidéos
Visite extérieure 3D Matterport
Visite 3D Matterport
Photos
Vue depuis la rue
Rue
Carte
1 de 1
Présenté par
1301 SE 59th St
Vous êtes déjà membre? Connectez-vous
Hmm, il semble y avoir eu une erreur lors de l’envoi de votre message. Veuillez réessayer.
Merci! Votre message a été envoyé.
