Se Connecter/S’inscrire
Votre courriel a été envoyé.
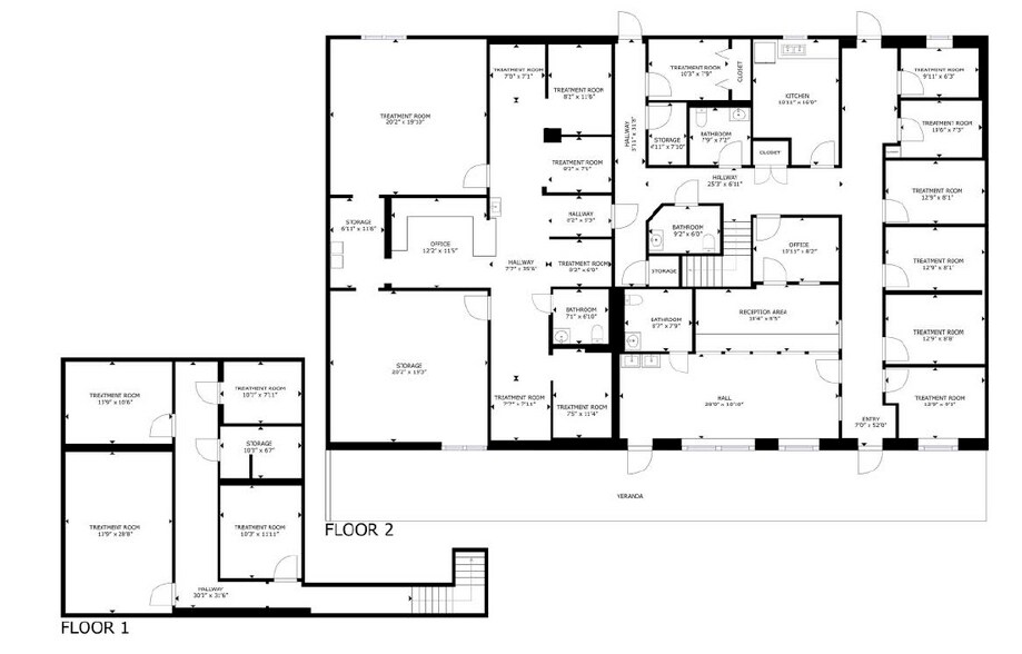
Medical Building For Sale/Lease 1302 N Stanton St 5 412 pi² Bureau Immeuble El Paso, TX 79902 À vendre



Certaines informations ont été traduites automatiquement.
FAITS SAILLANTS DE L'INVESTISSEMENT
- Adapté pour une utilisation en cabinet médical.
- Près de l'hôpital et de l'UTEP.
RÉSUMÉ DE L'ANNONCE
Découvrez la quintessence de l'excellence professionnelle au 1302 N Stanton St, parfaitement adapté aux professionnels des cabinets médicaux à la recherche d'une adresse prestigieuse au Centre-ville/centre d'El Paso. Bénéficiant d'un espace médical polyvalent de 5 412 pieds carrés (dont 992 pieds carrés de sous-sol), cet emplacement privilégié offre une accessibilité transparente et un carrefour centralisé pour la conduite des affaires. Avec sa proximité de sites clés tels que l'hôpital Las Palmas, l'Université du Texas à El Paso, l'école secondaire El Paso, ainsi que l'atmosphère dynamique du centre-ville, cette propriété offre une occasion inégalée d'élever votre présence et de poursuivre votre chemin vers la croissance.
FAITS SUR LA PROPRIÉTÉ Sous contrat
Type de vente
Investissement ou propriétaire utilisateur
Type de propriété
Bureau
Sous-type de propriété
Médical
Taille du bâtiment
5 412 pi²
Classe d’immeuble
C
Année de construction
1970
Location
Unique
Hauteur du bâtiment
1 étage
Superficie de plancher typique
5 412 pi²
Coefficient d’occupation des sols de l’immeuble
0,34
Taille du lot
0,37 AC
Zonage
AO - Appartement/Bureau
COMMODITÉS
- Affichage
1 1
Walk Score®
Très pratique à pied (77)
Impôts fonciers
| Numéro de lot | A462-999-0220-7300 | Évaluation des bâtiments | 887 943 $ CAD |
| Évaluation du terrain | 327 762 $ CAD | Évaluation totale | 1 215 705 $ CAD |
Impôts fonciers
Numéro de lot
A462-999-0220-7300
Évaluation du terrain
327 762 $ CAD
Évaluation des bâtiments
887 943 $ CAD
Évaluation totale
1 215 705 $ CAD
1 de 29
VIDÉOS
VISITE EXTÉRIEURE 3D MATTERPORT
VISITE 3D MATTERPORT
PHOTOS
VUE DEPUIS LA RUE
RUE
CARTE
1 de 1
Présenté par
Medical Building For Sale/Lease | 1302 N Stanton St
Vous êtes déjà membre? Connectez-vous
Hmm, il semble y avoir eu une erreur lors de l’envoi de votre message. Veuillez réessayer.
Merci! Votre message a été envoyé.
