Se Connecter/S’inscrire
Votre courriel a été envoyé.
13053 Harmon Rd Unité de condo • Flex • 2 350 pi² • À vendre 825 102 $ CAD • Fort Worth, TX 76177



Certaines informations ont été traduites automatiquement.
Faits saillants de l'investissement
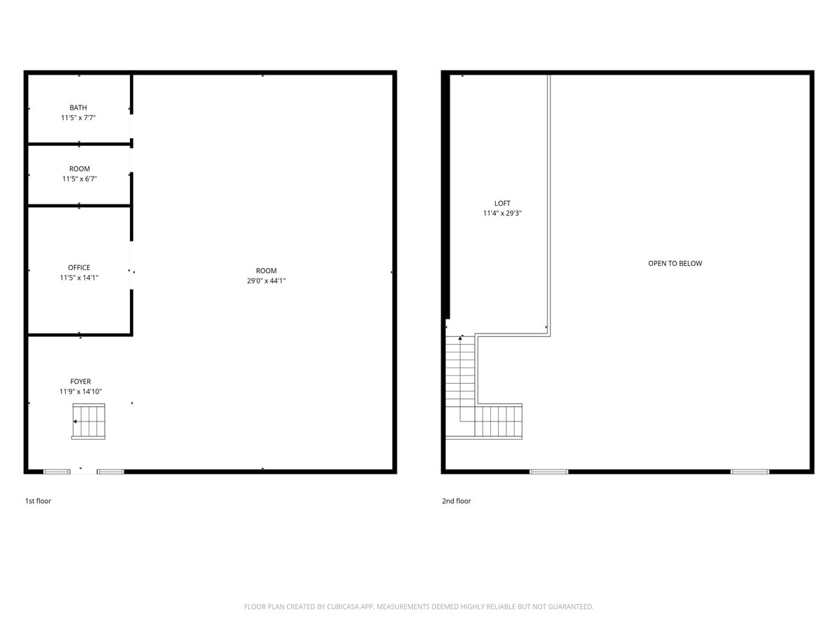
- Over 2300 RSF sq ft of fully finished space
- Functional flexible mezzanine space that can be extended.
- Currently used as a training facility but can be easily converted.
- Fully airconditioned unit
- Kitchen, bathroom with shower, office space
- Oversized drive in garage door
Résumé de l'annonce
• Over 2300 RSF sq ft of fully finished space. • Fully airconditioned unit • Functional flexible mezzanine space that can be extended. • Kitchen, bathroom with shower, office space • Currently used as a training facility but can be easily converted. • Oversized drive in garage door • Zoning: ETJ (Extra-Territorial Jurisdiction) • Easy access to I-35W • Part of Harmon Industrial Condos Development
1 Unité disponible
- Unité
- Taille de l’unité
- Utilisation du condo
- Prix
- Revenu net d’exploitation
| Type de vente | Propriétaire utilisateur |
| Type de vente | Propriétaire utilisateur |
Description
Over 2350 RSF sq ft of fully finished space.
Fully airconditioned unit
Functional flexible mezzanine space that can be extended.
Kitchen, bathroom with shower, office space
Currently used as a training facility but can be easily converted.
Oversized drive in garage door
Zoning: ETJ (Extra-Territorial Jurisdiction)
Easy access to I-35W
Part of Harmon Industrial Condos Development
Fully airconditioned unit
Functional flexible mezzanine space that can be extended.
Kitchen, bathroom with shower, office space
Currently used as a training facility but can be easily converted.
Oversized drive in garage door
Zoning: ETJ (Extra-Territorial Jurisdiction)
Easy access to I-35W
Part of Harmon Industrial Condos Development
Notes sur la vente
Rare opportunity own a fully finished industrial unit with a mezzanine in highly sought after Harmon Industrial Park
Perfect for athletic trainer or can be easily converted to a store front, warehouse or automotive user.
Perfect for athletic trainer or can be easily converted to a store front, warehouse or automotive user.
| Unité | Taille de l’unité | Utilisation du condo | Prix | Revenu net d’exploitation |
| Unité 1011 | 2 350 pi² | Flex | 825 102 $ CAD (351,11 $ CAD/pi²) | - |
Unité 1011
| Taille de l’unité |
| 2 350 pi² |
| Utilisation du condo |
| Flex |
| Prix |
| 825 102 $ CAD (351,11 $ CAD/pi²) |
| Revenu net d’exploitation |
| - |
1 de 18
Vidéos
Visite extérieure 3D Matterport
Visite 3D Matterport
Photos
Vue depuis la rue
Rue
Carte
Unité 1011
| Taille de l’unité | 2 350 pi² |
| Utilisation du condo | Flex |
| Prix | 825 102 $ CAD (351,11 $ CAD/pi²) |
| Revenu net d’exploitation | - |
| Type de vente | Propriétaire utilisateur |
| Description | |
| Over 2350 RSF sq ft of fully finished space.<br> Fully airconditioned unit<br> Functional flexible mezzanine space that can be extended.<br> Kitchen, bathroom with shower, office space <br> Currently used as a training facility but can be easily converted.<br> Oversized drive in garage door<br> Zoning: ETJ (Extra-Territorial Jurisdiction) <br> Easy access to I-35W<br> Part of Harmon Industrial Condos Development</li></ul> | |
| Notes sur la vente | |
| Rare opportunity own a fully finished industrial unit with a mezzanine in highly sought after Harmon Industrial Park<br> Perfect for athletic trainer or can be easily converted to a store front, warehouse or automotive user.</li></ul> |
Faits sur la propriété
Les caractéristiques, les équipements et les services publics suivants s'appliquent à l'ensemble du bâtiment. Les détails relatifs aux unités de copropriété individuelles peuvent varier et figurent dans les informations concernant les unités ci-dessus.
Commodités
- Accès 24 heures
- Chargement frontal
- Mezzanine
- Affichage
Services publics
- Éclairage
- Eau - Puits
- Égout - Champ septique
- Chauffage - Électricité
1 1
Plutôt practicable à pied
30/100
Exceptionnellement facile d'accès en voiture
100/100
Plutôt praticable en vélo
50/100
1 de 21
Vidéos
Visite extérieure 3D Matterport
Visite 3D Matterport
Photos
Vue depuis la rue
Rue
Carte
1 de 1
Présenté par
13053 Harmon Rd
Vous êtes déjà membre? Connectez-vous
Hmm, il semble y avoir eu une erreur lors de l’envoi de votre message. Veuillez réessayer.
Merci! Votre message a été envoyé.


