Se Connecter/S’inscrire
Votre courriel a été envoyé.
13135 Lee Jackson Hwy
Fairfax, VA 22033
Greenbriar Office Center · Médical Propriété pour Bail
·
1 500 pi²


Certaines informations ont été traduites automatiquement.
Caractéristiques et commodités
- Atrium
- Affichage
- Douches
Faits sur la propriété
Type de bâtiment
Bureau
Année de construction/rénovation
1985/2017
Hauteur du bâtiment
3 étages
Taille du bâtiment
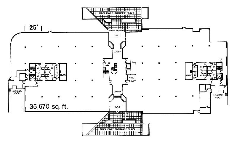
116 581 pi²
Classe d’immeuble
B
Superficie de plancher typique
38 860 pi²
Hauteur du plafond non finie
12’
Stationnement
379 places de stationnement surface
Stationnement Couvert
1 de 15
Vidéos
Visite extérieure 3D Matterport
Visite 3D Matterport
Photos
Vue depuis la rue
Rue
Carte
