Votre courriel a été envoyé.
Prologis Sylmar Distribution Center 1 13207 Bradley Ave 90 092 pi² d'espace disponible • Industriel • Sylmar, CA 91342


Certaines informations ont été traduites automatiquement.
Faits saillants
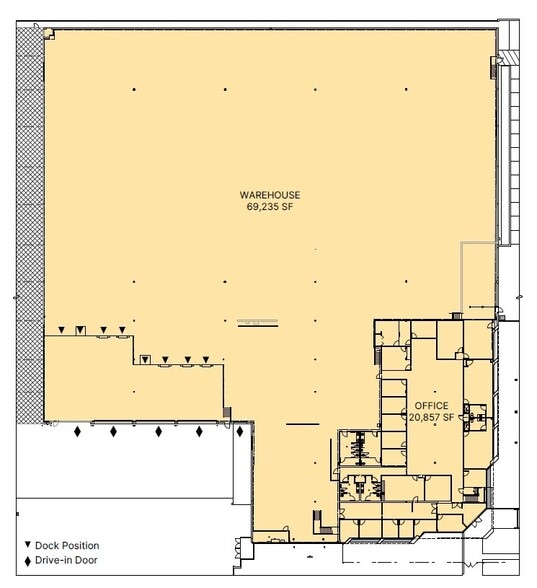
- 90,092 SF FOR LEASE - Attractive Corporate Image Distribution Building
- 8 Dock Loading Positions
- Fenced Yard with 129 Car Parking
- 24'-28' Clearance
- 4 (24'x14') Oversized Loading Doors
- 20,857 SF of New Office Space
Caractéristiques
Tous les espaces disponibles(1)
Afficher les taux de location en
- Espace
- Taille
- Terme
- Taux de location
- Utilisation de l’espace
- Aménagement
- Disponible
Attractive Corporate Image Distribution Building. 24'-28' Clearance 8 Dock Loading Positions 4 (24'x14') Oversized Loading Doors Fenced Yard with 129 Car Parking 20,857 SF of New Office Space Located less than 1 mile from Interstate 5. 12 Miles from the Hollywood-Burbank Airport and 29 Miles from Los Angeles International Airport (LAX). Corporate Neighbors Include Coca-Cola, Anheuser-Busch, St. Jude Medical, Vallarta Supermarkets HQ, Tutor Perini.
- Le taux de location ne comprend pas les services publics, les services de bâtiment ou les dépenses immobilières.
- 1 accès plain-pied
- 8 quais de chargement
- Attractive Corporate Image Distribution Building
- 8 Dock Loading Positions
- Fenced Yard with 129 Car Parking
- Comprend 20 857 pi² d’espace de bureau dédié
- Espace en excellent état
- Cour
- 24'-28' Clearance
- 4 (24'x14') Oversized Loading Doors
- 20,857 SF of New Office Space
| Espace | Taille | Terme | Taux de location | Utilisation de l’espace | Aménagement | Disponible |
| 1er étage - 100 | 90 092 pi² | 5 ans | 22,36 $ CAD/pi²/an 1,86 $ CAD/pi²/mois 2 014 313 $ CAD/an 167 859 $ CAD/mois | Industriel | construction partielle | Maintenant |
1er étage - 100
| Taille |
| 90 092 pi² |
| Terme |
| 5 ans |
| Taux de location |
| 22,36 $ CAD/pi²/an 1,86 $ CAD/pi²/mois 2 014 313 $ CAD/an 167 859 $ CAD/mois |
| Utilisation de l’espace |
| Industriel |
| Aménagement |
| construction partielle |
| Disponible |
| Maintenant |
1er étage - 100
| Taille | 90 092 pi² |
| Terme | 5 ans |
| Taux de location | 22,36 $ CAD/pi²/an |
| Utilisation de l’espace | Industriel |
| Aménagement | construction partielle |
| Disponible | Maintenant |
Attractive Corporate Image Distribution Building. 24'-28' Clearance 8 Dock Loading Positions 4 (24'x14') Oversized Loading Doors Fenced Yard with 129 Car Parking 20,857 SF of New Office Space Located less than 1 mile from Interstate 5. 12 Miles from the Hollywood-Burbank Airport and 29 Miles from Los Angeles International Airport (LAX). Corporate Neighbors Include Coca-Cola, Anheuser-Busch, St. Jude Medical, Vallarta Supermarkets HQ, Tutor Perini.
- Le taux de location ne comprend pas les services publics, les services de bâtiment ou les dépenses immobilières.
- Comprend 20 857 pi² d’espace de bureau dédié
- 1 accès plain-pied
- Espace en excellent état
- 8 quais de chargement
- Cour
- Attractive Corporate Image Distribution Building
- 24'-28' Clearance
- 8 Dock Loading Positions
- 4 (24'x14') Oversized Loading Doors
- Fenced Yard with 129 Car Parking
- 20,857 SF of New Office Space
Aperçu de la propriété
Bâtiment de Distribution avec Image Corporative Attrayante 90 092 pi² à louer Hauteur libre de 24 à 28 pieds 8 quais de chargement 4 portes de chargement surdimensionnées (24' x 14') Cour clôturée avec stationnement pour 129 voitures 20 857 pi² de nouveaux espaces de bureaux Situé à moins de 1 mile de l'Interstate 5 À 12 miles de l'aéroport Hollywood-Burbank et à 29 miles de l'aéroport international de Los Angeles (LAX) Voisins corporatifs incluent Coca-Cola, Anheuser-Busch, St. Jude Medical, le siège social de Vallarta Supermarkets, Tutor Perini.
Faits sur l’installation distribution
Présenté par
Prologis Sylmar Distribution Center 1 | 13207 Bradley Ave
Hmm, il semble y avoir eu une erreur lors de l’envoi de votre message. Veuillez réessayer.
Merci! Votre message a été envoyé.



