Votre courriel a été envoyé.
Certaines informations ont été traduites automatiquement.
Tous les espaces disponibles(3)
Afficher les taux de location en
- Espace
- Taille
- Terme
- Taux de location
- Utilisation de l’espace
- Aménagement
- Disponible
FIRST FLOOR SPACE
- Le taux inscrit peut ne pas comprendre certains services publics, les services de bâtiment et les dépenses immobilières.
- Disposition du plan d’étage ouverte en général
- Entièrement construit comme Bureau standard
Professional office space consisting of multiple offices, conference rooms, 3 restrooms, reception, bullpen area, kitchen, and bonus enclosed balcony (254 additional sf). Space shows exceptionally well, and current tenant is the owner. Current use is professional office for commercial construction company. Lease asking rent is $14/sf MG + Utilities and CAM. Landlord is looking for qualified long-term tenant. Some customization available. Ample parking.
- Le taux inscrit peut ne pas comprendre certains services publics, les services de bâtiment et les dépenses immobilières.
- 9 bureaux privés
- Espace en excellent état
- Includes bullpen workspace
- Owner occupied
- Long term lease opportunity
- Entièrement construit comme Bureau standard
- 1 salle de conférence
- Professional office suite
- Soace shows exceptionally well
- Ample parking with some customization
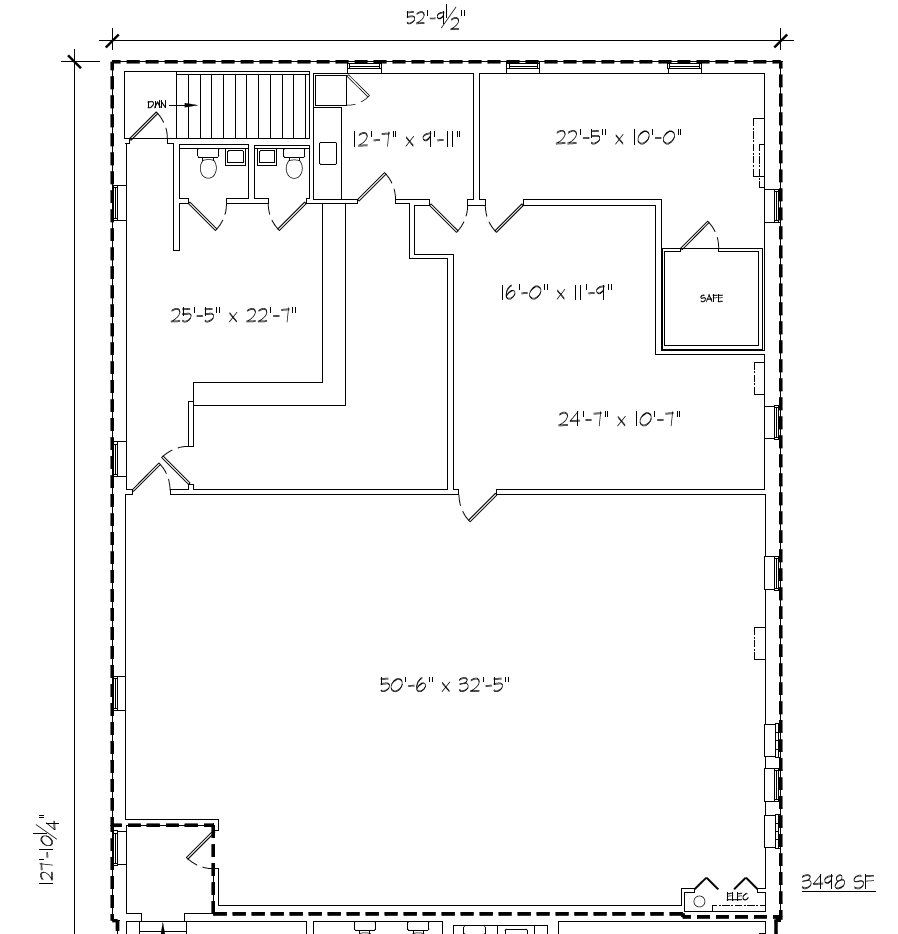
2nd floor suite in high security building perfect for retail or office use. Approx 3,498 SF. Features include retail showroom, large training room, offices, kitchen/breakroom, and 2 in suite restrooms. Perfect location for general retail, office, medical, or other professional uses including classrooms, firearms, jeweler, institutional. Also features security doors, buzz-in system, camera system, and other security features.
- Le taux inscrit peut ne pas comprendre certains services publics, les services de bâtiment et les dépenses immobilières.
- Disposition du plan d’étage ouverte en général
- 1 salle de conférence
- Second-floor 3,498 SF suite
- Flexible layout with a showroom
- Extensive security features
- Entièrement construit comme Espace de commerce de détail standard
- 2 bureaux privés
- Espace en excellent état
- High-security building
- Two in suite restrooms
- Well suited for professional or specialty users
| Espace | Taille | Terme | Taux de location | Utilisation de l’espace | Aménagement | Disponible |
| 1er étage, ste 2 | 2 748 pi² | 5-10 ans | 14,06 $ CAD/pi²/an 1,17 $ CAD/pi²/mois 38 646 $ CAD/an 3 220 $ CAD/mois | Bureau/Commerce de détail | construction complète | Maintenant |
| 1er étage, ste 4 | 2 852 pi² | 5-10 ans | 13,59 $ CAD/pi²/an 1,13 $ CAD/pi²/mois 38 752 $ CAD/an 3 229 $ CAD/mois | Bureau | construction complète | Maintenant |
| 2e étage, ste 3 | 3 498 pi² | 5-10 ans | 13,59 $ CAD/pi²/an 1,13 $ CAD/pi²/mois 47 530 $ CAD/an 3 961 $ CAD/mois | Bureau/Commerce de détail | construction complète | Maintenant |
1er étage, ste 2
| Taille |
| 2 748 pi² |
| Terme |
| 5-10 ans |
| Taux de location |
| 14,06 $ CAD/pi²/an 1,17 $ CAD/pi²/mois 38 646 $ CAD/an 3 220 $ CAD/mois |
| Utilisation de l’espace |
| Bureau/Commerce de détail |
| Aménagement |
| construction complète |
| Disponible |
| Maintenant |
1er étage, ste 4
| Taille |
| 2 852 pi² |
| Terme |
| 5-10 ans |
| Taux de location |
| 13,59 $ CAD/pi²/an 1,13 $ CAD/pi²/mois 38 752 $ CAD/an 3 229 $ CAD/mois |
| Utilisation de l’espace |
| Bureau |
| Aménagement |
| construction complète |
| Disponible |
| Maintenant |
2e étage, ste 3
| Taille |
| 3 498 pi² |
| Terme |
| 5-10 ans |
| Taux de location |
| 13,59 $ CAD/pi²/an 1,13 $ CAD/pi²/mois 47 530 $ CAD/an 3 961 $ CAD/mois |
| Utilisation de l’espace |
| Bureau/Commerce de détail |
| Aménagement |
| construction complète |
| Disponible |
| Maintenant |
1er étage, ste 2
| Taille | 2 748 pi² |
| Terme | 5-10 ans |
| Taux de location | 14,06 $ CAD/pi²/an |
| Utilisation de l’espace | Bureau/Commerce de détail |
| Aménagement | construction complète |
| Disponible | Maintenant |
FIRST FLOOR SPACE
- Le taux inscrit peut ne pas comprendre certains services publics, les services de bâtiment et les dépenses immobilières.
- Entièrement construit comme Bureau standard
- Disposition du plan d’étage ouverte en général
1er étage, ste 4
| Taille | 2 852 pi² |
| Terme | 5-10 ans |
| Taux de location | 13,59 $ CAD/pi²/an |
| Utilisation de l’espace | Bureau |
| Aménagement | construction complète |
| Disponible | Maintenant |
Professional office space consisting of multiple offices, conference rooms, 3 restrooms, reception, bullpen area, kitchen, and bonus enclosed balcony (254 additional sf). Space shows exceptionally well, and current tenant is the owner. Current use is professional office for commercial construction company. Lease asking rent is $14/sf MG + Utilities and CAM. Landlord is looking for qualified long-term tenant. Some customization available. Ample parking.
- Le taux inscrit peut ne pas comprendre certains services publics, les services de bâtiment et les dépenses immobilières.
- Entièrement construit comme Bureau standard
- 9 bureaux privés
- 1 salle de conférence
- Espace en excellent état
- Professional office suite
- Includes bullpen workspace
- Soace shows exceptionally well
- Owner occupied
- Ample parking with some customization
- Long term lease opportunity
2e étage, ste 3
| Taille | 3 498 pi² |
| Terme | 5-10 ans |
| Taux de location | 13,59 $ CAD/pi²/an |
| Utilisation de l’espace | Bureau/Commerce de détail |
| Aménagement | construction complète |
| Disponible | Maintenant |
2nd floor suite in high security building perfect for retail or office use. Approx 3,498 SF. Features include retail showroom, large training room, offices, kitchen/breakroom, and 2 in suite restrooms. Perfect location for general retail, office, medical, or other professional uses including classrooms, firearms, jeweler, institutional. Also features security doors, buzz-in system, camera system, and other security features.
- Le taux inscrit peut ne pas comprendre certains services publics, les services de bâtiment et les dépenses immobilières.
- Entièrement construit comme Espace de commerce de détail standard
- Disposition du plan d’étage ouverte en général
- 2 bureaux privés
- 1 salle de conférence
- Espace en excellent état
- Second-floor 3,498 SF suite
- High-security building
- Flexible layout with a showroom
- Two in suite restrooms
- Extensive security features
- Well suited for professional or specialty users
Caractéristiques et commodités
- Accès 24 heures
- Chauffage central
- Plafond suspendu
- Climatisation
- Détecteur de fumée
Faits sur la propriété
Présenté par
1330 Dillon Heights Ave
Hmm, il semble y avoir eu une erreur lors de l’envoi de votre message. Veuillez réessayer.
Merci! Votre message a été envoyé.





