Votre courriel a été envoyé.
Regents Park II 1335 Regents Park Dr 3 604 pi² d'espace disponible • Bureau • Houston, TX 77058



Certaines informations ont été traduites automatiquement.
Faits saillants
- On-site Maintenance
- On-site property management
- Online reservation system for Conference room
Tous les espaces disponibles(1)
Afficher les taux de location en
- Espace
- Taille
- Terme
- Taux de location
- Utilisation de l’espace
- Aménagement
- Disponible
Large office space that includes 10 private offices, with a kitchenette. Large open area with provided cubicle walls. 2nd floor with great outdoor views from private offices. Rate includes utilities, building services and property expenses. fully built out as-is or build to suit.
- Le taux comprend les services publics, les services de bâtiment et les dépenses immobilières.
- Disposition du plan d’étage ouverte en général
- 10 bureaux privés
- Air central et chauffage
- Espace en coin
- CVCA disponible après les heures de travail
- Plan ouvert
- Online Reservation system for conference Room
- Entièrement construit comme Bureau standard
- Convient pour 10 à 29 personnes
- Espace en excellent état
- Complètement tapissé
- Lumière naturelle
- Atrium
- On-Site Maintenance
- On-site Property management
| Espace | Taille | Terme | Taux de location | Utilisation de l’espace | Aménagement | Disponible |
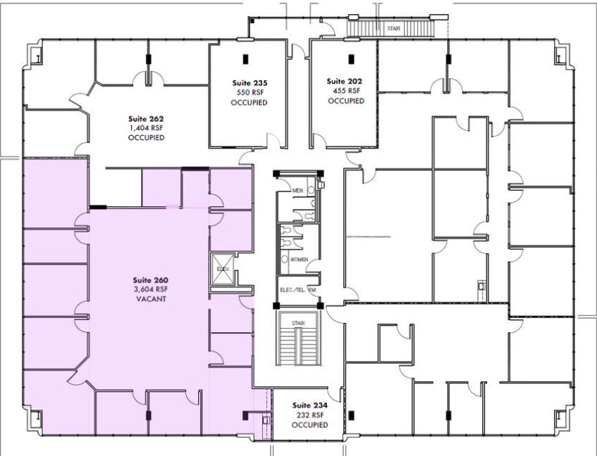
| 2e étage, ste 260 | 3 604 pi² | 1-5 ans | 23,27 $ CAD/pi²/an 1,94 $ CAD/pi²/mois 83 868 $ CAD/an 6 989 $ CAD/mois | Bureau | construction complète | Maintenant |
2e étage, ste 260
| Taille |
| 3 604 pi² |
| Terme |
| 1-5 ans |
| Taux de location |
| 23,27 $ CAD/pi²/an 1,94 $ CAD/pi²/mois 83 868 $ CAD/an 6 989 $ CAD/mois |
| Utilisation de l’espace |
| Bureau |
| Aménagement |
| construction complète |
| Disponible |
| Maintenant |
2e étage, ste 260
| Taille | 3 604 pi² |
| Terme | 1-5 ans |
| Taux de location | 23,27 $ CAD/pi²/an |
| Utilisation de l’espace | Bureau |
| Aménagement | construction complète |
| Disponible | Maintenant |
Large office space that includes 10 private offices, with a kitchenette. Large open area with provided cubicle walls. 2nd floor with great outdoor views from private offices. Rate includes utilities, building services and property expenses. fully built out as-is or build to suit.
- Le taux comprend les services publics, les services de bâtiment et les dépenses immobilières.
- Entièrement construit comme Bureau standard
- Disposition du plan d’étage ouverte en général
- Convient pour 10 à 29 personnes
- 10 bureaux privés
- Espace en excellent état
- Air central et chauffage
- Complètement tapissé
- Espace en coin
- Lumière naturelle
- CVCA disponible après les heures de travail
- Atrium
- Plan ouvert
- On-Site Maintenance
- Online Reservation system for conference Room
- On-site Property management
Aperçu de la propriété
1335 Regents Park Dr is a 2-story office building with great accessibility to I-45 and Nasa Rd 1. Its close to many retails and restaurants.
- Accès 24 heures
- Gestionnaire d'immeuble sur place
- Réception
- Sièges extérieurs
Faits sur la propriété
Sélectionner des locataires
- Étage
- Nom du locataire
- Secteur
- 1ᵉʳ
- Clear Lake Integrative Medicine
- Soins de santé et assistance sociale
- 1ᵉʳ
- Cultivating Changes LLC
- Soins de santé et assistance sociale
- 1ᵉʳ
- Energicity Corp Advanced Industrial
- Services publics
- 1ᵉʳ
- ESyntaxis Corp
- Détaillant
- 2ᵉ
- Innovative Alternatives, Inc.
- Soins de santé et assistance sociale
- 2ᵉ
- Japan Manned Space System Corporation
- Services professionnels, scientifiques et techniques
- 2ᵉ
- Leo Does It
- Services professionnels, scientifiques et techniques
- 1ᵉʳ
- Mergen IT Services
- Information
- 1ᵉʳ
- Safe Mind Space Counseling Group
- Soins de santé et assistance sociale
- 2ᵉ
- Willits Technologies
- Services professionnels, scientifiques et techniques
Présenté par
Regents Park II | 1335 Regents Park Dr
Hmm, il semble y avoir eu une erreur lors de l’envoi de votre message. Veuillez réessayer.
Merci! Votre message a été envoyé.


