Votre courriel a été envoyé.
Certaines informations ont été traduites automatiquement.
FAITS SAILLANTS
- Excellente visibilité et accès
- Un dixième de mille au nord de l'autoroute 114, à proximité de nombreux restaurants
TOUS LES ESPACES DISPONIBLES(2)
Afficher les taux de location en
- ESPACE
- TAILLE
- TERME
- TAUX DE LOCATION
- UTILISATION DE L’ESPACE
- ÉTAT
- DISPONIBLE
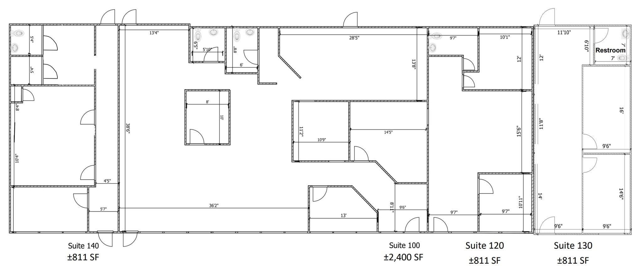
Suites 100-140 can be combined in sf variations of 811, 1,622, 3,211, and 4,022 sf. Monthly Gross Including Electricity: $1,829.48-$10,902.44 $18.00 PSF + NNN ($8.31) + Electricity at $1.02/SF
- Le taux de location ne comprend pas les services publics, les services de bâtiment ou les dépenses immobilières.
- 7 bureaux privés
- Climatisation centrale
- Cuisine
- Trois suites 811 SF (suites 140, 120, 130)
- Partiellement construit comme Bureau standard
- 2 salles de conférence
- Aire de réception
- Salle de bains privée
- Une suite de 2 400 pieds 2 (Suite 100)
MO Gross Including Electricity: $1,741.50 $18.00 PSF + NNN ($8.31) + Electricity at $1.02/SF
- Le taux de location ne comprend pas les services publics, les services de bâtiment ou les dépenses immobilières.
- 3 bureaux privés
- Salle de bains privée
- Points d'entrée des couloirs principal et arrière
- Partiellement construit comme Bureau standard
- Aire de réception
- Entreposage sécurisé
- Comprend un placard de rangement et une fontaine d'eau
| Espace | Taille | Terme | Taux de location | Utilisation de l’espace | État | Disponible |
| 1er étage, ste 100-140 | 811 à 4 833 pi² | Négociable | 25,11 $ CAD/pi²/an 2,09 $ CAD/pi²/mois 121 374 $ CAD/an 10 115 $ CAD/mois | Bureau | construction partielle | 30 jours |
| 1er étage, ste 185 | 772 pi² | Négociable | 25,11 $ CAD/pi²/an 2,09 $ CAD/pi²/mois 19 388 $ CAD/an 1 616 $ CAD/mois | Bureau | construction partielle | Maintenant |
1er étage, ste 100-140
| Taille |
| 811 à 4 833 pi² |
| Terme |
| Négociable |
| Taux de location |
| 25,11 $ CAD/pi²/an 2,09 $ CAD/pi²/mois 121 374 $ CAD/an 10 115 $ CAD/mois |
| Utilisation de l’espace |
| Bureau |
| État |
| construction partielle |
| Disponible |
| 30 jours |
1er étage, ste 185
| Taille |
| 772 pi² |
| Terme |
| Négociable |
| Taux de location |
| 25,11 $ CAD/pi²/an 2,09 $ CAD/pi²/mois 19 388 $ CAD/an 1 616 $ CAD/mois |
| Utilisation de l’espace |
| Bureau |
| État |
| construction partielle |
| Disponible |
| Maintenant |
1er étage, ste 100-140
| Taille | 811 à 4 833 pi² |
| Terme | Négociable |
| Taux de location | 25,11 $ CAD/pi²/an |
| Utilisation de l’espace | Bureau |
| État | construction partielle |
| Disponible | 30 jours |
Suites 100-140 can be combined in sf variations of 811, 1,622, 3,211, and 4,022 sf. Monthly Gross Including Electricity: $1,829.48-$10,902.44 $18.00 PSF + NNN ($8.31) + Electricity at $1.02/SF
- Le taux de location ne comprend pas les services publics, les services de bâtiment ou les dépenses immobilières.
- Partiellement construit comme Bureau standard
- 7 bureaux privés
- 2 salles de conférence
- Climatisation centrale
- Aire de réception
- Cuisine
- Salle de bains privée
- Trois suites 811 SF (suites 140, 120, 130)
- Une suite de 2 400 pieds 2 (Suite 100)
1er étage, ste 185
| Taille | 772 pi² |
| Terme | Négociable |
| Taux de location | 25,11 $ CAD/pi²/an |
| Utilisation de l’espace | Bureau |
| État | construction partielle |
| Disponible | Maintenant |
MO Gross Including Electricity: $1,741.50 $18.00 PSF + NNN ($8.31) + Electricity at $1.02/SF
- Le taux de location ne comprend pas les services publics, les services de bâtiment ou les dépenses immobilières.
- Partiellement construit comme Bureau standard
- 3 bureaux privés
- Aire de réception
- Salle de bains privée
- Entreposage sécurisé
- Points d'entrée des couloirs principal et arrière
- Comprend un placard de rangement et une fontaine d'eau
APERÇU DE LA PROPRIÉTÉ
- À quelques minutes des autoroutes 121, 114, 635 et 360 - à 5 minutes de l'aéroport international DFW et à quelques pâtés de maisons du nouveau Grapevine TexrRail et du NOUVEAU Clocktower - Magnifique immeuble de bureaux situé le long de la rue Main au centre-ville de Grapevine - Une parcelle au nord du 114 de la North West Company et de la rue Main - marcher jusqu'à NEW Velvet Taco, Black Rifle Coffee et Rock&Brews - Un dixième mille au nord de l'autoroute 114, à proximité de nombreux restaurants
- Affichage
- Climatisation
FAITS SUR LA PROPRIÉTÉ
Présenté par
Vision Office Park | 1340 S main St
Hmm, il semble y avoir eu une erreur lors de l’envoi de votre message. Veuillez réessayer.
Merci! Votre message a été envoyé.







