Se Connecter/S’inscrire
Votre courriel a été envoyé.
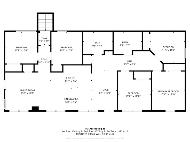
1349 Yorktown Rd Immeuble de 5 719 pi² • Soins de santé • À vendre 3 814 869 $ CAD • Annapolis, MD 21409



Certaines informations ont été traduites automatiquement.
Faits sur la propriété
| Prix | 3 814 869 $ CAD | Classe d’immeuble | C |
| Prix par lit | 238 429 $ CAD | Taille du lot | 0,88 AC |
| Type de vente | Investissement ou propriétaire utilisateur | Taille du bâtiment | 5 719 pi² |
| Condition de vente | Valeur opérationnelle comprise | Nbre de lits | 16 |
| Type de propriété | Soins de santé | Nombre d’étages | 2 |
| Sous-type de propriété | Logement avec assistance | Année de construction/rénovation | 1990/2026 |
| Zonage | R1 - single-family detached dwellings | ||
| Prix | 3 814 869 $ CAD |
| Prix par lit | 238 429 $ CAD |
| Type de vente | Investissement ou propriétaire utilisateur |
| Condition de vente | Valeur opérationnelle comprise |
| Type de propriété | Soins de santé |
| Sous-type de propriété | Logement avec assistance |
| Classe d’immeuble | C |
| Taille du lot | 0,88 AC |
| Taille du bâtiment | 5 719 pi² |
| Nbre de lits | 16 |
| Nombre d’étages | 2 |
| Année de construction/rénovation | 1990/2026 |
| Zonage | R1 - single-family detached dwellings |
1 1
Impôts fonciers
| Numéro de lot | 03-000-90252369 | Évaluation des bâtiments | 0 $ CAD |
| Évaluation du terrain | 0 $ CAD | Évaluation totale | 922 074 $ CAD |
Impôts fonciers
Numéro de lot
03-000-90252369
Évaluation du terrain
0 $ CAD
Évaluation des bâtiments
0 $ CAD
Évaluation totale
922 074 $ CAD
1 de 37
Vidéos
Visite extérieure 3D Matterport
Visite 3D Matterport
Photos
Vue depuis la rue
Rue
Carte
1 de 1
Présenté par
1349 Yorktown Rd
Vous êtes déjà membre? Connectez-vous
Hmm, il semble y avoir eu une erreur lors de l’envoi de votre message. Veuillez réessayer.
Merci! Votre message a été envoyé.
