Se Connecter/S’inscrire
Votre courriel a été envoyé.
135 W 136th St Immeuble de 3 600 pi² • Spécialité • À vendre 2 697 860 $ CAD • New York, NY 10030



Certaines informations ont été traduites automatiquement.
Faits saillants de l'investissement
- Centrally located in Harlem near major cultural landmarks
- Surrounded by active residential and retail corridors
- Walking distance to Harlem Hospital and Schomburg Center
- Excellent transit access via 2/3 subway lines at 135th Street
- Potential for mixed-use, multifamily, or community facility conversion
- Positioned in a high-foot-traffic, revitalizing neighborhood
Résumé de l'annonce
This elegant three-family townhouse in Central Harlem offers over a 4% cap rate—a rare opportunity to own a fully leased, 100% free-market property with strong income and long-term growth potential. It can also be reimagined as a beautiful single-family home.
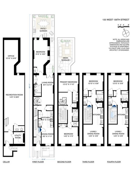
With 3,552 sq ft of interior space (including an 888 sq ft finished basement with a half bath), the residence features soaring ceilings, expansive rooms, and individual central AC controls for each unit.
Set on a charming tree-lined street, the property combines old-world Harlem character with modern convenience. Just moments from the 2/3 and A/B/C trains and multiple bus lines (M1, M2, M7, M102), it offers effortless access to Midtown and beyond. Located in a rapidly appreciating pocket of Harlem, it represents both stability and upside for investors and end-users alike.
Behind its stately 1910 façade and welcoming front stoop, the triplex offers three spacious bedrooms, two bathrooms, and an open kitchen that flows seamlessly to a sun-filled dining area and private garden—perfect for entertaining or quiet reflection. A full-size washer/dryer and abundant storage complete the home.
The newly finished basement includes a half bath and is currently configured as an art studio, easily adaptable to a home office or recreation room. Updated mechanicals and a separate utility room add function and peace of mind.
Beyond the property itself, this neighborhood tells a story of culture, community, and momentum. Around the corner are Harlem’s celebrated landmarks—the Schomburg Center, local theaters, and galleries—alongside everyday conveniences and Harlem’s vibrant culinary scene. Enjoy destinations like Red Rooster, Renaissance Harlem, Ponty Bistro, Maison Harlem, and Lido, each reflecting the spirit of Harlem’s creative renaissance.
This townhouse embodies the best of historic charm, income potential, and modern Harlem living—a smart, soulful investment.
With 3,552 sq ft of interior space (including an 888 sq ft finished basement with a half bath), the residence features soaring ceilings, expansive rooms, and individual central AC controls for each unit.
Set on a charming tree-lined street, the property combines old-world Harlem character with modern convenience. Just moments from the 2/3 and A/B/C trains and multiple bus lines (M1, M2, M7, M102), it offers effortless access to Midtown and beyond. Located in a rapidly appreciating pocket of Harlem, it represents both stability and upside for investors and end-users alike.
Behind its stately 1910 façade and welcoming front stoop, the triplex offers three spacious bedrooms, two bathrooms, and an open kitchen that flows seamlessly to a sun-filled dining area and private garden—perfect for entertaining or quiet reflection. A full-size washer/dryer and abundant storage complete the home.
The newly finished basement includes a half bath and is currently configured as an art studio, easily adaptable to a home office or recreation room. Updated mechanicals and a separate utility room add function and peace of mind.
Beyond the property itself, this neighborhood tells a story of culture, community, and momentum. Around the corner are Harlem’s celebrated landmarks—the Schomburg Center, local theaters, and galleries—alongside everyday conveniences and Harlem’s vibrant culinary scene. Enjoy destinations like Red Rooster, Renaissance Harlem, Ponty Bistro, Maison Harlem, and Lido, each reflecting the spirit of Harlem’s creative renaissance.
This townhouse embodies the best of historic charm, income potential, and modern Harlem living—a smart, soulful investment.
Faits sur la propriété
| Prix | 2 697 860 $ CAD | Taille du lot | 0,04 AC |
| Prix par pi² | 749,41 $ CAD | Taille du bâtiment | 3 600 pi² |
| Type de vente | Investissement | Nombre d’étages | 4 |
| Type de propriété | Spécialité | Année de construction | 1910 |
| Sous-type de propriété | Revenu résidentiel | ||
| Zonage | R7-2 - Quartier résidentiel d'immeubles d'appartements à densité moyenne avec des exigences de stationnement réduites | ||
| Prix | 2 697 860 $ CAD |
| Prix par pi² | 749,41 $ CAD |
| Type de vente | Investissement |
| Type de propriété | Spécialité |
| Sous-type de propriété | Revenu résidentiel |
| Taille du lot | 0,04 AC |
| Taille du bâtiment | 3 600 pi² |
| Nombre d’étages | 4 |
| Année de construction | 1910 |
| Zonage | R7-2 - Quartier résidentiel d'immeubles d'appartements à densité moyenne avec des exigences de stationnement réduites |
1 1
Walk Score®
Un paradis pour un marcheur (96)
Transit Score®
Un paradis pour conducteur (100)
Bike Score®
Très cyclable (70)
Impôts fonciers
| Numéro de lot | 1921-0117 | Évaluation des bâtiments | 35 620 $ CAD |
| Évaluation du terrain | 12 658 $ CAD | Évaluation totale | 48 278 $ CAD |
Impôts fonciers
Numéro de lot
1921-0117
Évaluation du terrain
12 658 $ CAD
Évaluation des bâtiments
35 620 $ CAD
Évaluation totale
48 278 $ CAD
1 de 13
Vidéos
Visite extérieure 3D Matterport
Visite 3D Matterport
Photos
Vue depuis la rue
Rue
Carte
1 de 1
Présenté par
135 W 136th St
Vous êtes déjà membre? Connectez-vous
Hmm, il semble y avoir eu une erreur lors de l’envoi de votre message. Veuillez réessayer.
Merci! Votre message a été envoyé.
Votre message a été envoyé !
Activez votre compte LoopNet dès maintenant pour suivre les propriétés, recevoir des alertes en temps réel, gagner du temps sur vos demandes futures et bien plus encore.
