Votre courriel a été envoyé.
Pad site w/ drive thru 1.35 acres 1350 Hartford Ave 2 000–5 890 pi² d'espace disponible • Commerce de détail • Johnston, RI 02919



Certaines informations ont été traduites automatiquement.
Faits saillants
- Utilisations potentielles multiples, y compris le restaurant, le lave-auto, la station-service ou la banque.
- Grande visibilité avec façade importante sur la Rt 6 Johnston, RI, à côté du Market Basket
- Nouveau CVC
- Ancien McDonald's qui est actuellement conçu pour être utilisé dans les restaurants avec drive thru.
- Beaucoup de places de stationnement avec espace pour 50 à 60 voitures.
- Service de 1 200 ampères
Disponibilité de l’espace (1)
Afficher les taux de location en
- Espace
- Taille
- Plafond
- Terme
- Taux de location
- Type de loyer
| Espace | Taille | Plafond | Terme | Taux de location | Type de loyer | |
| 1er étage, ste 100 | 2 000 à 5 890 pi² | 9’ - 12’ | Négociable | 34,21 $ CAD/pi²/an 2,85 $ CAD/pi²/mois 201 512 $ CAD/an 16 793 $ CAD/mois | Loyer hypernet |
1er étage, ste 100
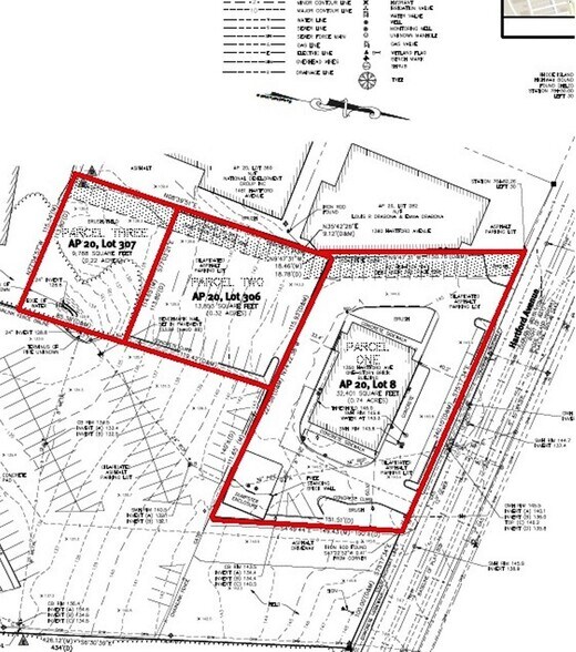
Subdividable, minimum 2,000 square feet. Former McDonald's restaurant, set up as a drive-thru concept. 60-70 parking. New HVAC systems installed. Tenant allowances are negotiable. Equipment was removed. Located on Route 6 in the center of the Town of Johnston next to the Market Basket. Minutes to 295 and the new Amazon Distribution Center. 1,200 amp service, sewer, water, gas connected.
- Le taux de location ne comprend pas les services publics, les services de bâtiment ou les dépenses immobilières.
- Entièrement construit comme Espace pour un restaurant ou un café
- L’espace est une parcelle de terrain de cette propriété
- Climatisation centrale
- Cuisine
- Chambres de congélation
- Plafond suspendu
- Plafonds finis: 9’ - 12’
- Service au volant
- Drive-Thru
- Banque, nettoyeur à sec, automobile, occasion médicale
- Nouvelle toiture installée
Types de loyers
Le type et le montant du loyer que le locataire (preneur) est tenu de payer au propriétaire (bailleur) sur la durée du bail sont négociés avant la signature du bail par les deux parties. Le type de loyer varie selon les services fournis. Par exemple, le prix d’un loyer hypernet est habituellement inférieur à celui d’un bail à service complet puisque le locataire est tenu d’assumer des dépenses additionnelles par rapport au loyer de base. Contactez le courtier inscripteur pour tout connaître sur les frais connexes et additionnels associés à chaque type de loyer.
1. Service complet: Un taux de location qui comprend des services standards liés à l’immeuble fournis par le propriétaire dans le cadre d’une location annuelle de base.
2. Loyer supernet: Le locataire paie seulement deux des frais de l’immeuble. Le propriétaire et le locataire déterminent ces frais spécifiques avant la signature du bail.
3. Loyer hypernet: Un bail en vertu duquel le locataire est responsable de tous les frais liés à sa part proportionnelle d’occupation de l’immeuble.
4. Brut modifié: Le loyer brut modifié désigne un type général de taux de location dans lequel le locataire est habituellement responsable de sa part proportionnelle d’un ou de plusieurs frais. C’est le propriétaire qui paie les frais restants. Considérez les structures tarifaires courantes suivantes applicables aux loyers bruts modifiés: 4. Plus les services: Un type de bail brut modifié suivant lequel le locataire est responsable de sa part proportionnelle des coûts des services publics, en plus du loyer. 4. Plus le nettoyage: Un type de bail brut modifié suivant lequel le locataire est responsable de sa part proportionnelle des coûts de nettoyage, en plus du loyer. 4. Plus l'électricité: Un type de bail brut modifié suivant lequel le locataire est responsable de sa part proportionnelle des coûts d’électricité, en plus du loyer. 4. Plus l’électricité et le nettoyage: Un type de bail brut modifié dans lequel le locataire est responsable de sa part proportionnelle des coûts d’électricité et de nettoyage, en plus du loyer. 4. Plus les services publics et le nettoyage: Un type de bail brut modifié dans lequel le locataire est responsable de sa part proportionnelle des coûts des services publics et de nettoyage, en plus du loyer. 4. Bail industriel brut: Un type de bail brut modifié dans lequel le locataire paie un ou plusieurs des frais, en plus du loyer. Le propriétaire et le locataire déterminent ces frais spécifiques avant la signature du bail.
5. L’électricité est à la charge du locataire: Le propriétaire paie pour tous les services et le locataire est responsable de sa propre utilisation de l’éclairage et des prises électriques dans l’espace qu’il occupe.
6. Négociable ou sur demande: Cette option est utilisée lorsque le contact de location ne précise pas le type de loyer ou de service.
7. À déterminer: À déterminer ; utilisé pour les immeubles dont le type de services ou de loyer n’est pas connu, souvent quand l’immeuble n’est pas encore construit.
Faits sur la propriété
| Superficie totale disponible | 5 890 pi² | Superficie commerciale brute | 6 890 pi² |
| Min. divisible | 2 000 pi² | Année de construction | 1984 |
| Type de propriété | Commerce de détail | Ratio de stationnement | 11,88/1 000 pi² |
| Sous-type de propriété | Restauration rapide |
| Superficie totale disponible | 5 890 pi² |
| Min. divisible | 2 000 pi² |
| Type de propriété | Commerce de détail |
| Sous-type de propriété | Restauration rapide |
| Superficie commerciale brute | 6 890 pi² |
| Année de construction | 1984 |
| Ratio de stationnement | 11,88/1 000 pi² |
À propos de la propriété
Ancien site de restaurant McDonalds de 6 868 pieds entièrement construit avec accès à l'entraînement. Idéal pour les restaurants, les cafés, les fast-food, les commerces de détail, les banques, les coopératives de crédit, les soins médicaux, les centres automobiles ou les bureaux. L'emplacement offre une grande visibilité à côté du nouveau supermarché Market Basket sur l'avenue Hartford RT 6 à Johnston, RI. Le site compte plus de 60 places de stationnement sur place. La propriété se trouve à l'est de la 295, près de l'intersection RT5 et RT6 Johnston. Procès-verbal du centre de distribution Amazon. Il est possible d'assembler ce site avec des propriétés adjacentes pour en faire un terrain de plusieurs acres à grande échelle. 1,35 acre minimum à 2 acres. Site zoné B2. Installation d'un nouveau système de CVC. Maçonnerie.
- Ligne d'autobus
- Enseigne sur pylône
- Restaurant
- Service au volant
Principaux détaillants à proximité
Présenté par
Pad site w/ drive thru 1.35 acres | 1350 Hartford Ave
Hmm, il semble y avoir eu une erreur lors de l’envoi de votre message. Veuillez réessayer.
Merci! Votre message a été envoyé.




