Votre courriel a été envoyé.
Certaines informations ont été traduites automatiquement.
Faits saillants
- Un bureau professionnel de 8 000 pc est maintenant disponible
- Réception, salle de repos, salle d'informatique et de serveur avec propre A/C, beaucoup d'espace de rangement
- Façade de fascia en pierre élégante et construction SIP efficace sur le plan thermique
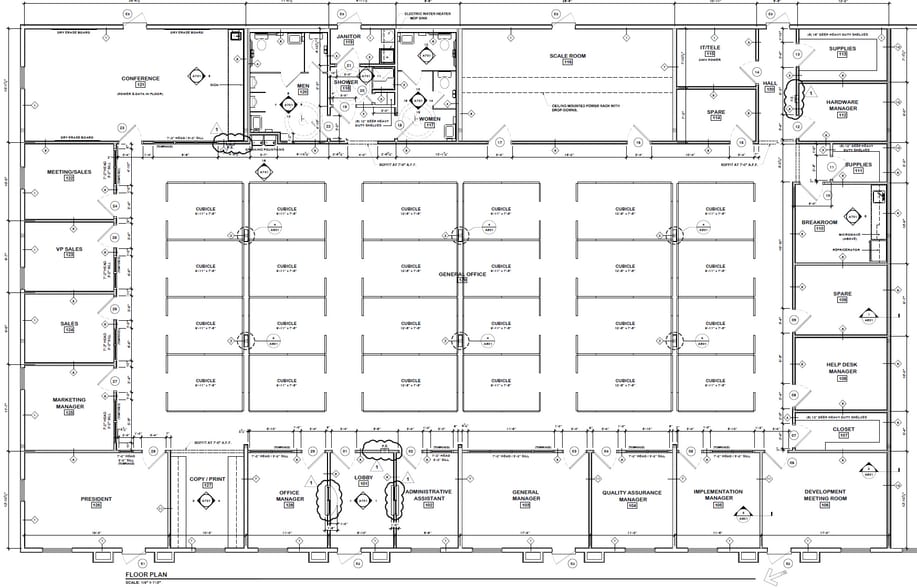
- 16 bureaux privés, 2 salles de conférence et laboratoire.
- Zone centrale avec 24 cubes absorbants sonores socialement distancés
- 22 minutes de l'aéroport international de Tampa
Tous les espaces disponibles(1)
Afficher les taux de location en
- Espace
- Taille
- Terme
- Taux de location
- Utilisation de l’espace
- État
- Disponible
13528 Prestige Place purchased by Lode Giver LLC in December 2009 with only suite 107 (2,000 SF) built out. Interior build-out of remaining suites 101 through 106 was done through 2010/2011. The 8,000 SF suite 102 was built out for a software company Applied Data Corporation who were tenants from 2010 through 2020, followed by BobCAD, another software company, from 2020 through 2026: The building is constructed of Steel insulated Panels (SIP Construction), with each wall and roof steel panel sandwiching 6" of expanded polystyrene, making the building super-well insulated, essentially a large cool-box, while providing appropriate hurricane-strength wind resistance . A Fleeceback 60 mil EPDM with foam adhesive roof covering was installed in 2012 and carries a 20-year manufacturer's warranty. The keystone 8,000 SF office is available from May 1st, 2026, the main entrance being through the door marked Suite 102.
- Locataire responsable de l’utilisation des lumières et des prises électriques
- Disposition du plan d’étage ouverte en général
- 19 bureaux privés
- 24 postes de travail
- Air central et chauffage
- Laboratoire
- Salle d’impression/Photocopie
- Complètement tapissé
- Espace en coin
- Lumière naturelle
- Éclairage d’urgence
- Conforme DDA
- Détecteur de fumée
- Private offices & conf rooms around the periphery
- 24 double pre-existing cubes in total
- Entièrement construit comme Bureau de services professionnels
- Convient pour 45 à 64 personnes
- 3 salles de conférence
- Espace en excellent état
- Aire de réception
- Connectivité Wi-Fi
- Salle de bains privée
- Vidéosurveillance
- Entreposage sécurisé
- CVCA disponible après les heures de travail
- Cote de rendement énergétique - A
- Plan ouvert
- Accessible aux fauteuils roulants
- Double cubicles in 3 blocks of 3, ideal per dept.
- Excellent network and power connectivity
| Espace | Taille | Terme | Taux de location | Utilisation de l’espace | État | Disponible |
| 1er étage, ste 102 | 8 000 pi² | 3-5 ans | 26,23 $ CAD/pi²/an 2,19 $ CAD/pi²/mois 209 866 $ CAD/an 17 489 $ CAD/mois | Bureau | construction complète | 2026-05-01 |
1er étage, ste 102
| Taille |
| 8 000 pi² |
| Terme |
| 3-5 ans |
| Taux de location |
| 26,23 $ CAD/pi²/an 2,19 $ CAD/pi²/mois 209 866 $ CAD/an 17 489 $ CAD/mois |
| Utilisation de l’espace |
| Bureau |
| État |
| construction complète |
| Disponible |
| 2026-05-01 |
1er étage, ste 102
| Taille | 8 000 pi² |
| Terme | 3-5 ans |
| Taux de location | 26,23 $ CAD/pi²/an |
| Utilisation de l’espace | Bureau |
| État | construction complète |
| Disponible | 2026-05-01 |
13528 Prestige Place purchased by Lode Giver LLC in December 2009 with only suite 107 (2,000 SF) built out. Interior build-out of remaining suites 101 through 106 was done through 2010/2011. The 8,000 SF suite 102 was built out for a software company Applied Data Corporation who were tenants from 2010 through 2020, followed by BobCAD, another software company, from 2020 through 2026: The building is constructed of Steel insulated Panels (SIP Construction), with each wall and roof steel panel sandwiching 6" of expanded polystyrene, making the building super-well insulated, essentially a large cool-box, while providing appropriate hurricane-strength wind resistance . A Fleeceback 60 mil EPDM with foam adhesive roof covering was installed in 2012 and carries a 20-year manufacturer's warranty. The keystone 8,000 SF office is available from May 1st, 2026, the main entrance being through the door marked Suite 102.
- Locataire responsable de l’utilisation des lumières et des prises électriques
- Entièrement construit comme Bureau de services professionnels
- Disposition du plan d’étage ouverte en général
- Convient pour 45 à 64 personnes
- 19 bureaux privés
- 3 salles de conférence
- 24 postes de travail
- Espace en excellent état
- Air central et chauffage
- Aire de réception
- Laboratoire
- Connectivité Wi-Fi
- Salle d’impression/Photocopie
- Salle de bains privée
- Complètement tapissé
- Vidéosurveillance
- Espace en coin
- Entreposage sécurisé
- Lumière naturelle
- CVCA disponible après les heures de travail
- Éclairage d’urgence
- Cote de rendement énergétique - A
- Conforme DDA
- Plan ouvert
- Détecteur de fumée
- Accessible aux fauteuils roulants
- Private offices & conf rooms around the periphery
- Double cubicles in 3 blocks of 3, ideal per dept.
- 24 double pre-existing cubes in total
- Excellent network and power connectivity
Aperçu de la propriété
Le 13528 Prestige Place se trouve dans le parc d'affaires de Monroe, au coin de Prestige Place et de la route de service du côté est du magasin Lowes Home Improvement, à l'angle nord-est de l'intersection principale de l'avenue Hillsborough/chemin Tampa et du chemin Racetrack dans le comté de West Hillsborough, près de la ligne du comté de Pinellas. La propriété est facilement accessible à partir de l'avenue Hillsborough/chemin Tampa et du chemin Racetrack. Il se trouve à la limite est d'Oldsmar et bénéficie donc de la disponibilité à proximité des commerces de détail, des restaurants et des installations hôtelières d'Oldsmar.
- Climatisation
Faits sur la propriété
Sélectionner des locataires
- Étage
- Nom du locataire
- Secteur
- 1ᵉʳ
- BobCAD
- Services professionnels, scientifiques et techniques
- 1ᵉʳ
- Med X Solutions
- Services professionnels, scientifiques et techniques
- 1ᵉʳ
- Mortellaro & Sinadinos
- Services professionnels, scientifiques et techniques
- 1ᵉʳ
- TTT Transport Logistics
- Services
Présenté par
8,000 SF Office/Flex | 13528 Prestige Pl
Hmm, il semble y avoir eu une erreur lors de l’envoi de votre message. Veuillez réessayer.
Merci! Votre message a été envoyé.






