Votre courriel a été envoyé.
136 High St Transfert de propriété disponible de 2 710 pi² • Harrow HA3 7AL



Certaines informations ont été traduites automatiquement.
FAITS SAILLANTS DE LA MISSION
- The premises are located within 0.3 miles of Harrow & Wealdstone Station.
- Harrow & Wealdstone is undergoing significant regeneration and is home to a number of local and national retailers.
- Provides links into London Euston in 13 minutes.
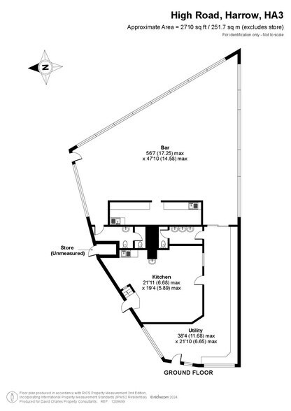
DISPONIBILITÉ DE L’ESPACE (1)
Afficher les taux de location en
- ESPACE
- TAILLE
- TERME
- TAUX DE LOCATION
- TYPE
| Espace | Taille | Terme | Taux de location | Type de loyer | ||
| RDC | 2 710 pi² | Nov. 2039 | Sur demande Sur demande Sur demande Sur demande | À déterminer |
RDC
The premises comprise a fully fitted restaurant/shisha lounge situated on the corner of High Road & Spencer Road. The premises have undergone a substantial fit-out by the current owners and present a rare opportunity to acquire an existing shisha/restaurant.
- Classe d’utilisation : E
- Espace d'affectation disponible du locataire actuel
- Entièrement construit comme Espace pour un restaurant ou un café
- Espace embout très recherché
- Entreposage sécurisé
- Installations WC abandonnées
- Undergone substantial fit out
- Open plan
- Ample display frontage
Types de services
Le type de service et le montant du loyer que le locataire (preneur) est tenu de payer au propriétaire (bailleur) sur la durée du bail sont négociés avant la signature du bail par les deux parties. Le type de service varie selon les services fournis. Contactez le courtier inscripteur pour tout connaître sur les frais connexes et additionnels associés à chaque type de service.
1. Réparations et assurances complètes: Toutes les obligations de réparer et d’assurer la propriété (ou de sa part de la propriété) à l’interne comme à l’externe.
2. Réparations internes seulement: Le locataire est responsable des réparations internes seulement. Le propriétaire est responsable des réparations structurelles et externes.
3. Réparations et assurances internes: Le locataire est responsable des réparations internes et des assurances pour les parties internes de la propriété seulement. Le propriétaire est responsable des réparations structurelles et externes.
4. Négociable ou à déterminer: Cette option est utilisée lorsque le contact de location ne fournit pas le type de service.
SÉLECTIONNER DES LOCATAIRES À 136 HIGH ST, HARROW, LND HA3 7AL
- LOCATAIRE
- DESCRIPTION
- EMPLACEMENTS GB
- PORTÉE
- Brothers Cafe
- Détaillant
- 1
- Local
| LOCATAIRE | DESCRIPTION | EMPLACEMENTS GB | PORTÉE |
| Brothers Cafe | Détaillant | 1 | Local |
FAITS SUR LA PROPRIÉTÉ
| Superficie totale disponible | 2 710 pi² | Superficie commerciale brute | 2 710 pi² |
| Type de propriété | Commerce de détail | Année de construction | 1932 |
| Sous-type de propriété | Commerce pied immeuble |
| Superficie totale disponible | 2 710 pi² |
| Type de propriété | Commerce de détail |
| Sous-type de propriété | Commerce pied immeuble |
| Superficie commerciale brute | 2 710 pi² |
| Année de construction | 1932 |
À PROPOS DE LA PROPRIÉTÉ
Les locaux se trouvent à seulement 0,3 mile de la station Harrow & Wealdstone, qui offre des liaisons vers London Euston en 13 minutes. Harrow & Wealdstone connaît une régénération importante et abrite plusieurs détaillants locaux et nationaux.
- Système de sécurité
- Espace d'entreposage
Présenté par
136 High St
Hmm, il semble y avoir eu une erreur lors de l’envoi de votre message. Veuillez réessayer.
Merci! Votre message a été envoyé.



