Se Connecter/S’inscrire
Votre courriel a été envoyé.
Former Starlight Studios - 13701 Old Gentilly 13701 Old Gentilly Road 43 000 pi² Industriel Immeuble New Orleans, LA 70129 5 384 730 $ CAD (125,23 $ CAD/pi²)



Certaines informations ont été traduites automatiquement.
Faits saillants de l'investissement
- Flexible investment opportunity with redevelopment or expansion potential
- LARGE open clear span with high ceilings and easy access for warehousing, manufacturing, distribution
- Strategic location near NASA Michoud with strong industrial demand
Résumé de l'annonce
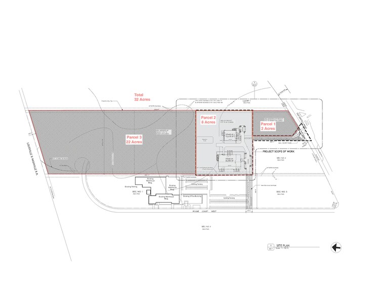
Located near NASA’s Michoud Assembly Facility, Starlight Studios offers a rare opportunity to acquire a large industrial site with both warehouse space and significant land area in New Orleans East.
The property spans approximately 32 acres and includes two clear-span warehouse buildings totaling more than 43,000 SF, along with a generator on-site.
The site can be purchased in its entirety or divided:
Parcel 1 - Front 2 wooded acres
Parcel 2 - 8 acres including both buildings (climate controlled, fully sprinklered, clear-span warehouses)
Building 1:
30,994 SF
45 Foot Clear Span to Rigging Gantry
140 tons of HVAC
3 x 1200Amp 208 volt 3 phase banks of Camlock company switches
Two 12 x 14 ft roll up overhead doors
Building 2:
12,615 SF
35 Foot Clear Span to Rigging Gantry
60 tons of HVAC
2 x 1200Amp 208 volt 3 phase banks of Camlock company switches
One 12 x 14 ft roll up overhead doors
Parcel 3 - 22 acres of vacant cleared land
Cleared of trees, ready for development
Positioned with direct access to Old Gentilly Road and in close proximity to the Michoud complex, the property provides excellent potential for industrial users, manufacturers, and developers seeking functional space and expansion opportunities within one of New Orleans’ most established industrial corridors. With the upcoming Louisiana International Terminal anticipated to open in the coming years, the site also offers strong future appeal for logistics, storage and warehousing operations.
The property spans approximately 32 acres and includes two clear-span warehouse buildings totaling more than 43,000 SF, along with a generator on-site.
The site can be purchased in its entirety or divided:
Parcel 1 - Front 2 wooded acres
Parcel 2 - 8 acres including both buildings (climate controlled, fully sprinklered, clear-span warehouses)
Building 1:
30,994 SF
45 Foot Clear Span to Rigging Gantry
140 tons of HVAC
3 x 1200Amp 208 volt 3 phase banks of Camlock company switches
Two 12 x 14 ft roll up overhead doors
Building 2:
12,615 SF
35 Foot Clear Span to Rigging Gantry
60 tons of HVAC
2 x 1200Amp 208 volt 3 phase banks of Camlock company switches
One 12 x 14 ft roll up overhead doors
Parcel 3 - 22 acres of vacant cleared land
Cleared of trees, ready for development
Positioned with direct access to Old Gentilly Road and in close proximity to the Michoud complex, the property provides excellent potential for industrial users, manufacturers, and developers seeking functional space and expansion opportunities within one of New Orleans’ most established industrial corridors. With the upcoming Louisiana International Terminal anticipated to open in the coming years, the site also offers strong future appeal for logistics, storage and warehousing operations.
Salle de données Cliquez ici pour accéder à
Faits sur la propriété
Commodités
- Accès 24 heures
- Accès contrôlé
- Chargement frontal
- Climatisation
Services publics
- Éclairage
- Eau
- Égout
- Chauffage
1 1
1 de 15
Vidéos
Visite extérieure 3D Matterport
Visite 3D Matterport
Photos
Vue depuis la rue
Rue
Carte
1 de 1
Présenté par
Former Starlight Studios - 13701 Old Gentilly | 13701 Old Gentilly Road
Vous êtes déjà membre? Connectez-vous
Hmm, il semble y avoir eu une erreur lors de l’envoi de votre message. Veuillez réessayer.
Merci! Votre message a été envoyé.
