Se Connecter/S’inscrire
Votre courriel a été envoyé.
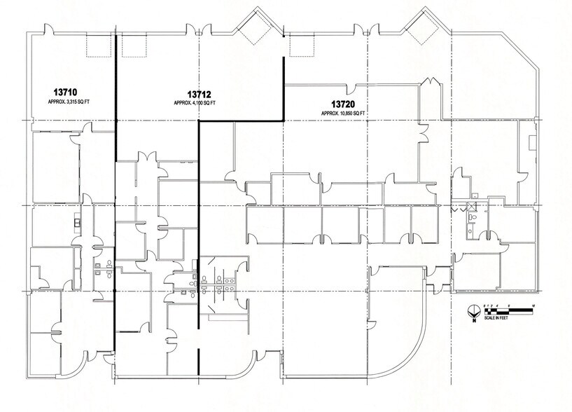
13712-13720 Shoreline Ct E
Earth City, MO 63045
Industriel Propriété À louer
·
18 265 pi²


Certaines informations ont été traduites automatiquement.
Faits saillants
- Free-standing 18,265-square-foot building with flexible demising options.
- Fully air-conditioned warehouse with wet sprinkler system.
- Convenient access to I-70, I-270, and Lambert-St. Louis International Airport.
- Four loading docks and two drive-in doors for efficient logistics.
- ESD anti-static flooring and former clean-room space for specialized operations.
Caractéristiques
Hauteur libre
16’
Baies d’entrée
2
Places de stationnement standard
56
Aperçu de la propriété
The property is located in Earth City, Missouri, within the St. Louis metropolitan area. It is positioned near major transportation routes, including Interstate 70 and Interstate 270, and is in close proximity to Lambert-St. Louis International Airport. The building includes multiple loading docks, drive-in doors, and a wet sprinkler system. Electrical service is 3-phase with 800 amps. The site offers warehouse and office space with air conditioning and features an anti-static floor and former clean-room area.
Faits sur l’installation Entrepôt
Taille du bâtiment
18 265 pi²
Taille du lot
1,30 AC
Année de construction
1989
Construction
Maçonnerie
Zonage
I
1 de 4
Vidéos
Visite extérieure 3D Matterport
Visite 3D Matterport
Photos
Vue depuis la rue
Rue
Carte
