Se Connecter/S’inscrire
Votre courriel a été envoyé.
Certaines informations ont été traduites automatiquement.
Tous les espaces disponibles(1)
Afficher les taux de location en
- Espace
- Taille
- Terme
- Taux de location
- Utilisation de l’espace
- Aménagement
- Disponible
Contact broker for more information.
- Espace de sous-location disponible auprès du locataire actuel
- Entièrement construit comme Bureau standard
- 1 salle de conférence
- Espace en excellent état
- Taux de location inscrit plus part proportionnelle des coûts de la consommation électrique
- 5 bureaux privés
- 18 postes de travail
| Espace | Taille | Terme | Taux de location | Utilisation de l’espace | Aménagement | Disponible |
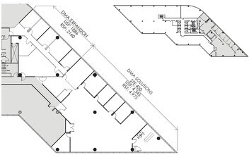
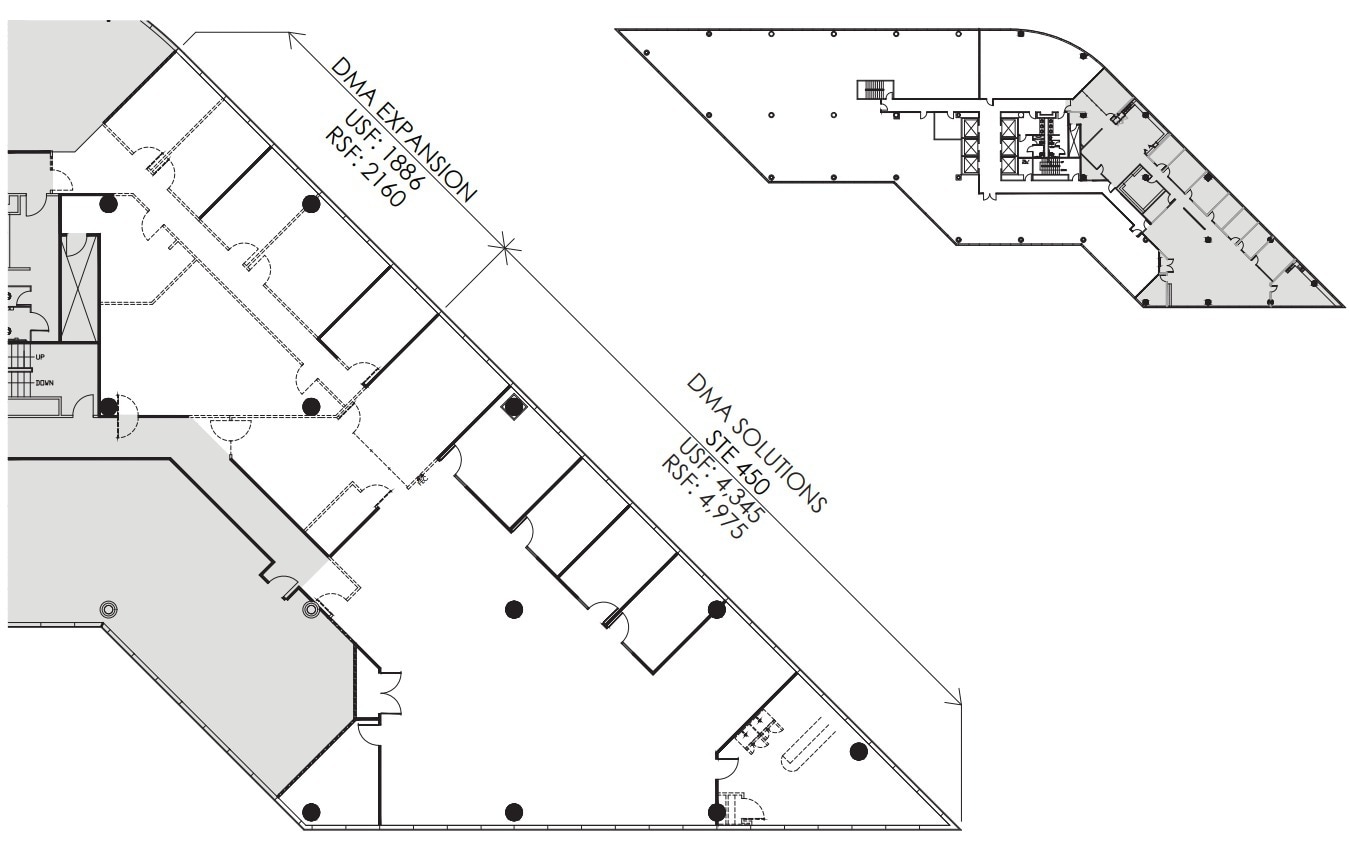
| 4e étage | 4 975 pi² | Juil. 2031 | 32,25 $ CAD/pi²/an 2,69 $ CAD/pi²/mois 160 460 $ CAD/an 13 372 $ CAD/mois | Bureau | construction complète | 30 jours |
4e étage
| Taille |
| 4 975 pi² |
| Terme |
| Juil. 2031 |
| Taux de location |
| 32,25 $ CAD/pi²/an 2,69 $ CAD/pi²/mois 160 460 $ CAD/an 13 372 $ CAD/mois |
| Utilisation de l’espace |
| Bureau |
| Aménagement |
| construction complète |
| Disponible |
| 30 jours |
1 de 1
Vidéos
Visite extérieure 3D Matterport
Visite 3D Matterport
Photos
Vue depuis la rue
Rue
Carte
4e étage
| Taille | 4 975 pi² |
| Terme | Juil. 2031 |
| Taux de location | 32,25 $ CAD/pi²/an |
| Utilisation de l’espace | Bureau |
| Aménagement | construction complète |
| Disponible | 30 jours |
Contact broker for more information.
- Espace de sous-location disponible auprès du locataire actuel
- Taux de location inscrit plus part proportionnelle des coûts de la consommation électrique
- Entièrement construit comme Bureau standard
- 5 bureaux privés
- 1 salle de conférence
- 18 postes de travail
- Espace en excellent état
Caractéristiques et commodités
- Accès 24 heures
- Banque
- Accès contrôlé
- Installations de conférences
- Service d'alimentation
- Gestionnaire d'immeuble sur place
- Restaurant
- Affichage
- Chauffage central
- Affichage sur monument
- Climatisation
Faits sur la propriété
Type de bâtiment
Bureau
Année de construction/rénovation
1985/2017
Tarification de LoopNet
4 Étoiles
Hauteur du bâtiment
11 étages
Taille du bâtiment
255 519 pi²
Classe d’immeuble
A
Superficie de plancher typique
22 607 pi²
Hauteur du plafond non finie
13’
Stationnement
899 places de stationnement couvert
Stationnement Réservé à 130 $ CAD/mois
Très praticable à pied
80/100
Très facile d'accès en voiture
80/100
Transports en commun relativement accessibles
40/100
Plutôt praticable en vélo
40/100
1 de 5
Vidéos
Visite extérieure 3D Matterport
Visite 3D Matterport
Photos
Vue depuis la rue
Rue
Carte
Présenté par
Stone Tower | 13760 Noel Rd
Vous êtes déjà membre? Connectez-vous
Hmm, il semble y avoir eu une erreur lors de l’envoi de votre message. Veuillez réessayer.
Merci! Votre message a été envoyé.






