Votre courriel a été envoyé.
13567 FM 3067 13785 FM 3067 1 120–2 240 pi² d'espace disponible • Bureau • La Feria, TX 78559



Certaines informations ont été traduites automatiquement.
Faits saillants
- Immeuble autoportant
- Stationnement supplémentaire disponible
- Grand bureau de construction
Tous les espaces disponibles(2)
Afficher les taux de location en
- Espace
- Taille
- Terme
- Taux de location
- Utilisation de l’espace
- Aménagement
- Disponible
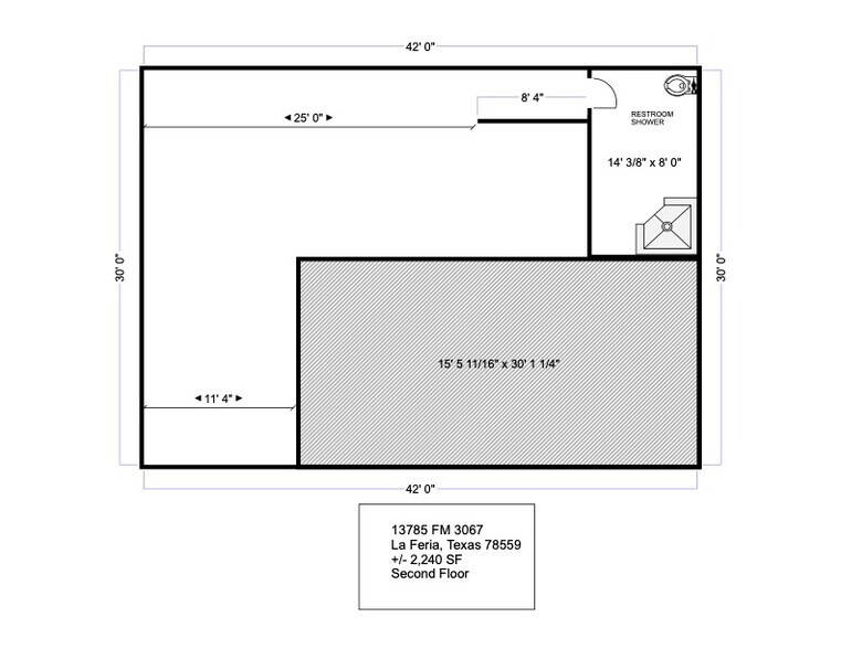
Two-story Freestanding Office that was formerly a real estate office and recently a construction office. Floor plan available. Contains reception area, two offices on first floor, mini-kitchen, conference room upstairs with built ins and restroom with a shower. Advertisement Feed: Two-story Freestanding Office that was formerly a real estate office and recently a construction office. Floor plan available. Contains reception area, two offices on first floor,
- Taux de location inscrit plus part proportionnelle des coûts de la consommation électrique
- Convient pour 3 à 9 personnes
- 1 salle de conférence
- Plafonds finis: 9’ - 10’
- Aire de réception
- Douches
- Entièrement construit comme Bureau standard
- 2 bureaux privés
- 1 poste de travail
- Climatisation centrale
- Cuisine
- Immeuble sur pied, grand bureau de construction
Two-story Freestanding Office that was formerly a real estate office and recently a construction office. Floor plan available. Contains reception area, two offices on first floor, mini-kitchen, conference room upstairs with built ins and restroom with a shower. Advertisement Feed: Two-story Freestanding Office that was formerly a real estate office and recently a construction office. Floor plan available. Contains reception area, two offices on first floor,
- Taux de location inscrit plus part proportionnelle des coûts de la consommation électrique
- Convient pour 3 à 9 personnes
- 1 salle de conférence
- Plafonds finis: 9’ - 10’
- Aire de réception
- Freestanding Building, Great Construction Office
- Entièrement construit comme Bureau standard
- 2 bureaux privés
- 1 poste de travail
- Climatisation centrale
- Douches
| Espace | Taille | Terme | Taux de location | Utilisation de l’espace | Aménagement | Disponible |
| 1er étage | 1 120 pi² | 2-5 ans | 21,74 $ CAD/pi²/an 1,81 $ CAD/pi²/mois 24 349 $ CAD/an 2 029 $ CAD/mois | Bureau | construction complète | Maintenant |
| 2e étage | 1 120 pi² | 2-5 ans | 21,74 $ CAD/pi²/an 1,81 $ CAD/pi²/mois 24 349 $ CAD/an 2 029 $ CAD/mois | Bureau | construction complète | Maintenant |
1er étage
| Taille |
| 1 120 pi² |
| Terme |
| 2-5 ans |
| Taux de location |
| 21,74 $ CAD/pi²/an 1,81 $ CAD/pi²/mois 24 349 $ CAD/an 2 029 $ CAD/mois |
| Utilisation de l’espace |
| Bureau |
| Aménagement |
| construction complète |
| Disponible |
| Maintenant |
2e étage
| Taille |
| 1 120 pi² |
| Terme |
| 2-5 ans |
| Taux de location |
| 21,74 $ CAD/pi²/an 1,81 $ CAD/pi²/mois 24 349 $ CAD/an 2 029 $ CAD/mois |
| Utilisation de l’espace |
| Bureau |
| Aménagement |
| construction complète |
| Disponible |
| Maintenant |
1er étage
| Taille | 1 120 pi² |
| Terme | 2-5 ans |
| Taux de location | 21,74 $ CAD/pi²/an |
| Utilisation de l’espace | Bureau |
| Aménagement | construction complète |
| Disponible | Maintenant |
Two-story Freestanding Office that was formerly a real estate office and recently a construction office. Floor plan available. Contains reception area, two offices on first floor, mini-kitchen, conference room upstairs with built ins and restroom with a shower. Advertisement Feed: Two-story Freestanding Office that was formerly a real estate office and recently a construction office. Floor plan available. Contains reception area, two offices on first floor,
- Taux de location inscrit plus part proportionnelle des coûts de la consommation électrique
- Entièrement construit comme Bureau standard
- Convient pour 3 à 9 personnes
- 2 bureaux privés
- 1 salle de conférence
- 1 poste de travail
- Plafonds finis: 9’ - 10’
- Climatisation centrale
- Aire de réception
- Cuisine
- Douches
- Immeuble sur pied, grand bureau de construction
2e étage
| Taille | 1 120 pi² |
| Terme | 2-5 ans |
| Taux de location | 21,74 $ CAD/pi²/an |
| Utilisation de l’espace | Bureau |
| Aménagement | construction complète |
| Disponible | Maintenant |
Two-story Freestanding Office that was formerly a real estate office and recently a construction office. Floor plan available. Contains reception area, two offices on first floor, mini-kitchen, conference room upstairs with built ins and restroom with a shower. Advertisement Feed: Two-story Freestanding Office that was formerly a real estate office and recently a construction office. Floor plan available. Contains reception area, two offices on first floor,
- Taux de location inscrit plus part proportionnelle des coûts de la consommation électrique
- Entièrement construit comme Bureau standard
- Convient pour 3 à 9 personnes
- 2 bureaux privés
- 1 salle de conférence
- 1 poste de travail
- Plafonds finis: 9’ - 10’
- Climatisation centrale
- Aire de réception
- Douches
- Freestanding Building, Great Construction Office
Aperçu de la propriété
Wo-story Autonome Autonome Office qui était autrefois un bureau immobilier et récemment un bureau de construction. Plan d'étage disponible. Comprend une aire de réception, deux bureaux au premier étage, une mini-cuisine, une salle de conférence à l'étage avec intégré et une salle de bain avec douche. Fil de publicité : Bureau autonome de deux étages qui était autrefois un bureau immobilier et récemment un bureau de construction. Plan d'étage disponible. Comprend une aire de réception, deux bureaux au premier étage,
- Cuisine
- Réception
- Douches
Faits sur la propriété
Présenté par
13567 FM 3067 | 13785 FM 3067
Hmm, il semble y avoir eu une erreur lors de l’envoi de votre message. Veuillez réessayer.
Merci! Votre message a été envoyé.
