Votre courriel a été envoyé.
Truck Maintenance / Parking Facility 13800 George Bush Ct 40 800 pi² d'espace disponible • Industriel • Huntley, IL 60142



Certaines informations ont été traduites automatiquement.
Faits saillants
- Direct Access to Interchange Via Route 47
- Outside Storage Permitted
- Over 1,000 Feet of I-90 Frontage
- Located Within Foreign Trade Zone 176
- Zoning Approved for Heavy Uses
- Low Kane County Taxes
Caractéristiques
Tous les espaces disponibles(1)
Afficher les taux de location en
- Espace
- Taille
- Terme
- Taux de location
- Utilisation de l’espace
- Aménagement
- Disponible
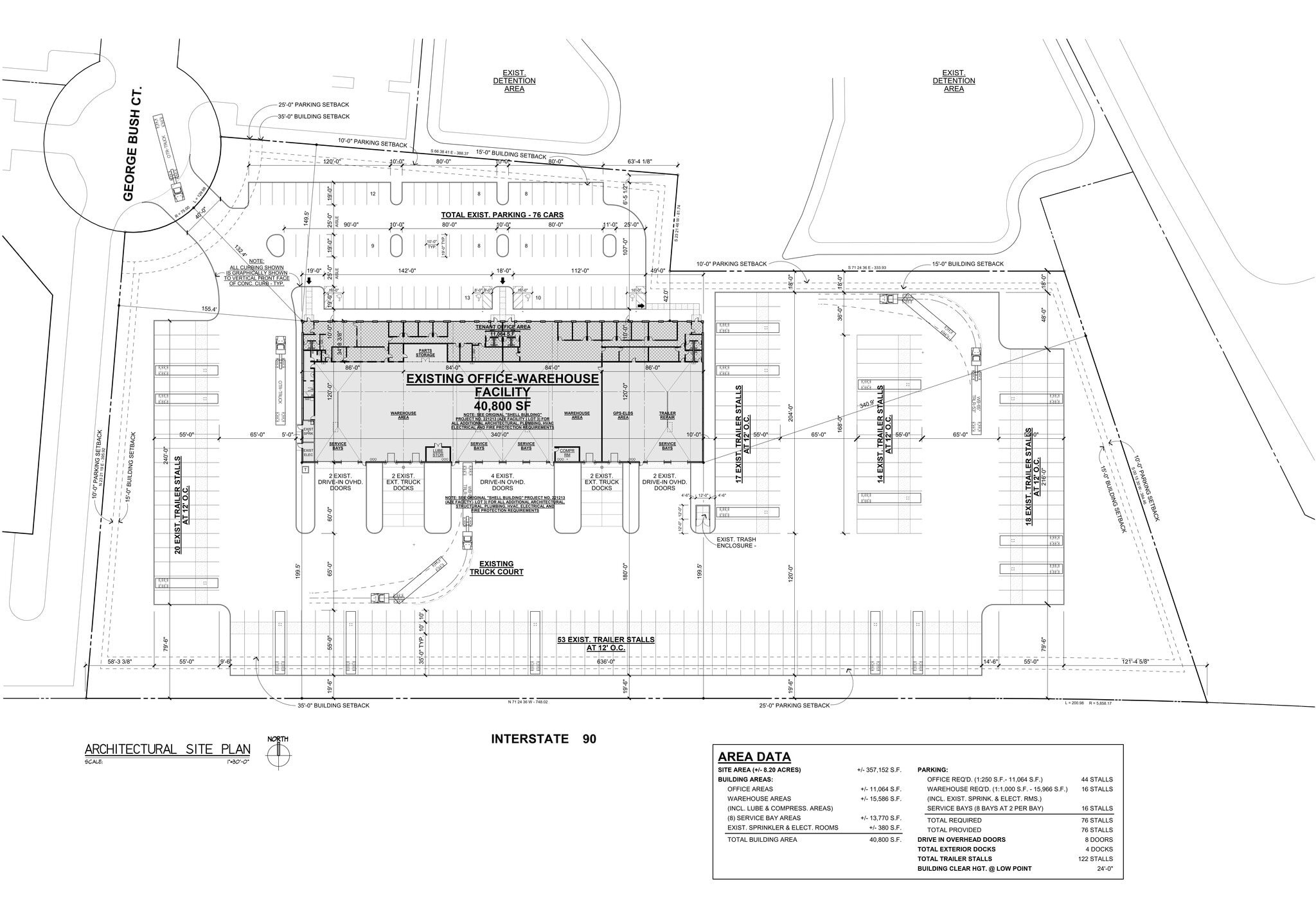
This newly constructed 40,800 SF industrial facility, completed in 2023, offers a highly functional layout with 11,064 SF of office space and a 24’ clear height, making it well suited for modern industrial and service users. The building features four exterior loading docks and eight drive-in doors (12’ x 14’), supporting efficient loading and operational flexibility. The 8.2-acre site provides ample vehicle accommodation with 122 trailer stalls and 76 car parking spaces, while 1,600 amps of power supports a wide range of user requirements. The property offers immediate occupancy, positioning it as a turnkey solution for users seeking a newer facility with strong infrastructure and site capacity.
- Comprend 11 064 pi² d’espace de bureau dédié
- Espace en excellent état
- 8 accès plain-pied
- 4 quais de chargement
| Espace | Taille | Terme | Taux de location | Utilisation de l’espace | Aménagement | Disponible |
| 1er étage | 40 800 pi² | Négociable | Sur demande Sur demande Sur demande Sur demande | Industriel | construction complète | Maintenant |
1er étage
| Taille |
| 40 800 pi² |
| Terme |
| Négociable |
| Taux de location |
| Sur demande Sur demande Sur demande Sur demande |
| Utilisation de l’espace |
| Industriel |
| Aménagement |
| construction complète |
| Disponible |
| Maintenant |
1er étage
| Taille | 40 800 pi² |
| Terme | Négociable |
| Taux de location | Sur demande |
| Utilisation de l’espace | Industriel |
| Aménagement | construction complète |
| Disponible | Maintenant |
This newly constructed 40,800 SF industrial facility, completed in 2023, offers a highly functional layout with 11,064 SF of office space and a 24’ clear height, making it well suited for modern industrial and service users. The building features four exterior loading docks and eight drive-in doors (12’ x 14’), supporting efficient loading and operational flexibility. The 8.2-acre site provides ample vehicle accommodation with 122 trailer stalls and 76 car parking spaces, while 1,600 amps of power supports a wide range of user requirements. The property offers immediate occupancy, positioning it as a turnkey solution for users seeking a newer facility with strong infrastructure and site capacity.
- Comprend 11 064 pi² d’espace de bureau dédié
- 8 accès plain-pied
- Espace en excellent état
- 4 quais de chargement
Faits sur l’installation terminal routier
Présenté par
Truck Maintenance / Parking Facility | 13800 George Bush Ct
Hmm, il semble y avoir eu une erreur lors de l’envoi de votre message. Veuillez réessayer.
Merci! Votre message a été envoyé.



