Votre courriel a été envoyé.
Certaines informations ont été traduites automatiquement.
FAITS SAILLANTS DE L'INVESTISSEMENT
- Triple Catch Fed by Trench Drains
- New Construction
- Delivers 4th Quarter 2025
- Immediate Access to I-55 & I-355
RÉSUMÉ DE L'ANNONCE
New Construction - 2025
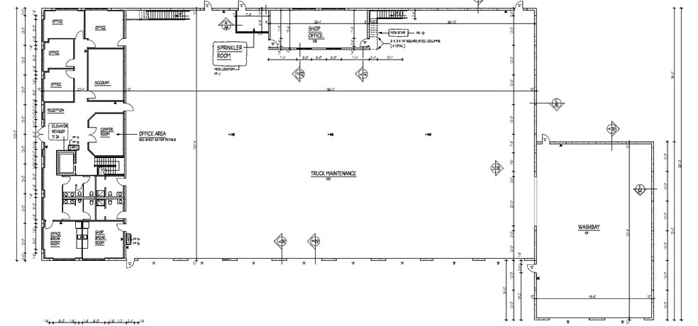
27,500 SF
± 19,950 SF Warehouse
± 7,550 SF Office (First Floor + Second Floor combined)
10 Bays Total: 8 DIDs (14 x 16’)and 2 DIDs (16 x 16’)
Power: 1,200 Amps, 480V, 3-Phase
Lighting: LED
Plumbing: Triple Catch Fed by Trench Drains
Zoning: M-2
Sale Price: Subject to Offer (Delivers 4th Quarter This Year)
TAXES ET DÉPENSES D’EXPLOITATION (RÉEL - 2025) Cliquez ici pour accéder à |
ANNUEL (CAD) | ANNUEL PAR pi² (CAD) |
|---|---|---|
| Taxes |
-
|
-
|
| Dépenses d’exploitation |
-
|
-
|
| Total des dépenses |
$99,999
|
$9.99
|
TAXES ET DÉPENSES D’EXPLOITATION (RÉEL - 2025) Cliquez ici pour accéder à
| Taxes (CAD) | |
|---|---|
| Annuel | - |
| Annuel par pi² | - |
| Dépenses d’exploitation (CAD) | |
|---|---|
| Annuel | - |
| Annuel par pi² | - |
| Total des dépenses (CAD) | |
|---|---|
| Annuel | $99,999 |
| Annuel par pi² | $9.99 |
FAITS SUR LA PROPRIÉTÉ Sous contrat
COMMODITÉS
- Drains de sol
DISPONIBILITÉ DES ESPACES
- ESPACE
- TAILLE
- UTILISATION DE L’ESPACE
- ÉTAT
- DISPONIBLE
Installation d'entretien à louer Nouvelle construction - 2025 27 500 pi² ± 19 950 pi² d'entrepôt ± 7 550 pi² de bureaux (rez-de-chaussée + deuxième étage combinés) 10 baies au total : 8 portes sectionnelles (14 x 16’) et 2 portes sectionnelles (16 x 16’) Places pour camions : 50+
| Espace | Taille | Utilisation de l’espace | État | Disponible |
| 1er étage | 27 500 pi² | Industriel | construction partielle | Maintenant |
1er étage
| Taille |
| 27 500 pi² |
| Utilisation de l’espace |
| Industriel |
| État |
| construction partielle |
| Disponible |
| Maintenant |
1er étage
| Taille | 27 500 pi² |
| Utilisation de l’espace | Industriel |
| État | construction partielle |
| Disponible | Maintenant |
Installation d'entretien à louer Nouvelle construction - 2025 27 500 pi² ± 19 950 pi² d'entrepôt ± 7 550 pi² de bureaux (rez-de-chaussée + deuxième étage combinés) 10 baies au total : 8 portes sectionnelles (14 x 16’) et 2 portes sectionnelles (16 x 16’) Places pour camions : 50+
Impôts fonciers
| Numéro de lot | 12-02-23-401-002 | Évaluation des bâtiments | 0 $ CAD (2024) |
| Évaluation du terrain | 353 786 $ CAD (2024) | Évaluation totale | 353 786 $ CAD (2024) |
Impôts fonciers
Présenté par
1385 N Joliet Rd
Hmm, il semble y avoir eu une erreur lors de l’envoi de votre message. Veuillez réessayer.
Merci! Votre message a été envoyé.



