Se Connecter/S’inscrire
Votre courriel a été envoyé.
13th Ave SE
Sauk Rapids, MN 56379
Terrain À vendre
·
5,91 AC


Certaines informations ont été traduites automatiquement.
Faits saillants de l'investissement
- parc industriel
Résumé de l'annonce
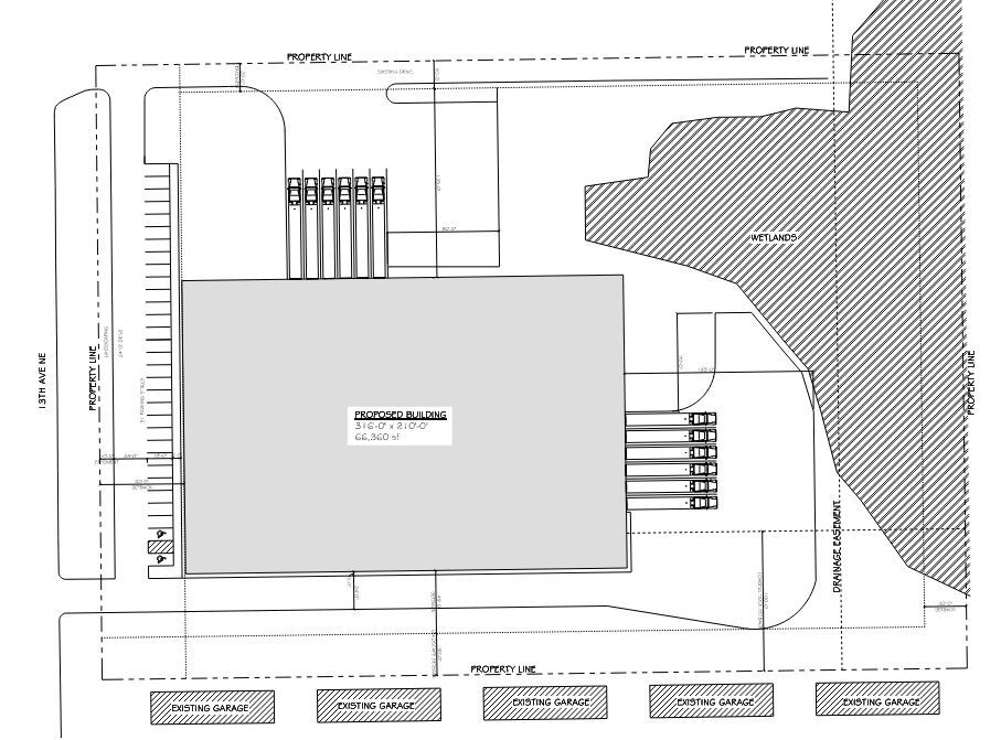
À côté de Pinnacle Climate Technologies, ce terrain offre la possibilité au futur propriétaire d'être à côté d'une entreprise de haut niveau. Le propriétaire actuel conçoit/construira également le site pour le louer au futur locataire.
Faits sur la propriété
1 Lot disponible
Lot
| Taille du lot | 5,91 AC |
| Taille du lot | 5,91 AC |
À côté de Pinnacle Climate Technologies, ce terrain offre la possibilité au futur propriétaire d'être à côté d'une entreprise de haut niveau. Le propriétaire actuel conçoit/construira également le site pour le louer au futur locataire.
Description
Terrain situé à côté de Pinnacle Climate Technologies dans le parc industriel Sauk Rapids en fait un emplacement de choix pour votre entreprise.
Impôts fonciers
| Numéros de lot | Évaluation des bâtiments | 0 $ CAD | |
| Évaluation du terrain | 668 081 $ CAD | Évaluation totale | 668 081 $ CAD |
Impôts fonciers
Numéros de lot
Évaluation du terrain
668 081 $ CAD
Évaluation des bâtiments
0 $ CAD
Évaluation totale
668 081 $ CAD
1 de 3
Vidéos
Visite extérieure 3D Matterport
Visite 3D Matterport
Photos
Vue depuis la rue
Rue
Carte
