Votre courriel a été envoyé.
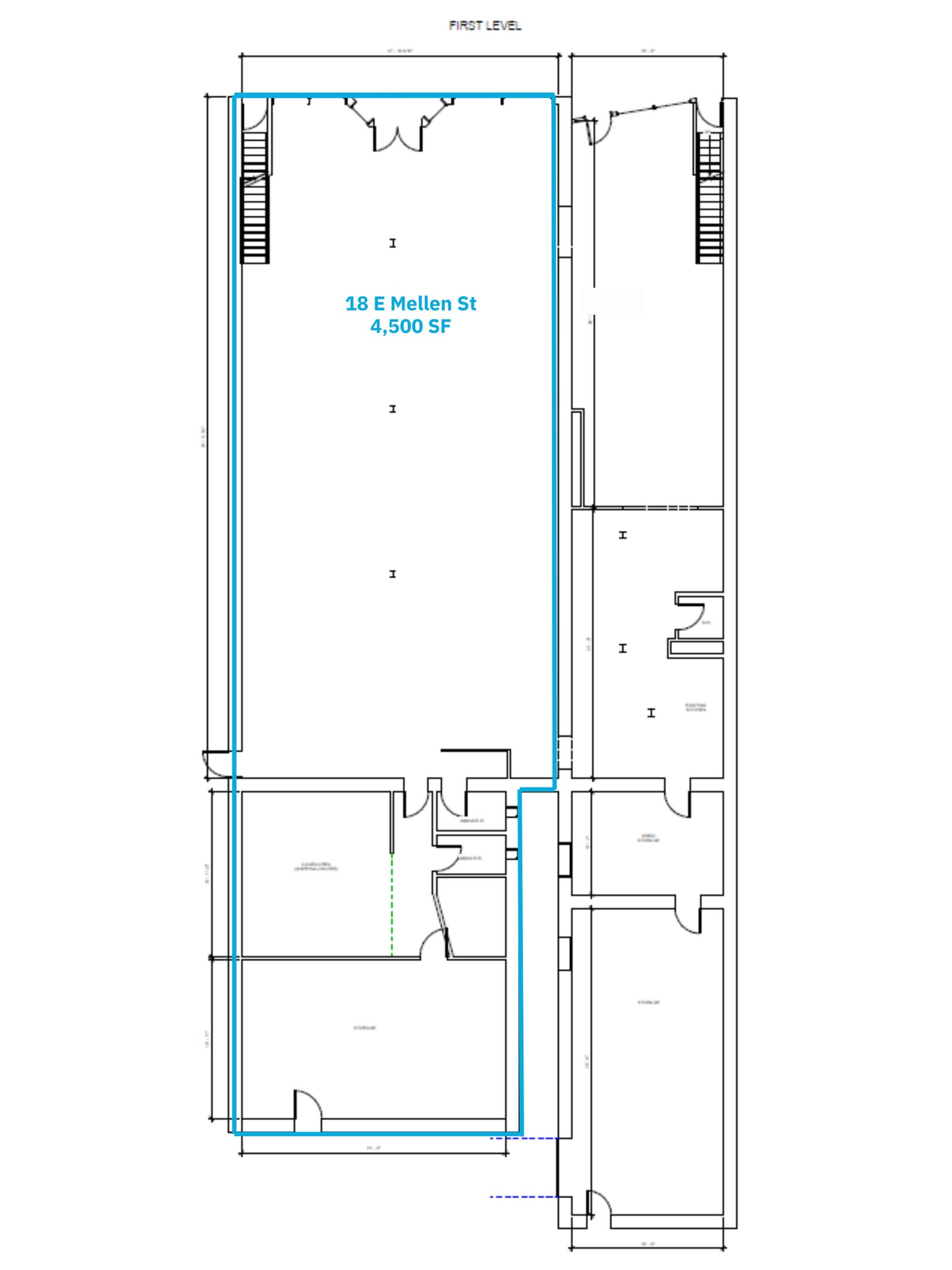
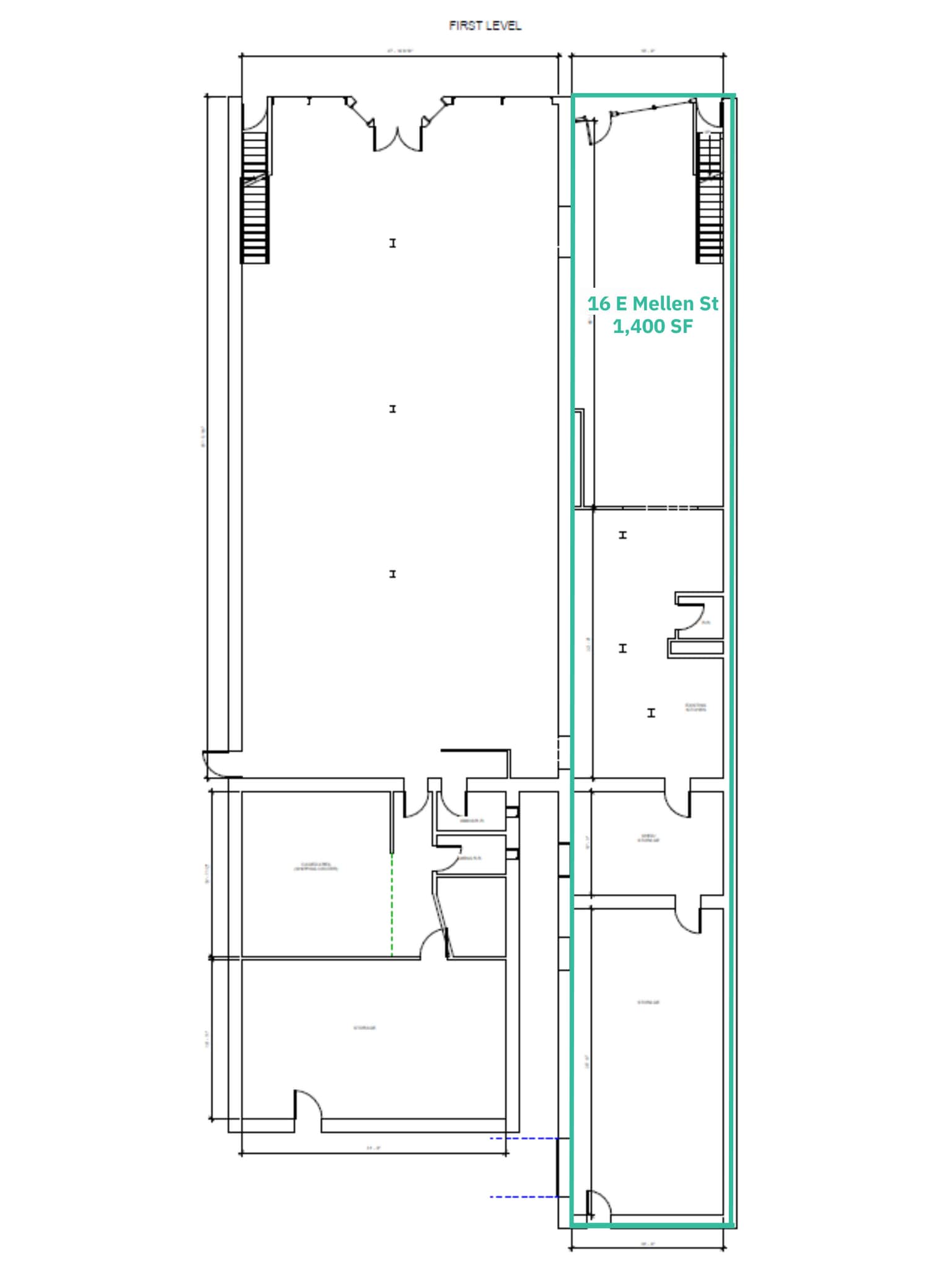
14-18 E Mellen St
Hampton, VA 23663
Commerce de détail Propriété À louer
·
5 900 pi²

Certaines informations ont été traduites automatiquement.
Faits saillants
- First-floor retail space available
- Undergoing full renovation with modern upgrades while preserving historic character
- Strong mix of neighboring businesses including restaurants, boutiques, breweries, and cultural attractions
- Flexible layout: can be divided into two suites, each with front and rear access
- Ample street parking available, plus a free municipal parking lot located in the rear
Faits sur la propriété
| Superficie totale disponible | 5 900 pi² | Superficie commerciale brute | 12 144 pi² |
| Type de propriété | Commerce de détail | Année de construction | 1906 |
| Sous-type de propriété | Immeuble de commerce | Ratio de stationnement | 0,37/1 000 pi² |
| Superficie totale disponible | 5 900 pi² |
| Type de propriété | Commerce de détail |
| Sous-type de propriété | Immeuble de commerce |
| Superficie commerciale brute | 12 144 pi² |
| Année de construction | 1906 |
| Ratio de stationnement | 0,37/1 000 pi² |
À propos de la propriété
Be part of the exciting revitalization of Historic Phoebus. Under new ownership and currently undergoing a complete renovation, this property offers prime retail space on the first floor in the heart of Phoebus’ thriving commercial district. Perfectly situated on Mellen Street, this high-visibility location places your business at the center of a dynamic and growing community known for its unique shops, restaurants, and local culture. The space is versatile and ideal for a variety of retail concepts eager to join Phoebus’ ongoing transformation. Don’t miss this rare opportunity to establish your business in one of Hampton’s most sought-after neighborhoods and secure a cornerstone presence in this vibrant district.
- Ligne d'autobus
- Affichage
