Votre courriel a été envoyé.
Hanna Building 1400-1422 Euclid Ave 394–165 253 pi² d'espace disponible • Bureau • Cleveland, OH 44115



Certaines informations ont été traduites automatiquement.
Faits saillants
- Garages de stationnement attenants.
- Restaurants sur place (Starbucks, Green Rooster, Cibreo Italian Kitchen, Republic Food & Drink, The Fruit Stand, Sushi En, Parnell's Pub, etc.)
- Suites prêtes à être emménagées ou personnalisez-les avec notre équipe de conception pour répondre à vos spécifications.
- Sécurité 24 heures sur 24, 7 jours sur 7.
- Accès à plusieurs salles de conférence allant de 20 à 250 personnes.
- Propriétaire solide avec gestion immobilière sur place.
Tous les espaces disponibles(41)
Afficher les taux de location en
- Espace
- Taille
- Terme
- Taux de location
- Utilisation de l’espace
- Aménagement
- Disponible
- Le taux comprend les services publics, les services de bâtiment et les dépenses immobilières.
The Hanna Building has an array of flexible opportunities with endless amenities at every corner. The office lease rate ranges from $16.00-$18.00/SF FSG.
- Le taux comprend les services publics, les services de bâtiment et les dépenses immobilières.
- Disposition du plan d’étage ouverte en général
- Peut être associé à un ou plusieurs espaces supplémentaires pour obtenir jusqu’à 48 000 pi² d’espace adjacent.
- Entièrement construit comme Bureau de services professionnels
- Espace en excellent état
Backstage at Playhouse Square is a co-working space available at $750 per office, $450 per cubicle. Flexible lease term. All furniture included. Attached parking garage. All utilities included. Use of conference rooms included. Wi-Fi included. Café with free coffee. Access to printer/copier. Easiest highway access. Starbucks, Cibreo Italian Kitchen, Green Rooster, and more.
- Le taux comprend les services publics, les services de bâtiment et les dépenses immobilières.
- Disposition du plan d’étage ouverte en général
- Partiellement construit comme Bureau standard
- Peut être associé à un ou plusieurs espaces supplémentaires pour obtenir jusqu’à 48 000 pi² d’espace adjacent.
The Hanna Building has an array of flexible opportunities with endless amenities at every corner. The office lease rate ranges from $16.00-$18.00/SF FSG.
- Le taux comprend les services publics, les services de bâtiment et les dépenses immobilières.
- Disposition du plan d’étage ouverte en général
- Partiellement construit comme Bureau standard
The Hanna Building has an array of flexible opportunities with endless amenities at every corner. The office lease rate ranges from $16.00-$18.00/SF FSG.
- Le taux comprend les services publics, les services de bâtiment et les dépenses immobilières.
- Disposition du plan d’étage ouverte en général
- Partiellement construit comme Bureau standard
The Hanna Building has an array of flexible opportunities with endless amenities at every corner. The office lease rate ranges from $16.00-$18.00/SF FSG.
- Le taux comprend les services publics, les services de bâtiment et les dépenses immobilières.
- Disposition du plan d’étage ouverte en général
- Partiellement construit comme Bureau standard
- Peut être associé à un ou plusieurs espaces supplémentaires pour obtenir jusqu’à 4 806 pi² d’espace adjacent.
The Hanna Building has an array of flexible opportunities with endless amenities at every corner. The office lease rate ranges from $16.00-$18.00/SF FSG.
- Le taux comprend les services publics, les services de bâtiment et les dépenses immobilières.
- Disposition du plan d’étage ouverte en général
- Partiellement construit comme Bureau standard
- Peut être associé à un ou plusieurs espaces supplémentaires pour obtenir jusqu’à 4 806 pi² d’espace adjacent.
The Hanna Building has an array of flexible opportunities with endless amenities at every corner. The office lease rate ranges from $16.00-$18.00/SF FSG.
- Le taux comprend les services publics, les services de bâtiment et les dépenses immobilières.
- Disposition du plan d’étage ouverte en général
- Partiellement construit comme Bureau standard
- Peut être associé à un ou plusieurs espaces supplémentaires pour obtenir jusqu’à 4 806 pi² d’espace adjacent.
The Hanna Building has an array of flexible opportunities with endless amenities at every corner. The office lease rate ranges from $16.00-$18.00/SF FSG.
- Le taux comprend les services publics, les services de bâtiment et les dépenses immobilières.
- Disposition du plan d’étage ouverte en général
- Partiellement construit comme Bureau standard
- Le taux comprend les services publics, les services de bâtiment et les dépenses immobilières.
The Hanna Building has an array of flexible opportunities with endless amenities at every corner. The office lease rate ranges from $16.00-$18.00/SF FSG.
- Le taux comprend les services publics, les services de bâtiment et les dépenses immobilières.
- Disposition du plan d’étage ouverte en général
- Partiellement construit comme Bureau standard
The Hanna Building has an array of flexible opportunities with endless amenities at every corner. The office lease rate ranges from $16.00-$18.00/SF FSG.
- Le taux comprend les services publics, les services de bâtiment et les dépenses immobilières.
- Disposition du plan d’étage ouverte en général
- Partiellement construit comme Bureau standard
- Peut être associé à un ou plusieurs espaces supplémentaires pour obtenir jusqu’à 2 720 pi² d’espace adjacent.
The Hanna Building has an array of flexible opportunities with endless amenities at every corner. The office lease rate ranges from $16.00-$18.00/SF FSG.
- Le taux comprend les services publics, les services de bâtiment et les dépenses immobilières.
- Disposition du plan d’étage ouverte en général
- Partiellement construit comme Bureau standard
- Peut être associé à un ou plusieurs espaces supplémentaires pour obtenir jusqu’à 2 720 pi² d’espace adjacent.
The Hanna Building has an array of flexible opportunities with endless amenities at every corner. The office lease rate ranges from $16.00-$18.00/SF FSG.
- Le taux comprend les services publics, les services de bâtiment et les dépenses immobilières.
- Disposition du plan d’étage ouverte en général
- Partiellement construit comme Bureau standard
- Peut être associé à un ou plusieurs espaces supplémentaires pour obtenir jusqu’à 2 720 pi² d’espace adjacent.
- Le taux comprend les services publics, les services de bâtiment et les dépenses immobilières.
The Hanna Building has an array of flexible opportunities with endless amenities at every corner. The office lease rate ranges from $16.00-$18.00/SF FSG.
- Le taux comprend les services publics, les services de bâtiment et les dépenses immobilières.
- Disposition du plan d’étage ouverte en général
- Partiellement construit comme Bureau standard
The Hanna Building has an array of flexible opportunities with endless amenities at every corner. The office lease rate ranges from $16.00-$18.00/SF FSG.
- Le taux comprend les services publics, les services de bâtiment et les dépenses immobilières.
- Disposition du plan d’étage ouverte en général
- Partiellement construit comme Bureau standard
- Peut être associé à un ou plusieurs espaces supplémentaires pour obtenir jusqu’à 3 090 pi² d’espace adjacent.
The Hanna Building has an array of flexible opportunities with endless amenities at every corner. The office lease rate ranges from $16.00-$18.00/SF FSG.
- Le taux comprend les services publics, les services de bâtiment et les dépenses immobilières.
- Disposition du plan d’étage ouverte en général
- Partiellement construit comme Bureau standard
The Hanna Building has an array of flexible opportunities with endless amenities at every corner. The office lease rate ranges from $16.00-$18.00/SF FSG.
- Le taux comprend les services publics, les services de bâtiment et les dépenses immobilières.
- Disposition du plan d’étage ouverte en général
- Partiellement construit comme Bureau standard
- Peut être associé à un ou plusieurs espaces supplémentaires pour obtenir jusqu’à 3 090 pi² d’espace adjacent.
The Hanna Building has an array of flexible opportunities with endless amenities at every corner. The office lease rate ranges from $16.00-$18.00/SF FSG.
- Le taux comprend les services publics, les services de bâtiment et les dépenses immobilières.
- Disposition du plan d’étage ouverte en général
- Partiellement construit comme Bureau standard
- Le taux comprend les services publics, les services de bâtiment et les dépenses immobilières.
The Hanna Building has an array of flexible opportunities with endless amenities at every corner. The office lease rate ranges from $16.00-$18.00/SF FSG.
- Le taux comprend les services publics, les services de bâtiment et les dépenses immobilières.
- Disposition du plan d’étage ouverte en général
- Partiellement construit comme Bureau standard
The Hanna Building has an array of flexible opportunities with endless amenities at every corner. The office lease rate ranges from $16.00-$18.00/SF FSG.
- Le taux comprend les services publics, les services de bâtiment et les dépenses immobilières.
- Disposition du plan d’étage ouverte en général
- Partiellement construit comme Bureau standard
The Hanna Building has an array of flexible opportunities with endless amenities at every corner. The office lease rate ranges from $16.00-$18.00/SF FSG.
- Le taux comprend les services publics, les services de bâtiment et les dépenses immobilières.
- Disposition du plan d’étage ouverte en général
- Partiellement construit comme Bureau standard
- Peut être associé à un ou plusieurs espaces supplémentaires pour obtenir jusqu’à 2 170 pi² d’espace adjacent.
The Hanna Building has an array of flexible opportunities with endless amenities at every corner. The office lease rate ranges from $16.00-$18.00/SF FSG.
- Le taux comprend les services publics, les services de bâtiment et les dépenses immobilières.
- Disposition du plan d’étage ouverte en général
- Partiellement construit comme Bureau standard
- Peut être associé à un ou plusieurs espaces supplémentaires pour obtenir jusqu’à 2 170 pi² d’espace adjacent.
The Hanna Building has an array of flexible opportunities with endless amenities at every corner. The office lease rate ranges from $16.00-$18.00/SF FSG.
- Le taux comprend les services publics, les services de bâtiment et les dépenses immobilières.
- Disposition du plan d’étage ouverte en général
- Partiellement construit comme Bureau standard
- Peut être associé à un ou plusieurs espaces supplémentaires pour obtenir jusqu’à 2 170 pi² d’espace adjacent.
The Hanna Building has an array of flexible opportunities with endless amenities at every corner. The office lease rate ranges from $16.00-$18.00/SF FSG.
- Le taux comprend les services publics, les services de bâtiment et les dépenses immobilières.
- Disposition du plan d’étage ouverte en général
- Partiellement construit comme Bureau standard
- Peut être associé à un ou plusieurs espaces supplémentaires pour obtenir jusqu’à 11 285 pi² d’espace adjacent.
The Hanna Building has an array of flexible opportunities with endless amenities at every corner. The office lease rate ranges from $16.00-$18.00/SF FSG.
- Le taux comprend les services publics, les services de bâtiment et les dépenses immobilières.
- Disposition du plan d’étage ouverte en général
- Partiellement construit comme Bureau standard
- Peut être associé à un ou plusieurs espaces supplémentaires pour obtenir jusqu’à 11 285 pi² d’espace adjacent.
The Hanna Building has an array of flexible opportunities with endless amenities at every corner. The office lease rate ranges from $16.00-$18.00/SF FSG.
- Le taux comprend les services publics, les services de bâtiment et les dépenses immobilières.
The Hanna Building has an array of flexible opportunities with endless amenities at every corner. The office lease rate ranges from $16.00-$18.00/SF FSG.
- Le taux comprend les services publics, les services de bâtiment et les dépenses immobilières.
- Disposition du plan d’étage ouverte en général
- Partiellement construit comme Bureau standard
The Hanna Building has an array of flexible opportunities with endless amenities at every corner. The office lease rate ranges from $16.00-$18.00/SF FSG.
- Le taux comprend les services publics, les services de bâtiment et les dépenses immobilières.
- Disposition du plan d’étage ouverte en général
- Partiellement construit comme Bureau standard
The Hanna Building has an array of flexible opportunities with endless amenities at every corner. The office lease rate ranges from $16.00-$18.00/SF FSG.
- Le taux comprend les services publics, les services de bâtiment et les dépenses immobilières.
- Disposition du plan d’étage ouverte en général
- Partiellement construit comme Bureau standard
The Hanna Building has an array of flexible opportunities with endless amenities at every corner. The office lease rate ranges from $16.00-$18.00/SF FSG.
- Le taux comprend les services publics, les services de bâtiment et les dépenses immobilières.
- Disposition du plan d’étage ouverte en général
- Partiellement construit comme Bureau standard
- Peut être associé à un ou plusieurs espaces supplémentaires pour obtenir jusqu’à 15 972 pi² d’espace adjacent.
The Hanna Building has an array of flexible opportunities with endless amenities at every corner. The office lease rate ranges from $16.00-$18.00/SF FSG.
- Le taux comprend les services publics, les services de bâtiment et les dépenses immobilières.
- Peut être associé à un ou plusieurs espaces supplémentaires pour obtenir jusqu’à 15 972 pi² d’espace adjacent.
The Hanna Building has an array of flexible opportunities with endless amenities at every corner. The office lease rate ranges from $16.00-$18.00/SF FSG.
- Le taux comprend les services publics, les services de bâtiment et les dépenses immobilières.
- Disposition du plan d’étage ouverte en général
- Partiellement construit comme Bureau standard
- Peut être associé à un ou plusieurs espaces supplémentaires pour obtenir jusqu’à 15 972 pi² d’espace adjacent.
The Hanna Building has an array of flexible opportunities with endless amenities at every corner. The office lease rate ranges from $16.00-$18.00/SF FSG.
- Le taux comprend les services publics, les services de bâtiment et les dépenses immobilières.
- Disposition du plan d’étage ouverte en général
- Partiellement construit comme Bureau standard
The Hanna Building has an array of flexible opportunities with endless amenities at every corner. The office lease rate ranges from $16.00-$18.00/SF FSG.
- Le taux comprend les services publics, les services de bâtiment et les dépenses immobilières.
- Disposition du plan d’étage ouverte en général
- Partiellement construit comme Bureau standard
The Hanna Building has an array of flexible opportunities with endless amenities at every corner. The office lease rate ranges from $16.00-$18.00/SF FSG.
- Le taux comprend les services publics, les services de bâtiment et les dépenses immobilières.
- Disposition du plan d’étage ouverte en général
- Partiellement construit comme Bureau standard
- Peut être associé à un ou plusieurs espaces supplémentaires pour obtenir jusqu’à 8 507 pi² d’espace adjacent.
The Hanna Building has an array of flexible opportunities with endless amenities at every corner. The office lease rate ranges from $16.00-$18.00/SF FSG.
- Le taux comprend les services publics, les services de bâtiment et les dépenses immobilières.
- Disposition du plan d’étage ouverte en général
- Partiellement construit comme Bureau standard
- Peut être associé à un ou plusieurs espaces supplémentaires pour obtenir jusqu’à 8 507 pi² d’espace adjacent.
The Hanna Building has an array of flexible opportunities with endless amenities at every corner. The office lease rate ranges from $16.00-$18.00/SF FSG.
- Le taux comprend les services publics, les services de bâtiment et les dépenses immobilières.
- Disposition du plan d’étage ouverte en général
- Partiellement construit comme Bureau standard
- Peut être associé à un ou plusieurs espaces supplémentaires pour obtenir jusqu’à 8 507 pi² d’espace adjacent.
The Hanna Building has an array of flexible opportunities with endless amenities at every corner. The office lease rate ranges from $16.00-$18.00/SF FSG.
- Le taux comprend les services publics, les services de bâtiment et les dépenses immobilières.
- Disposition du plan d’étage ouverte en général
- Partiellement construit comme Bureau standard
| Espace | Taille | Terme | Taux de location | Utilisation de l’espace | Aménagement | Disponible |
| 2e étage, ste 200 | 8 400 pi² | Négociable | 22,08 $ CAD/pi²/an 1,84 $ CAD/pi²/mois 185 459 $ CAD/an 15 455 $ CAD/mois | Bureau | - | 2027-01-01 |
| 3e étage, ste 300 | 24 000 pi² | 1-15 ans | 22,08 $ CAD/pi²/an 1,84 $ CAD/pi²/mois 529 882 $ CAD/an 44 157 $ CAD/mois | Bureau | construction complète | Maintenant |
| 4e étage, ste Backstage at PSQ | 24 000 pi² | 1-15 ans | 22,08 $ CAD/pi²/an 1,84 $ CAD/pi²/mois 529 882 $ CAD/an 44 157 $ CAD/mois | Bureau | construction partielle | Maintenant |
| 5e étage, ste 552 | 2 192 pi² | 1-15 ans | 24,84 $ CAD/pi²/an 2,07 $ CAD/pi²/mois 54 445 $ CAD/an 4 537 $ CAD/mois | Bureau | construction partielle | Maintenant |
| 5e étage, ste 570 | 409 pi² | 1-15 ans | 22,08 $ CAD/pi²/an 1,84 $ CAD/pi²/mois 9 030 $ CAD/an 752,51 $ CAD/mois | Bureau | construction partielle | Maintenant |
| 6e étage, ste 604 | 2 717 pi² | 1-15 ans | 22,08 $ CAD/pi²/an 1,84 $ CAD/pi²/mois 59 987 $ CAD/an 4 999 $ CAD/mois | Bureau | construction partielle | Maintenant |
| 6e étage, ste 612 | 1 120 pi² | 1-15 ans | 22,08 $ CAD/pi²/an 1,84 $ CAD/pi²/mois 24 728 $ CAD/an 2 061 $ CAD/mois | Bureau | construction partielle | Maintenant |
| 6e étage, ste 616 | 969 pi² | 1-15 ans | 22,08 $ CAD/pi²/an 1,84 $ CAD/pi²/mois 21 394 $ CAD/an 1 783 $ CAD/mois | Bureau | construction partielle | Maintenant |
| 6e étage, ste 631 | 2 251 pi² | Négociable | 22,08 $ CAD/pi²/an 1,84 $ CAD/pi²/mois 49 698 $ CAD/an 4 142 $ CAD/mois | Bureau | construction partielle | 30 jours |
| 6e étage, ste 650 | 1 859 pi² | Négociable | 22,08 $ CAD/pi²/an 1,84 $ CAD/pi²/mois 41 044 $ CAD/an 3 420 $ CAD/mois | Bureau | - | Maintenant |
| 6e étage, ste 656 | 563 pi² | 1-15 ans | 22,08 $ CAD/pi²/an 1,84 $ CAD/pi²/mois 12 430 $ CAD/an 1 036 $ CAD/mois | Bureau | construction partielle | 30 jours |
| 6e étage, ste 662 | 1 160 pi² | 1-15 ans | 22,08 $ CAD/pi²/an 1,84 $ CAD/pi²/mois 25 611 $ CAD/an 2 134 $ CAD/mois | Bureau | construction partielle | Maintenant |
| 6e étage, ste 668 | 778 pi² | 1-15 ans | 22,08 $ CAD/pi²/an 1,84 $ CAD/pi²/mois 17 177 $ CAD/an 1 431 $ CAD/mois | Bureau | construction partielle | Maintenant |
| 6e étage, ste 670 | 782 pi² | 1-15 ans | 22,08 $ CAD/pi²/an 1,84 $ CAD/pi²/mois 17 265 $ CAD/an 1 439 $ CAD/mois | Bureau | construction partielle | Maintenant |
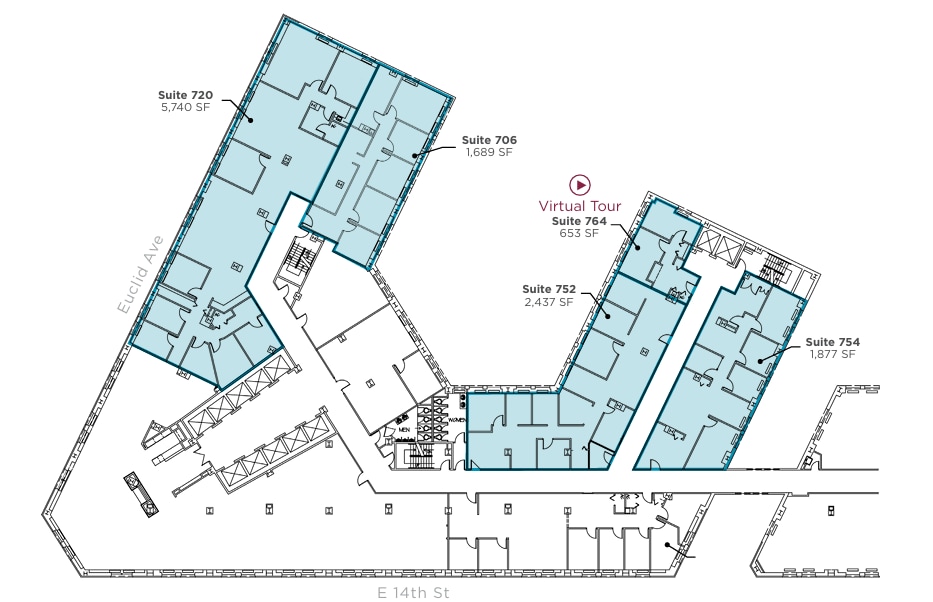
| 7e étage, ste 706 | 1 689 pi² | Négociable | 24,84 $ CAD/pi²/an 2,07 $ CAD/pi²/mois 41 952 $ CAD/an 3 496 $ CAD/mois | Bureau | - | Maintenant |
| 7e étage, ste 720 | 5 740 pi² | 1-15 ans | 22,08 $ CAD/pi²/an 1,84 $ CAD/pi²/mois 126 730 $ CAD/an 10 561 $ CAD/mois | Bureau | construction partielle | Maintenant |
| 7e étage, ste 752 | 2 437 pi² | 1-15 ans | 22,08 $ CAD/pi²/an 1,84 $ CAD/pi²/mois 53 805 $ CAD/an 4 484 $ CAD/mois | Bureau | construction partielle | Maintenant |
| 7e étage, ste 754 | 1 877 pi² | 1-15 ans | 22,08 $ CAD/pi²/an 1,84 $ CAD/pi²/mois 41 441 $ CAD/an 3 453 $ CAD/mois | Bureau | construction partielle | Maintenant |
| 7e étage, ste 764 | 653 pi² | 1-15 ans | 22,08 $ CAD/pi²/an 1,84 $ CAD/pi²/mois 14 417 $ CAD/an 1 201 $ CAD/mois | Bureau | construction partielle | Maintenant |
| 8e étage, ste 800 | 5 067 pi² | 1-15 ans | 22,08 $ CAD/pi²/an 1,84 $ CAD/pi²/mois 111 871 $ CAD/an 9 323 $ CAD/mois | Bureau | construction partielle | Maintenant |
| 8e étage, ste 802 | 394 pi² | Négociable | 24,84 $ CAD/pi²/an 2,07 $ CAD/pi²/mois 9 786 $ CAD/an 815,52 $ CAD/mois | Bureau | - | Maintenant |
| 8e étage, ste 852 | 612 pi² | 1-15 ans | 22,08 $ CAD/pi²/an 1,84 $ CAD/pi²/mois 13 512 $ CAD/an 1 126 $ CAD/mois | Bureau | construction partielle | Maintenant |
| 8e étage, ste 858 | 1 895 pi² | 1-15 ans | 22,08 $ CAD/pi²/an 1,84 $ CAD/pi²/mois 41 839 $ CAD/an 3 487 $ CAD/mois | Bureau | construction partielle | Maintenant |
| 8e étage, ste 862 | 663 pi² | 1-15 ans | 22,08 $ CAD/pi²/an 1,84 $ CAD/pi²/mois 14 638 $ CAD/an 1 220 $ CAD/mois | Bureau | construction partielle | Maintenant |
| 8e étage, ste 864 | 549 pi² | 1-15 ans | 22,08 $ CAD/pi²/an 1,84 $ CAD/pi²/mois 12 121 $ CAD/an 1 010 $ CAD/mois | Bureau | construction partielle | Maintenant |
| 8e étage, ste 868 | 958 pi² | 1-15 ans | 22,08 $ CAD/pi²/an 1,84 $ CAD/pi²/mois 21 151 $ CAD/an 1 763 $ CAD/mois | Bureau | construction partielle | Maintenant |
| 9e étage, ste 900 | 9 967 pi² | 1-15 ans | 22,08 $ CAD/pi²/an 1,84 $ CAD/pi²/mois 220 055 $ CAD/an 18 338 $ CAD/mois | Bureau | construction partielle | Maintenant |
| 9e étage, ste 904 | 1 318 pi² | 1-15 ans | 22,08 $ CAD/pi²/an 1,84 $ CAD/pi²/mois 29 099 $ CAD/an 2 425 $ CAD/mois | Bureau | construction partielle | Maintenant |
| 9e étage, ste 952 | 4 026 pi² | Négociable | 22,08 $ CAD/pi²/an 1,84 $ CAD/pi²/mois 88 888 $ CAD/an 7 407 $ CAD/mois | Bureau | - | Maintenant |
| 9e étage, ste 970 | 400 pi² | 1-15 ans | 22,08 $ CAD/pi²/an 1,84 $ CAD/pi²/mois 8 831 $ CAD/an 735,95 $ CAD/mois | Bureau | construction partielle | Maintenant |
| 10e étage, ste 1046 | 2 043 pi² | 1-15 ans | 22,08 $ CAD/pi²/an 1,84 $ CAD/pi²/mois 45 106 $ CAD/an 3 759 $ CAD/mois | Bureau | construction partielle | Maintenant |
| 10e étage, ste 1070 | 681 pi² | 1-15 ans | 22,08 $ CAD/pi²/an 1,84 $ CAD/pi²/mois 15 035 $ CAD/an 1 253 $ CAD/mois | Bureau | construction partielle | Maintenant |
| 11e étage, ste 1104 | 5 991 pi² | 1-15 ans | 24,84 $ CAD/pi²/an 2,07 $ CAD/pi²/mois 148 806 $ CAD/an 12 400 $ CAD/mois | Bureau | construction partielle | Maintenant |
| 11e étage, ste 1130 | 7 738 pi² | Négociable | 22,08 $ CAD/pi²/an 1,84 $ CAD/pi²/mois 170 843 $ CAD/an 14 237 $ CAD/mois | Bureau | - | Maintenant |
| 11e étage, ste 1150 | 2 243 pi² | 1-15 ans | 24,84 $ CAD/pi²/an 2,07 $ CAD/pi²/mois 55 712 $ CAD/an 4 643 $ CAD/mois | Bureau | construction partielle | Maintenant |
| 12e étage, ste 1200 | 24 000 pi² | 1-15 ans | 22,08 $ CAD/pi²/an 1,84 $ CAD/pi²/mois 529 882 $ CAD/an 44 157 $ CAD/mois | Bureau | construction partielle | Maintenant |
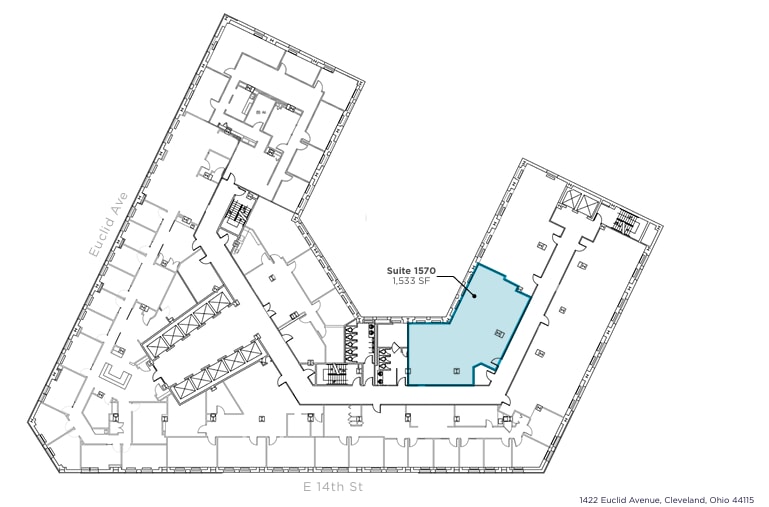
| 15e étage, ste 1570 | 1 533 pi² | 1-15 ans | 22,08 $ CAD/pi²/an 1,84 $ CAD/pi²/mois 33 846 $ CAD/an 2 821 $ CAD/mois | Bureau | construction partielle | Maintenant |
| 16e étage, ste 1600 | 3 912 pi² | 1-15 ans | 22,08 $ CAD/pi²/an 1,84 $ CAD/pi²/mois 86 371 $ CAD/an 7 198 $ CAD/mois | Bureau | construction partielle | Maintenant |
| 16e étage, ste 1630 | 1 608 pi² | 1-15 ans | 22,08 $ CAD/pi²/an 1,84 $ CAD/pi²/mois 35 502 $ CAD/an 2 959 $ CAD/mois | Bureau | construction partielle | Maintenant |
| 16e étage, ste 1642 | 2 987 pi² | 1-15 ans | 22,08 $ CAD/pi²/an 1,84 $ CAD/pi²/mois 65 948 $ CAD/an 5 496 $ CAD/mois | Bureau | construction partielle | Maintenant |
| 16e étage, ste 1668 | 3 072 pi² | 1-15 ans | 22,08 $ CAD/pi²/an 1,84 $ CAD/pi²/mois 67 825 $ CAD/an 5 652 $ CAD/mois | Bureau | construction partielle | Maintenant |
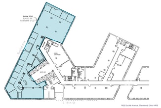
2e étage, ste 200
| Taille |
| 8 400 pi² |
| Terme |
| Négociable |
| Taux de location |
| 22,08 $ CAD/pi²/an 1,84 $ CAD/pi²/mois 185 459 $ CAD/an 15 455 $ CAD/mois |
| Utilisation de l’espace |
| Bureau |
| Aménagement |
| - |
| Disponible |
| 2027-01-01 |
3e étage, ste 300
| Taille |
| 24 000 pi² |
| Terme |
| 1-15 ans |
| Taux de location |
| 22,08 $ CAD/pi²/an 1,84 $ CAD/pi²/mois 529 882 $ CAD/an 44 157 $ CAD/mois |
| Utilisation de l’espace |
| Bureau |
| Aménagement |
| construction complète |
| Disponible |
| Maintenant |
4e étage, ste Backstage at PSQ
| Taille |
| 24 000 pi² |
| Terme |
| 1-15 ans |
| Taux de location |
| 22,08 $ CAD/pi²/an 1,84 $ CAD/pi²/mois 529 882 $ CAD/an 44 157 $ CAD/mois |
| Utilisation de l’espace |
| Bureau |
| Aménagement |
| construction partielle |
| Disponible |
| Maintenant |
5e étage, ste 552
| Taille |
| 2 192 pi² |
| Terme |
| 1-15 ans |
| Taux de location |
| 24,84 $ CAD/pi²/an 2,07 $ CAD/pi²/mois 54 445 $ CAD/an 4 537 $ CAD/mois |
| Utilisation de l’espace |
| Bureau |
| Aménagement |
| construction partielle |
| Disponible |
| Maintenant |
5e étage, ste 570
| Taille |
| 409 pi² |
| Terme |
| 1-15 ans |
| Taux de location |
| 22,08 $ CAD/pi²/an 1,84 $ CAD/pi²/mois 9 030 $ CAD/an 752,51 $ CAD/mois |
| Utilisation de l’espace |
| Bureau |
| Aménagement |
| construction partielle |
| Disponible |
| Maintenant |
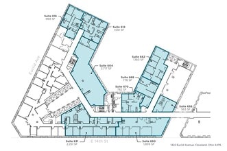
6e étage, ste 604
| Taille |
| 2 717 pi² |
| Terme |
| 1-15 ans |
| Taux de location |
| 22,08 $ CAD/pi²/an 1,84 $ CAD/pi²/mois 59 987 $ CAD/an 4 999 $ CAD/mois |
| Utilisation de l’espace |
| Bureau |
| Aménagement |
| construction partielle |
| Disponible |
| Maintenant |
6e étage, ste 612
| Taille |
| 1 120 pi² |
| Terme |
| 1-15 ans |
| Taux de location |
| 22,08 $ CAD/pi²/an 1,84 $ CAD/pi²/mois 24 728 $ CAD/an 2 061 $ CAD/mois |
| Utilisation de l’espace |
| Bureau |
| Aménagement |
| construction partielle |
| Disponible |
| Maintenant |
6e étage, ste 616
| Taille |
| 969 pi² |
| Terme |
| 1-15 ans |
| Taux de location |
| 22,08 $ CAD/pi²/an 1,84 $ CAD/pi²/mois 21 394 $ CAD/an 1 783 $ CAD/mois |
| Utilisation de l’espace |
| Bureau |
| Aménagement |
| construction partielle |
| Disponible |
| Maintenant |
6e étage, ste 631
| Taille |
| 2 251 pi² |
| Terme |
| Négociable |
| Taux de location |
| 22,08 $ CAD/pi²/an 1,84 $ CAD/pi²/mois 49 698 $ CAD/an 4 142 $ CAD/mois |
| Utilisation de l’espace |
| Bureau |
| Aménagement |
| construction partielle |
| Disponible |
| 30 jours |
6e étage, ste 650
| Taille |
| 1 859 pi² |
| Terme |
| Négociable |
| Taux de location |
| 22,08 $ CAD/pi²/an 1,84 $ CAD/pi²/mois 41 044 $ CAD/an 3 420 $ CAD/mois |
| Utilisation de l’espace |
| Bureau |
| Aménagement |
| - |
| Disponible |
| Maintenant |
6e étage, ste 656
| Taille |
| 563 pi² |
| Terme |
| 1-15 ans |
| Taux de location |
| 22,08 $ CAD/pi²/an 1,84 $ CAD/pi²/mois 12 430 $ CAD/an 1 036 $ CAD/mois |
| Utilisation de l’espace |
| Bureau |
| Aménagement |
| construction partielle |
| Disponible |
| 30 jours |
6e étage, ste 662
| Taille |
| 1 160 pi² |
| Terme |
| 1-15 ans |
| Taux de location |
| 22,08 $ CAD/pi²/an 1,84 $ CAD/pi²/mois 25 611 $ CAD/an 2 134 $ CAD/mois |
| Utilisation de l’espace |
| Bureau |
| Aménagement |
| construction partielle |
| Disponible |
| Maintenant |
6e étage, ste 668
| Taille |
| 778 pi² |
| Terme |
| 1-15 ans |
| Taux de location |
| 22,08 $ CAD/pi²/an 1,84 $ CAD/pi²/mois 17 177 $ CAD/an 1 431 $ CAD/mois |
| Utilisation de l’espace |
| Bureau |
| Aménagement |
| construction partielle |
| Disponible |
| Maintenant |
6e étage, ste 670
| Taille |
| 782 pi² |
| Terme |
| 1-15 ans |
| Taux de location |
| 22,08 $ CAD/pi²/an 1,84 $ CAD/pi²/mois 17 265 $ CAD/an 1 439 $ CAD/mois |
| Utilisation de l’espace |
| Bureau |
| Aménagement |
| construction partielle |
| Disponible |
| Maintenant |
7e étage, ste 706
| Taille |
| 1 689 pi² |
| Terme |
| Négociable |
| Taux de location |
| 24,84 $ CAD/pi²/an 2,07 $ CAD/pi²/mois 41 952 $ CAD/an 3 496 $ CAD/mois |
| Utilisation de l’espace |
| Bureau |
| Aménagement |
| - |
| Disponible |
| Maintenant |
7e étage, ste 720
| Taille |
| 5 740 pi² |
| Terme |
| 1-15 ans |
| Taux de location |
| 22,08 $ CAD/pi²/an 1,84 $ CAD/pi²/mois 126 730 $ CAD/an 10 561 $ CAD/mois |
| Utilisation de l’espace |
| Bureau |
| Aménagement |
| construction partielle |
| Disponible |
| Maintenant |
7e étage, ste 752
| Taille |
| 2 437 pi² |
| Terme |
| 1-15 ans |
| Taux de location |
| 22,08 $ CAD/pi²/an 1,84 $ CAD/pi²/mois 53 805 $ CAD/an 4 484 $ CAD/mois |
| Utilisation de l’espace |
| Bureau |
| Aménagement |
| construction partielle |
| Disponible |
| Maintenant |
7e étage, ste 754
| Taille |
| 1 877 pi² |
| Terme |
| 1-15 ans |
| Taux de location |
| 22,08 $ CAD/pi²/an 1,84 $ CAD/pi²/mois 41 441 $ CAD/an 3 453 $ CAD/mois |
| Utilisation de l’espace |
| Bureau |
| Aménagement |
| construction partielle |
| Disponible |
| Maintenant |
7e étage, ste 764
| Taille |
| 653 pi² |
| Terme |
| 1-15 ans |
| Taux de location |
| 22,08 $ CAD/pi²/an 1,84 $ CAD/pi²/mois 14 417 $ CAD/an 1 201 $ CAD/mois |
| Utilisation de l’espace |
| Bureau |
| Aménagement |
| construction partielle |
| Disponible |
| Maintenant |
8e étage, ste 800
| Taille |
| 5 067 pi² |
| Terme |
| 1-15 ans |
| Taux de location |
| 22,08 $ CAD/pi²/an 1,84 $ CAD/pi²/mois 111 871 $ CAD/an 9 323 $ CAD/mois |
| Utilisation de l’espace |
| Bureau |
| Aménagement |
| construction partielle |
| Disponible |
| Maintenant |
8e étage, ste 802
| Taille |
| 394 pi² |
| Terme |
| Négociable |
| Taux de location |
| 24,84 $ CAD/pi²/an 2,07 $ CAD/pi²/mois 9 786 $ CAD/an 815,52 $ CAD/mois |
| Utilisation de l’espace |
| Bureau |
| Aménagement |
| - |
| Disponible |
| Maintenant |
8e étage, ste 852
| Taille |
| 612 pi² |
| Terme |
| 1-15 ans |
| Taux de location |
| 22,08 $ CAD/pi²/an 1,84 $ CAD/pi²/mois 13 512 $ CAD/an 1 126 $ CAD/mois |
| Utilisation de l’espace |
| Bureau |
| Aménagement |
| construction partielle |
| Disponible |
| Maintenant |
8e étage, ste 858
| Taille |
| 1 895 pi² |
| Terme |
| 1-15 ans |
| Taux de location |
| 22,08 $ CAD/pi²/an 1,84 $ CAD/pi²/mois 41 839 $ CAD/an 3 487 $ CAD/mois |
| Utilisation de l’espace |
| Bureau |
| Aménagement |
| construction partielle |
| Disponible |
| Maintenant |
8e étage, ste 862
| Taille |
| 663 pi² |
| Terme |
| 1-15 ans |
| Taux de location |
| 22,08 $ CAD/pi²/an 1,84 $ CAD/pi²/mois 14 638 $ CAD/an 1 220 $ CAD/mois |
| Utilisation de l’espace |
| Bureau |
| Aménagement |
| construction partielle |
| Disponible |
| Maintenant |
8e étage, ste 864
| Taille |
| 549 pi² |
| Terme |
| 1-15 ans |
| Taux de location |
| 22,08 $ CAD/pi²/an 1,84 $ CAD/pi²/mois 12 121 $ CAD/an 1 010 $ CAD/mois |
| Utilisation de l’espace |
| Bureau |
| Aménagement |
| construction partielle |
| Disponible |
| Maintenant |
8e étage, ste 868
| Taille |
| 958 pi² |
| Terme |
| 1-15 ans |
| Taux de location |
| 22,08 $ CAD/pi²/an 1,84 $ CAD/pi²/mois 21 151 $ CAD/an 1 763 $ CAD/mois |
| Utilisation de l’espace |
| Bureau |
| Aménagement |
| construction partielle |
| Disponible |
| Maintenant |
9e étage, ste 900
| Taille |
| 9 967 pi² |
| Terme |
| 1-15 ans |
| Taux de location |
| 22,08 $ CAD/pi²/an 1,84 $ CAD/pi²/mois 220 055 $ CAD/an 18 338 $ CAD/mois |
| Utilisation de l’espace |
| Bureau |
| Aménagement |
| construction partielle |
| Disponible |
| Maintenant |
9e étage, ste 904
| Taille |
| 1 318 pi² |
| Terme |
| 1-15 ans |
| Taux de location |
| 22,08 $ CAD/pi²/an 1,84 $ CAD/pi²/mois 29 099 $ CAD/an 2 425 $ CAD/mois |
| Utilisation de l’espace |
| Bureau |
| Aménagement |
| construction partielle |
| Disponible |
| Maintenant |
9e étage, ste 952
| Taille |
| 4 026 pi² |
| Terme |
| Négociable |
| Taux de location |
| 22,08 $ CAD/pi²/an 1,84 $ CAD/pi²/mois 88 888 $ CAD/an 7 407 $ CAD/mois |
| Utilisation de l’espace |
| Bureau |
| Aménagement |
| - |
| Disponible |
| Maintenant |
9e étage, ste 970
| Taille |
| 400 pi² |
| Terme |
| 1-15 ans |
| Taux de location |
| 22,08 $ CAD/pi²/an 1,84 $ CAD/pi²/mois 8 831 $ CAD/an 735,95 $ CAD/mois |
| Utilisation de l’espace |
| Bureau |
| Aménagement |
| construction partielle |
| Disponible |
| Maintenant |
10e étage, ste 1046
| Taille |
| 2 043 pi² |
| Terme |
| 1-15 ans |
| Taux de location |
| 22,08 $ CAD/pi²/an 1,84 $ CAD/pi²/mois 45 106 $ CAD/an 3 759 $ CAD/mois |
| Utilisation de l’espace |
| Bureau |
| Aménagement |
| construction partielle |
| Disponible |
| Maintenant |
10e étage, ste 1070
| Taille |
| 681 pi² |
| Terme |
| 1-15 ans |
| Taux de location |
| 22,08 $ CAD/pi²/an 1,84 $ CAD/pi²/mois 15 035 $ CAD/an 1 253 $ CAD/mois |
| Utilisation de l’espace |
| Bureau |
| Aménagement |
| construction partielle |
| Disponible |
| Maintenant |
11e étage, ste 1104
| Taille |
| 5 991 pi² |
| Terme |
| 1-15 ans |
| Taux de location |
| 24,84 $ CAD/pi²/an 2,07 $ CAD/pi²/mois 148 806 $ CAD/an 12 400 $ CAD/mois |
| Utilisation de l’espace |
| Bureau |
| Aménagement |
| construction partielle |
| Disponible |
| Maintenant |
11e étage, ste 1130
| Taille |
| 7 738 pi² |
| Terme |
| Négociable |
| Taux de location |
| 22,08 $ CAD/pi²/an 1,84 $ CAD/pi²/mois 170 843 $ CAD/an 14 237 $ CAD/mois |
| Utilisation de l’espace |
| Bureau |
| Aménagement |
| - |
| Disponible |
| Maintenant |
11e étage, ste 1150
| Taille |
| 2 243 pi² |
| Terme |
| 1-15 ans |
| Taux de location |
| 24,84 $ CAD/pi²/an 2,07 $ CAD/pi²/mois 55 712 $ CAD/an 4 643 $ CAD/mois |
| Utilisation de l’espace |
| Bureau |
| Aménagement |
| construction partielle |
| Disponible |
| Maintenant |
12e étage, ste 1200
| Taille |
| 24 000 pi² |
| Terme |
| 1-15 ans |
| Taux de location |
| 22,08 $ CAD/pi²/an 1,84 $ CAD/pi²/mois 529 882 $ CAD/an 44 157 $ CAD/mois |
| Utilisation de l’espace |
| Bureau |
| Aménagement |
| construction partielle |
| Disponible |
| Maintenant |
15e étage, ste 1570
| Taille |
| 1 533 pi² |
| Terme |
| 1-15 ans |
| Taux de location |
| 22,08 $ CAD/pi²/an 1,84 $ CAD/pi²/mois 33 846 $ CAD/an 2 821 $ CAD/mois |
| Utilisation de l’espace |
| Bureau |
| Aménagement |
| construction partielle |
| Disponible |
| Maintenant |
16e étage, ste 1600
| Taille |
| 3 912 pi² |
| Terme |
| 1-15 ans |
| Taux de location |
| 22,08 $ CAD/pi²/an 1,84 $ CAD/pi²/mois 86 371 $ CAD/an 7 198 $ CAD/mois |
| Utilisation de l’espace |
| Bureau |
| Aménagement |
| construction partielle |
| Disponible |
| Maintenant |
16e étage, ste 1630
| Taille |
| 1 608 pi² |
| Terme |
| 1-15 ans |
| Taux de location |
| 22,08 $ CAD/pi²/an 1,84 $ CAD/pi²/mois 35 502 $ CAD/an 2 959 $ CAD/mois |
| Utilisation de l’espace |
| Bureau |
| Aménagement |
| construction partielle |
| Disponible |
| Maintenant |
16e étage, ste 1642
| Taille |
| 2 987 pi² |
| Terme |
| 1-15 ans |
| Taux de location |
| 22,08 $ CAD/pi²/an 1,84 $ CAD/pi²/mois 65 948 $ CAD/an 5 496 $ CAD/mois |
| Utilisation de l’espace |
| Bureau |
| Aménagement |
| construction partielle |
| Disponible |
| Maintenant |
16e étage, ste 1668
| Taille |
| 3 072 pi² |
| Terme |
| 1-15 ans |
| Taux de location |
| 22,08 $ CAD/pi²/an 1,84 $ CAD/pi²/mois 67 825 $ CAD/an 5 652 $ CAD/mois |
| Utilisation de l’espace |
| Bureau |
| Aménagement |
| construction partielle |
| Disponible |
| Maintenant |
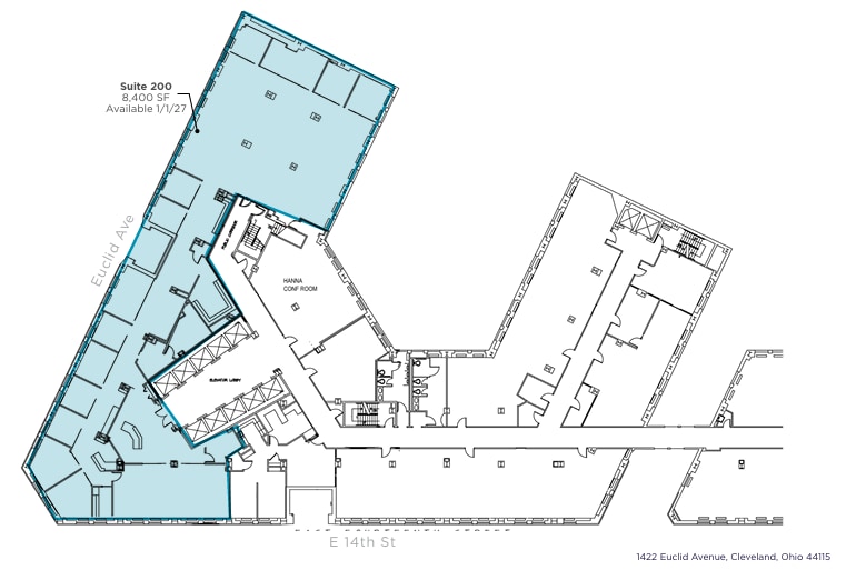
2e étage, ste 200
| Taille | 8 400 pi² |
| Terme | Négociable |
| Taux de location | 22,08 $ CAD/pi²/an |
| Utilisation de l’espace | Bureau |
| Aménagement | - |
| Disponible | 2027-01-01 |
- Le taux comprend les services publics, les services de bâtiment et les dépenses immobilières.
3e étage, ste 300
| Taille | 24 000 pi² |
| Terme | 1-15 ans |
| Taux de location | 22,08 $ CAD/pi²/an |
| Utilisation de l’espace | Bureau |
| Aménagement | construction complète |
| Disponible | Maintenant |
The Hanna Building has an array of flexible opportunities with endless amenities at every corner. The office lease rate ranges from $16.00-$18.00/SF FSG.
- Le taux comprend les services publics, les services de bâtiment et les dépenses immobilières.
- Entièrement construit comme Bureau de services professionnels
- Disposition du plan d’étage ouverte en général
- Espace en excellent état
- Peut être associé à un ou plusieurs espaces supplémentaires pour obtenir jusqu’à 48 000 pi² d’espace adjacent.
4e étage, ste Backstage at PSQ
| Taille | 24 000 pi² |
| Terme | 1-15 ans |
| Taux de location | 22,08 $ CAD/pi²/an |
| Utilisation de l’espace | Bureau |
| Aménagement | construction partielle |
| Disponible | Maintenant |
Backstage at Playhouse Square is a co-working space available at $750 per office, $450 per cubicle. Flexible lease term. All furniture included. Attached parking garage. All utilities included. Use of conference rooms included. Wi-Fi included. Café with free coffee. Access to printer/copier. Easiest highway access. Starbucks, Cibreo Italian Kitchen, Green Rooster, and more.
- Le taux comprend les services publics, les services de bâtiment et les dépenses immobilières.
- Partiellement construit comme Bureau standard
- Disposition du plan d’étage ouverte en général
- Peut être associé à un ou plusieurs espaces supplémentaires pour obtenir jusqu’à 48 000 pi² d’espace adjacent.
5e étage, ste 552
| Taille | 2 192 pi² |
| Terme | 1-15 ans |
| Taux de location | 24,84 $ CAD/pi²/an |
| Utilisation de l’espace | Bureau |
| Aménagement | construction partielle |
| Disponible | Maintenant |
The Hanna Building has an array of flexible opportunities with endless amenities at every corner. The office lease rate ranges from $16.00-$18.00/SF FSG.
- Le taux comprend les services publics, les services de bâtiment et les dépenses immobilières.
- Partiellement construit comme Bureau standard
- Disposition du plan d’étage ouverte en général
5e étage, ste 570
| Taille | 409 pi² |
| Terme | 1-15 ans |
| Taux de location | 22,08 $ CAD/pi²/an |
| Utilisation de l’espace | Bureau |
| Aménagement | construction partielle |
| Disponible | Maintenant |
The Hanna Building has an array of flexible opportunities with endless amenities at every corner. The office lease rate ranges from $16.00-$18.00/SF FSG.
- Le taux comprend les services publics, les services de bâtiment et les dépenses immobilières.
- Partiellement construit comme Bureau standard
- Disposition du plan d’étage ouverte en général
6e étage, ste 604
| Taille | 2 717 pi² |
| Terme | 1-15 ans |
| Taux de location | 22,08 $ CAD/pi²/an |
| Utilisation de l’espace | Bureau |
| Aménagement | construction partielle |
| Disponible | Maintenant |
The Hanna Building has an array of flexible opportunities with endless amenities at every corner. The office lease rate ranges from $16.00-$18.00/SF FSG.
- Le taux comprend les services publics, les services de bâtiment et les dépenses immobilières.
- Partiellement construit comme Bureau standard
- Disposition du plan d’étage ouverte en général
- Peut être associé à un ou plusieurs espaces supplémentaires pour obtenir jusqu’à 4 806 pi² d’espace adjacent.
6e étage, ste 612
| Taille | 1 120 pi² |
| Terme | 1-15 ans |
| Taux de location | 22,08 $ CAD/pi²/an |
| Utilisation de l’espace | Bureau |
| Aménagement | construction partielle |
| Disponible | Maintenant |
The Hanna Building has an array of flexible opportunities with endless amenities at every corner. The office lease rate ranges from $16.00-$18.00/SF FSG.
- Le taux comprend les services publics, les services de bâtiment et les dépenses immobilières.
- Partiellement construit comme Bureau standard
- Disposition du plan d’étage ouverte en général
- Peut être associé à un ou plusieurs espaces supplémentaires pour obtenir jusqu’à 4 806 pi² d’espace adjacent.
6e étage, ste 616
| Taille | 969 pi² |
| Terme | 1-15 ans |
| Taux de location | 22,08 $ CAD/pi²/an |
| Utilisation de l’espace | Bureau |
| Aménagement | construction partielle |
| Disponible | Maintenant |
The Hanna Building has an array of flexible opportunities with endless amenities at every corner. The office lease rate ranges from $16.00-$18.00/SF FSG.
- Le taux comprend les services publics, les services de bâtiment et les dépenses immobilières.
- Partiellement construit comme Bureau standard
- Disposition du plan d’étage ouverte en général
- Peut être associé à un ou plusieurs espaces supplémentaires pour obtenir jusqu’à 4 806 pi² d’espace adjacent.
6e étage, ste 631
| Taille | 2 251 pi² |
| Terme | Négociable |
| Taux de location | 22,08 $ CAD/pi²/an |
| Utilisation de l’espace | Bureau |
| Aménagement | construction partielle |
| Disponible | 30 jours |
The Hanna Building has an array of flexible opportunities with endless amenities at every corner. The office lease rate ranges from $16.00-$18.00/SF FSG.
- Le taux comprend les services publics, les services de bâtiment et les dépenses immobilières.
- Partiellement construit comme Bureau standard
- Disposition du plan d’étage ouverte en général
6e étage, ste 650
| Taille | 1 859 pi² |
| Terme | Négociable |
| Taux de location | 22,08 $ CAD/pi²/an |
| Utilisation de l’espace | Bureau |
| Aménagement | - |
| Disponible | Maintenant |
- Le taux comprend les services publics, les services de bâtiment et les dépenses immobilières.
6e étage, ste 656
| Taille | 563 pi² |
| Terme | 1-15 ans |
| Taux de location | 22,08 $ CAD/pi²/an |
| Utilisation de l’espace | Bureau |
| Aménagement | construction partielle |
| Disponible | 30 jours |
The Hanna Building has an array of flexible opportunities with endless amenities at every corner. The office lease rate ranges from $16.00-$18.00/SF FSG.
- Le taux comprend les services publics, les services de bâtiment et les dépenses immobilières.
- Partiellement construit comme Bureau standard
- Disposition du plan d’étage ouverte en général
6e étage, ste 662
| Taille | 1 160 pi² |
| Terme | 1-15 ans |
| Taux de location | 22,08 $ CAD/pi²/an |
| Utilisation de l’espace | Bureau |
| Aménagement | construction partielle |
| Disponible | Maintenant |
The Hanna Building has an array of flexible opportunities with endless amenities at every corner. The office lease rate ranges from $16.00-$18.00/SF FSG.
- Le taux comprend les services publics, les services de bâtiment et les dépenses immobilières.
- Partiellement construit comme Bureau standard
- Disposition du plan d’étage ouverte en général
- Peut être associé à un ou plusieurs espaces supplémentaires pour obtenir jusqu’à 2 720 pi² d’espace adjacent.
6e étage, ste 668
| Taille | 778 pi² |
| Terme | 1-15 ans |
| Taux de location | 22,08 $ CAD/pi²/an |
| Utilisation de l’espace | Bureau |
| Aménagement | construction partielle |
| Disponible | Maintenant |
The Hanna Building has an array of flexible opportunities with endless amenities at every corner. The office lease rate ranges from $16.00-$18.00/SF FSG.
- Le taux comprend les services publics, les services de bâtiment et les dépenses immobilières.
- Partiellement construit comme Bureau standard
- Disposition du plan d’étage ouverte en général
- Peut être associé à un ou plusieurs espaces supplémentaires pour obtenir jusqu’à 2 720 pi² d’espace adjacent.
6e étage, ste 670
| Taille | 782 pi² |
| Terme | 1-15 ans |
| Taux de location | 22,08 $ CAD/pi²/an |
| Utilisation de l’espace | Bureau |
| Aménagement | construction partielle |
| Disponible | Maintenant |
The Hanna Building has an array of flexible opportunities with endless amenities at every corner. The office lease rate ranges from $16.00-$18.00/SF FSG.
- Le taux comprend les services publics, les services de bâtiment et les dépenses immobilières.
- Partiellement construit comme Bureau standard
- Disposition du plan d’étage ouverte en général
- Peut être associé à un ou plusieurs espaces supplémentaires pour obtenir jusqu’à 2 720 pi² d’espace adjacent.
7e étage, ste 706
| Taille | 1 689 pi² |
| Terme | Négociable |
| Taux de location | 24,84 $ CAD/pi²/an |
| Utilisation de l’espace | Bureau |
| Aménagement | - |
| Disponible | Maintenant |
- Le taux comprend les services publics, les services de bâtiment et les dépenses immobilières.
7e étage, ste 720
| Taille | 5 740 pi² |
| Terme | 1-15 ans |
| Taux de location | 22,08 $ CAD/pi²/an |
| Utilisation de l’espace | Bureau |
| Aménagement | construction partielle |
| Disponible | Maintenant |
The Hanna Building has an array of flexible opportunities with endless amenities at every corner. The office lease rate ranges from $16.00-$18.00/SF FSG.
- Le taux comprend les services publics, les services de bâtiment et les dépenses immobilières.
- Partiellement construit comme Bureau standard
- Disposition du plan d’étage ouverte en général
7e étage, ste 752
| Taille | 2 437 pi² |
| Terme | 1-15 ans |
| Taux de location | 22,08 $ CAD/pi²/an |
| Utilisation de l’espace | Bureau |
| Aménagement | construction partielle |
| Disponible | Maintenant |
The Hanna Building has an array of flexible opportunities with endless amenities at every corner. The office lease rate ranges from $16.00-$18.00/SF FSG.
- Le taux comprend les services publics, les services de bâtiment et les dépenses immobilières.
- Partiellement construit comme Bureau standard
- Disposition du plan d’étage ouverte en général
- Peut être associé à un ou plusieurs espaces supplémentaires pour obtenir jusqu’à 3 090 pi² d’espace adjacent.
7e étage, ste 754
| Taille | 1 877 pi² |
| Terme | 1-15 ans |
| Taux de location | 22,08 $ CAD/pi²/an |
| Utilisation de l’espace | Bureau |
| Aménagement | construction partielle |
| Disponible | Maintenant |
The Hanna Building has an array of flexible opportunities with endless amenities at every corner. The office lease rate ranges from $16.00-$18.00/SF FSG.
- Le taux comprend les services publics, les services de bâtiment et les dépenses immobilières.
- Partiellement construit comme Bureau standard
- Disposition du plan d’étage ouverte en général
7e étage, ste 764
| Taille | 653 pi² |
| Terme | 1-15 ans |
| Taux de location | 22,08 $ CAD/pi²/an |
| Utilisation de l’espace | Bureau |
| Aménagement | construction partielle |
| Disponible | Maintenant |
The Hanna Building has an array of flexible opportunities with endless amenities at every corner. The office lease rate ranges from $16.00-$18.00/SF FSG.
- Le taux comprend les services publics, les services de bâtiment et les dépenses immobilières.
- Partiellement construit comme Bureau standard
- Disposition du plan d’étage ouverte en général
- Peut être associé à un ou plusieurs espaces supplémentaires pour obtenir jusqu’à 3 090 pi² d’espace adjacent.
8e étage, ste 800
| Taille | 5 067 pi² |
| Terme | 1-15 ans |
| Taux de location | 22,08 $ CAD/pi²/an |
| Utilisation de l’espace | Bureau |
| Aménagement | construction partielle |
| Disponible | Maintenant |
The Hanna Building has an array of flexible opportunities with endless amenities at every corner. The office lease rate ranges from $16.00-$18.00/SF FSG.
- Le taux comprend les services publics, les services de bâtiment et les dépenses immobilières.
- Partiellement construit comme Bureau standard
- Disposition du plan d’étage ouverte en général
8e étage, ste 802
| Taille | 394 pi² |
| Terme | Négociable |
| Taux de location | 24,84 $ CAD/pi²/an |
| Utilisation de l’espace | Bureau |
| Aménagement | - |
| Disponible | Maintenant |
- Le taux comprend les services publics, les services de bâtiment et les dépenses immobilières.
8e étage, ste 852
| Taille | 612 pi² |
| Terme | 1-15 ans |
| Taux de location | 22,08 $ CAD/pi²/an |
| Utilisation de l’espace | Bureau |
| Aménagement | construction partielle |
| Disponible | Maintenant |
The Hanna Building has an array of flexible opportunities with endless amenities at every corner. The office lease rate ranges from $16.00-$18.00/SF FSG.
- Le taux comprend les services publics, les services de bâtiment et les dépenses immobilières.
- Partiellement construit comme Bureau standard
- Disposition du plan d’étage ouverte en général
8e étage, ste 858
| Taille | 1 895 pi² |
| Terme | 1-15 ans |
| Taux de location | 22,08 $ CAD/pi²/an |
| Utilisation de l’espace | Bureau |
| Aménagement | construction partielle |
| Disponible | Maintenant |
The Hanna Building has an array of flexible opportunities with endless amenities at every corner. The office lease rate ranges from $16.00-$18.00/SF FSG.
- Le taux comprend les services publics, les services de bâtiment et les dépenses immobilières.
- Partiellement construit comme Bureau standard
- Disposition du plan d’étage ouverte en général
8e étage, ste 862
| Taille | 663 pi² |
| Terme | 1-15 ans |
| Taux de location | 22,08 $ CAD/pi²/an |
| Utilisation de l’espace | Bureau |
| Aménagement | construction partielle |
| Disponible | Maintenant |
The Hanna Building has an array of flexible opportunities with endless amenities at every corner. The office lease rate ranges from $16.00-$18.00/SF FSG.
- Le taux comprend les services publics, les services de bâtiment et les dépenses immobilières.
- Partiellement construit comme Bureau standard
- Disposition du plan d’étage ouverte en général
- Peut être associé à un ou plusieurs espaces supplémentaires pour obtenir jusqu’à 2 170 pi² d’espace adjacent.
8e étage, ste 864
| Taille | 549 pi² |
| Terme | 1-15 ans |
| Taux de location | 22,08 $ CAD/pi²/an |
| Utilisation de l’espace | Bureau |
| Aménagement | construction partielle |
| Disponible | Maintenant |
The Hanna Building has an array of flexible opportunities with endless amenities at every corner. The office lease rate ranges from $16.00-$18.00/SF FSG.
- Le taux comprend les services publics, les services de bâtiment et les dépenses immobilières.
- Partiellement construit comme Bureau standard
- Disposition du plan d’étage ouverte en général
- Peut être associé à un ou plusieurs espaces supplémentaires pour obtenir jusqu’à 2 170 pi² d’espace adjacent.
8e étage, ste 868
| Taille | 958 pi² |
| Terme | 1-15 ans |
| Taux de location | 22,08 $ CAD/pi²/an |
| Utilisation de l’espace | Bureau |
| Aménagement | construction partielle |
| Disponible | Maintenant |
The Hanna Building has an array of flexible opportunities with endless amenities at every corner. The office lease rate ranges from $16.00-$18.00/SF FSG.
- Le taux comprend les services publics, les services de bâtiment et les dépenses immobilières.
- Partiellement construit comme Bureau standard
- Disposition du plan d’étage ouverte en général
- Peut être associé à un ou plusieurs espaces supplémentaires pour obtenir jusqu’à 2 170 pi² d’espace adjacent.
9e étage, ste 900
| Taille | 9 967 pi² |
| Terme | 1-15 ans |
| Taux de location | 22,08 $ CAD/pi²/an |
| Utilisation de l’espace | Bureau |
| Aménagement | construction partielle |
| Disponible | Maintenant |
The Hanna Building has an array of flexible opportunities with endless amenities at every corner. The office lease rate ranges from $16.00-$18.00/SF FSG.
- Le taux comprend les services publics, les services de bâtiment et les dépenses immobilières.
- Partiellement construit comme Bureau standard
- Disposition du plan d’étage ouverte en général
- Peut être associé à un ou plusieurs espaces supplémentaires pour obtenir jusqu’à 11 285 pi² d’espace adjacent.
9e étage, ste 904
| Taille | 1 318 pi² |
| Terme | 1-15 ans |
| Taux de location | 22,08 $ CAD/pi²/an |
| Utilisation de l’espace | Bureau |
| Aménagement | construction partielle |
| Disponible | Maintenant |
The Hanna Building has an array of flexible opportunities with endless amenities at every corner. The office lease rate ranges from $16.00-$18.00/SF FSG.
- Le taux comprend les services publics, les services de bâtiment et les dépenses immobilières.
- Partiellement construit comme Bureau standard
- Disposition du plan d’étage ouverte en général
- Peut être associé à un ou plusieurs espaces supplémentaires pour obtenir jusqu’à 11 285 pi² d’espace adjacent.
9e étage, ste 952
| Taille | 4 026 pi² |
| Terme | Négociable |
| Taux de location | 22,08 $ CAD/pi²/an |
| Utilisation de l’espace | Bureau |
| Aménagement | - |
| Disponible | Maintenant |
The Hanna Building has an array of flexible opportunities with endless amenities at every corner. The office lease rate ranges from $16.00-$18.00/SF FSG.
- Le taux comprend les services publics, les services de bâtiment et les dépenses immobilières.
9e étage, ste 970
| Taille | 400 pi² |
| Terme | 1-15 ans |
| Taux de location | 22,08 $ CAD/pi²/an |
| Utilisation de l’espace | Bureau |
| Aménagement | construction partielle |
| Disponible | Maintenant |
The Hanna Building has an array of flexible opportunities with endless amenities at every corner. The office lease rate ranges from $16.00-$18.00/SF FSG.
- Le taux comprend les services publics, les services de bâtiment et les dépenses immobilières.
- Partiellement construit comme Bureau standard
- Disposition du plan d’étage ouverte en général
10e étage, ste 1046
| Taille | 2 043 pi² |
| Terme | 1-15 ans |
| Taux de location | 22,08 $ CAD/pi²/an |
| Utilisation de l’espace | Bureau |
| Aménagement | construction partielle |
| Disponible | Maintenant |
The Hanna Building has an array of flexible opportunities with endless amenities at every corner. The office lease rate ranges from $16.00-$18.00/SF FSG.
- Le taux comprend les services publics, les services de bâtiment et les dépenses immobilières.
- Partiellement construit comme Bureau standard
- Disposition du plan d’étage ouverte en général
10e étage, ste 1070
| Taille | 681 pi² |
| Terme | 1-15 ans |
| Taux de location | 22,08 $ CAD/pi²/an |
| Utilisation de l’espace | Bureau |
| Aménagement | construction partielle |
| Disponible | Maintenant |
The Hanna Building has an array of flexible opportunities with endless amenities at every corner. The office lease rate ranges from $16.00-$18.00/SF FSG.
- Le taux comprend les services publics, les services de bâtiment et les dépenses immobilières.
- Partiellement construit comme Bureau standard
- Disposition du plan d’étage ouverte en général
11e étage, ste 1104
| Taille | 5 991 pi² |
| Terme | 1-15 ans |
| Taux de location | 24,84 $ CAD/pi²/an |
| Utilisation de l’espace | Bureau |
| Aménagement | construction partielle |
| Disponible | Maintenant |
The Hanna Building has an array of flexible opportunities with endless amenities at every corner. The office lease rate ranges from $16.00-$18.00/SF FSG.
- Le taux comprend les services publics, les services de bâtiment et les dépenses immobilières.
- Partiellement construit comme Bureau standard
- Disposition du plan d’étage ouverte en général
- Peut être associé à un ou plusieurs espaces supplémentaires pour obtenir jusqu’à 15 972 pi² d’espace adjacent.
11e étage, ste 1130
| Taille | 7 738 pi² |
| Terme | Négociable |
| Taux de location | 22,08 $ CAD/pi²/an |
| Utilisation de l’espace | Bureau |
| Aménagement | - |
| Disponible | Maintenant |
The Hanna Building has an array of flexible opportunities with endless amenities at every corner. The office lease rate ranges from $16.00-$18.00/SF FSG.
- Le taux comprend les services publics, les services de bâtiment et les dépenses immobilières.
- Peut être associé à un ou plusieurs espaces supplémentaires pour obtenir jusqu’à 15 972 pi² d’espace adjacent.
11e étage, ste 1150
| Taille | 2 243 pi² |
| Terme | 1-15 ans |
| Taux de location | 24,84 $ CAD/pi²/an |
| Utilisation de l’espace | Bureau |
| Aménagement | construction partielle |
| Disponible | Maintenant |
The Hanna Building has an array of flexible opportunities with endless amenities at every corner. The office lease rate ranges from $16.00-$18.00/SF FSG.
- Le taux comprend les services publics, les services de bâtiment et les dépenses immobilières.
- Partiellement construit comme Bureau standard
- Disposition du plan d’étage ouverte en général
- Peut être associé à un ou plusieurs espaces supplémentaires pour obtenir jusqu’à 15 972 pi² d’espace adjacent.
12e étage, ste 1200
| Taille | 24 000 pi² |
| Terme | 1-15 ans |
| Taux de location | 22,08 $ CAD/pi²/an |
| Utilisation de l’espace | Bureau |
| Aménagement | construction partielle |
| Disponible | Maintenant |
The Hanna Building has an array of flexible opportunities with endless amenities at every corner. The office lease rate ranges from $16.00-$18.00/SF FSG.
- Le taux comprend les services publics, les services de bâtiment et les dépenses immobilières.
- Partiellement construit comme Bureau standard
- Disposition du plan d’étage ouverte en général
15e étage, ste 1570
| Taille | 1 533 pi² |
| Terme | 1-15 ans |
| Taux de location | 22,08 $ CAD/pi²/an |
| Utilisation de l’espace | Bureau |
| Aménagement | construction partielle |
| Disponible | Maintenant |
The Hanna Building has an array of flexible opportunities with endless amenities at every corner. The office lease rate ranges from $16.00-$18.00/SF FSG.
- Le taux comprend les services publics, les services de bâtiment et les dépenses immobilières.
- Partiellement construit comme Bureau standard
- Disposition du plan d’étage ouverte en général
16e étage, ste 1600
| Taille | 3 912 pi² |
| Terme | 1-15 ans |
| Taux de location | 22,08 $ CAD/pi²/an |
| Utilisation de l’espace | Bureau |
| Aménagement | construction partielle |
| Disponible | Maintenant |
The Hanna Building has an array of flexible opportunities with endless amenities at every corner. The office lease rate ranges from $16.00-$18.00/SF FSG.
- Le taux comprend les services publics, les services de bâtiment et les dépenses immobilières.
- Partiellement construit comme Bureau standard
- Disposition du plan d’étage ouverte en général
- Peut être associé à un ou plusieurs espaces supplémentaires pour obtenir jusqu’à 8 507 pi² d’espace adjacent.
16e étage, ste 1630
| Taille | 1 608 pi² |
| Terme | 1-15 ans |
| Taux de location | 22,08 $ CAD/pi²/an |
| Utilisation de l’espace | Bureau |
| Aménagement | construction partielle |
| Disponible | Maintenant |
The Hanna Building has an array of flexible opportunities with endless amenities at every corner. The office lease rate ranges from $16.00-$18.00/SF FSG.
- Le taux comprend les services publics, les services de bâtiment et les dépenses immobilières.
- Partiellement construit comme Bureau standard
- Disposition du plan d’étage ouverte en général
- Peut être associé à un ou plusieurs espaces supplémentaires pour obtenir jusqu’à 8 507 pi² d’espace adjacent.
16e étage, ste 1642
| Taille | 2 987 pi² |
| Terme | 1-15 ans |
| Taux de location | 22,08 $ CAD/pi²/an |
| Utilisation de l’espace | Bureau |
| Aménagement | construction partielle |
| Disponible | Maintenant |
The Hanna Building has an array of flexible opportunities with endless amenities at every corner. The office lease rate ranges from $16.00-$18.00/SF FSG.
- Le taux comprend les services publics, les services de bâtiment et les dépenses immobilières.
- Partiellement construit comme Bureau standard
- Disposition du plan d’étage ouverte en général
- Peut être associé à un ou plusieurs espaces supplémentaires pour obtenir jusqu’à 8 507 pi² d’espace adjacent.
16e étage, ste 1668
| Taille | 3 072 pi² |
| Terme | 1-15 ans |
| Taux de location | 22,08 $ CAD/pi²/an |
| Utilisation de l’espace | Bureau |
| Aménagement | construction partielle |
| Disponible | Maintenant |
The Hanna Building has an array of flexible opportunities with endless amenities at every corner. The office lease rate ranges from $16.00-$18.00/SF FSG.
- Le taux comprend les services publics, les services de bâtiment et les dépenses immobilières.
- Partiellement construit comme Bureau standard
- Disposition du plan d’étage ouverte en général
Aperçu de la propriété
L'édifice Hanna offre un éventail de possibilités flexibles et d'innombrables équipements à chaque coin de rue. Venez découvrir l'ambiance historique du quartier tout en travaillant dans les suites de bureaux les plus modernes du Playhouse Square District.
- Accès 24 heures
- Banque
- Ligne d'autobus
- Installations de conférences
- Dépanneur
- Centre de conditionnement physique
- Service d'alimentation
- Gestionnaire d'immeuble sur place
- Restaurant
- Système de sécurité
- Accessible aux fauteuils roulants
- Espace d'entreposage
- Climatisation
- Internet par fibre optique
Faits sur la propriété
Sélectionner des locataires
- Étage
- Nom du locataire
- Secteur
- 4ᵉ
- Backstage Coworking
- Services professionnels, scientifiques et techniques
- 1ᵉʳ
- Cibreo Italian Kitchen
- Hébergement et services alimentaires
- 3ᵉ
- DLR Group
- Services professionnels, scientifiques et techniques
- 10ᵉ
- DVA Architecture
- Services professionnels, scientifiques et techniques
- 1ᵉʳ
- Starbucks
- Hébergement et services alimentaires
- 2ᵉ
- Turner Construction Company
- Construction
Présenté par
Hanna Building | 1400-1422 Euclid Ave
Hmm, il semble y avoir eu une erreur lors de l’envoi de votre message. Veuillez réessayer.
Merci! Votre message a été envoyé.


























