Votre courriel a été envoyé.
1400 NE Van Buren St
Minneapolis, MN 55413
Van Buren Building · Industriel Propriété À louer
·
17 843 pi²


Certaines informations ont été traduites automatiquement.
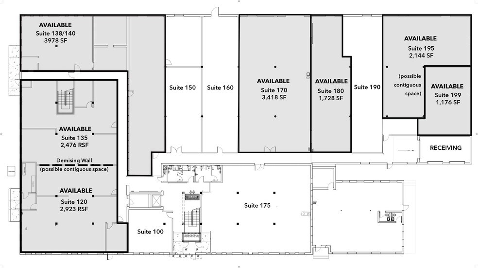
APERÇU DE LA PROPRIÉTÉ
Données économiques • Taux de location : 10$ - 16$ FPS net • Taxes relatives à l'exercice 2023 : 3,44$ (pip) • 2023 CAM : 4,63$ PAR PI² Caractéristiques de la propriété : • Situé dans le quartier artistique unique et en plein essor de Northeast Minneapolis, juste à côté de Central Ave NE • Des espaces de bureaux créatifs, industriels et flexibles disponibles à des tarifs concurrentiels • Commodités populaires dans les environs immédiats, notamment Indeed Brewing Company et Taproom, Tattersall Distilling, Centro, Dogwood Coffee and Able Seedhouse and Brewery • Stationnement à contrat disponible dans la propriété adjacente ; grand stationnement dans la rue également disponible
