Se Connecter/S’inscrire
Votre courriel a été envoyé.
1403 Timber Dr
Elgin, IL 60123
1403A · Flex Propriété À louer
·
2 800 pi²


Certaines informations ont été traduites automatiquement.
Caractéristiques
Hauteur libre
14’
Baies d’entrée
1
Places de stationnement standard
8
Aperçu de la propriété
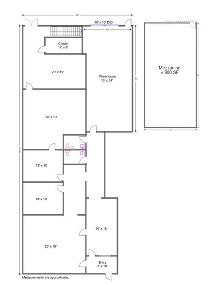
UNITÉ 1403A : Bureau de 2 332 pieds cubes avec (5) bureaux privés, salle de conférence, (2) salles de bains ADA, plus un entrepôt de ±470 pieds cubes avec ±800 pieds cubes de stockage en mezzanine. Voir les photos et la mise en page. Situé à quelques minutes de l'I-90 via le chemin Randall ou la route 31, à quelques pâtés de maisons de la station Metra, près du chemin Big Timber. L'unité est située sur la route avant de la promenade Timber, dans le parc industriel. Visitez le site Web de Premier Commercial Realty pour voir d'autres annonces.
Faits sur la propriété
Taille du bâtiment
23 690 pi²
Taille du lot
2,00 AC
Année de construction
1985
Construction
Maçonnerie
Zonage
I-1, Elgin
1 de 4
Vidéos
Visite extérieure 3D Matterport
Visite 3D Matterport
Photos
Vue depuis la rue
Rue
Carte
