Votre courriel a été envoyé.
Stafford Distribution Center 14049 Ellis St 39 100–101 794 pi² d'espace disponible • Industriel • 4 étoiles • Stafford, TX 77477



Certaines informations ont été traduites automatiquement.
Faits saillants
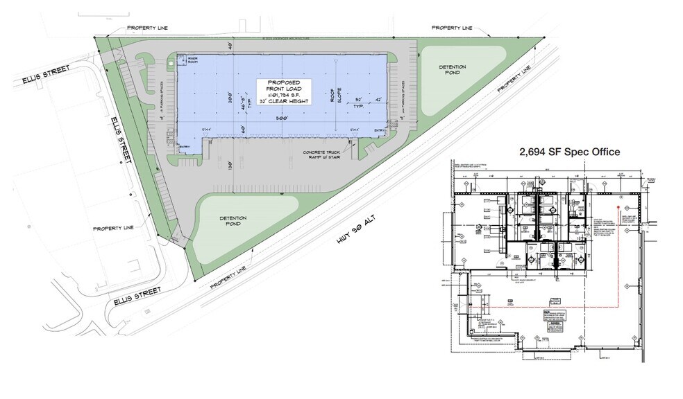
- Charge frontale
- 32 pi de hauteur libre
- Warehouse lights.
- 21 portes de quai et 2 rampes
- Cour des camions de 132 pi
- 6 mechanical pit levelers.
Caractéristiques
Tous les espaces disponibles(1)
Afficher les taux de location en
- Espace
- Taille
- Terme
- Taux de location
- Utilisation de l’espace
- Aménagement
- Disponible
2,694 SF Spec Office
- Comprend 2 964 pi² d’espace de bureau dédié
- Espace en excellent état
- 2 accès plain-pied
- 21 quais de chargement
| Espace | Taille | Terme | Taux de location | Utilisation de l’espace | Aménagement | Disponible |
| 1er étage - Bldg | 39 100 à 101 794 pi² | Négociable | Sur demande Sur demande Sur demande Sur demande | Industriel | selon spécifications | 2026-06-01 |
1er étage - Bldg
| Taille |
| 39 100 à 101 794 pi² |
| Terme |
| Négociable |
| Taux de location |
| Sur demande Sur demande Sur demande Sur demande |
| Utilisation de l’espace |
| Industriel |
| Aménagement |
| selon spécifications |
| Disponible |
| 2026-06-01 |
1er étage - Bldg
| Taille | 39 100 à 101 794 pi² |
| Terme | Négociable |
| Taux de location | Sur demande |
| Utilisation de l’espace | Industriel |
| Aménagement | selon spécifications |
| Disponible | 2026-06-01 |
2,694 SF Spec Office
- Comprend 2 964 pi² d’espace de bureau dédié
- 2 accès plain-pied
- Espace en excellent état
- 21 quais de chargement
Aperçu de la propriété
Stafford Distribution Center presents an exceptional leasing opportunity for businesses requiring a state-of-the-art distribution hub in the Houston metro area. This 101,794-square-foot facility is engineered for efficiency, featuring a front-load configuration, 32-foot clear height, and ESFR sprinkler system to support high-volume operations. The property’s strategic location—just 4 minutes from I-69 and Sam Houston Tollway—provides unparalleled access to regional and national markets, reducing transit times and optimizing supply chain performance. With 21 dock-high doors, two ramps, and a 130-foot truck court, tenants benefit from streamlined logistics and flexible loading options. The inclusion of a 2,694-square-foot spec office ensures immediate readiness for administrative functions, while 136 parking spaces accommodate workforce needs. Situated in Stafford, a thriving industrial hub with strong demographic growth, this facility offers proximity to Houston’s skilled labor force and major commercial centers. Whether for distribution, manufacturing, or third-party logistics, Stafford Distribution Center delivers the infrastructure and location advantages to elevate operational success.
Faits sur l’installation distribution
Présenté par
Stafford Distribution Center | 14049 Ellis St
Hmm, il semble y avoir eu une erreur lors de l’envoi de votre message. Veuillez réessayer.
Merci! Votre message a été envoyé.
