Se Connecter/S’inscrire
Votre courriel a été envoyé.
Price Reduced! Freestanding Industrial w/Dock 141 N Gibson Rd 13 140 pi² Industriel Immeuble Henderson, NV 89014 5 430 105 $ CAD (413,25 $ CAD/pi²)



Certaines informations ont été traduites automatiquement.
Faits saillants de l'investissement
- +/- 13 140 Bâtiment de bureaux et d'entrepôts de TSF
- Possibilité de cours fermées ou d'aires de stationnement
- +/- 24 pi de hauteur dégagée
- Chargement à quai et à pente
- Alimentation triphasée et extincteur
- Accès immédiat à l'I-215 au chemin Gibson
Résumé de l'annonce
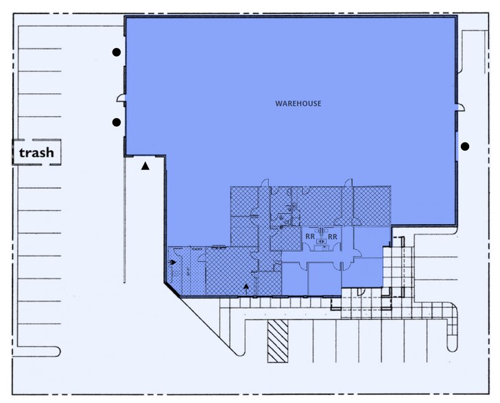
À vendre est un immeuble de bureaux et d'entrepôts autopants de +/- 13 140 TSF dans le sous-marché Henderson. Le bâtiment dispose de +/- 2 925 pieds pieds 2 de bureaux, de +/- 10 215 pieds pieds 2 d'entrepôt, d'une (1) porte de chargement à quai, de trois (3) portes de niveau, d'un potentiel de cours fermée/aire de stationnement.
Taxes et dépenses d’exploitation (Réel - 2025) Cliquez ici pour accéder à |
Annuel (CAD) | Annuel par pi² (CAD) |
|---|---|---|
| Taxes |
-
|
-
|
| Dépenses d’exploitation |
-
|
-
|
| Total des dépenses |
$99,999
|
$9.99
|
Taxes et dépenses d’exploitation (Réel - 2025) Cliquez ici pour accéder à
| Taxes (CAD) | |
|---|---|
| Annuel | - |
| Annuel par pi² | - |
| Dépenses d’exploitation (CAD) | |
|---|---|
| Annuel | - |
| Annuel par pi² | - |
| Total des dépenses (CAD) | |
|---|---|
| Annuel | $99,999 |
| Annuel par pi² | $9.99 |
Faits sur la propriété
Commodités
- Ligne d'autobus
- Affichage
- Puits de lumière
1 1
Assez praticable à pied
50/100
Exceptionnellement facile d’accès en voiture
100/100
Transports en commun limités
30/100
Plutôt praticable en vélo
50/100
Impôts fonciers
| Numéro de lot | 178-15-611-016 | Évaluation des bâtiments | 467 479 $ CAD (2026) |
| Évaluation du terrain | 267 400 $ CAD (2026) | Évaluation totale | 734 879 $ CAD (2026) |
Impôts fonciers
Numéro de lot
178-15-611-016
Évaluation du terrain
267 400 $ CAD (2026)
Évaluation des bâtiments
467 479 $ CAD (2026)
Évaluation totale
734 879 $ CAD (2026)
1 de 5
Vidéos
Visite extérieure 3D Matterport
Visite 3D Matterport
Photos
Vue depuis la rue
Rue
Carte
1 de 1
Présenté par
Price Reduced! Freestanding Industrial w/Dock | 141 N Gibson Rd
Vous êtes déjà membre? Connectez-vous
Hmm, il semble y avoir eu une erreur lors de l’envoi de votre message. Veuillez réessayer.
Merci! Votre message a été envoyé.
