Votre courriel a été envoyé.
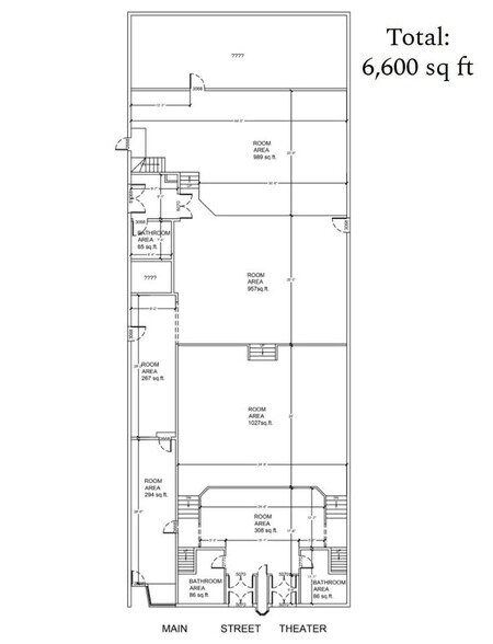
For Lease: Theater Space (6,600 sq ft) 141 N Main St 6 600 pi² d'espace disponible • Commerce de détail • Smithfield, UT 84335



Certaines informations ont été traduites automatiquement.
Faits saillants
- Located on the highest-traffic street in Smithfield with well over 30,000 cars passing by every day.
- New LDS temple(to be finished this year) less than a mile away. This will bring a significant amount of local traffic through the nearby intersection.
- Abundant space for parking behind building— parking lot was recently seal coated July 2025.
Disponibilité de l’espace (1)
Afficher les taux de location en
- Espace
- Taille
- Terme
- Taux de location
- Type de loyer
| Espace | Taille | Terme | Taux de location | Type de loyer | ||
| 1er étage | 6 600 pi² | Négociable | 12,49 $ CAD/pi²/an 1,04 $ CAD/pi²/mois 82 446 $ CAD/an 6 870 $ CAD/mois | Loyer hypernet |
1er étage
Theater space for lease in Smithfield, Utah.? Building 141 - Located just north of the corner of N Main Street and 100 N (UT-218).? $5,000 per month.? Small apartment attached at the back (West) end of building, could be leased together or separately.? Much tenant improvement is needed, and costs for improvements are negotiable between lessor and lessee.? NNN Leases, CAM fees apply ($2.40 per sq ft per year).? Parking in front along Main Street, and more parking behind building.? Minimum Lease Length: One year.? Lease Length Negotiable.? If interested: ( 4 3 5 ) - 3 7 5 - 9 1 4 9 c a l e b l e a v i t t 1 7 @ g m a i l .? c o m
- Le taux de location ne comprend pas les services publics, les services de bâtiment ou les dépenses immobilières.
- Partiellement construit comme Espace (spécialité)
- Espace nécessitant des rénovations
- Climatisation centrale
- Salle de bains privée
- Plancher surélevé
- Hauts plafonds
- Sous-sol
- Abundant space for parking behind building.
Types de loyers
Le type et le montant du loyer que le locataire (preneur) est tenu de payer au propriétaire (bailleur) sur la durée du bail sont négociés avant la signature du bail par les deux parties. Le type de loyer varie selon les services fournis. Par exemple, le prix d’un loyer hypernet est habituellement inférieur à celui d’un bail à service complet puisque le locataire est tenu d’assumer des dépenses additionnelles par rapport au loyer de base. Contactez le courtier inscripteur pour tout connaître sur les frais connexes et additionnels associés à chaque type de loyer.
1. Service complet: Un taux de location qui comprend des services standards liés à l’immeuble fournis par le propriétaire dans le cadre d’une location annuelle de base.
2. Loyer supernet: Le locataire paie seulement deux des frais de l’immeuble. Le propriétaire et le locataire déterminent ces frais spécifiques avant la signature du bail.
3. Loyer hypernet: Un bail en vertu duquel le locataire est responsable de tous les frais liés à sa part proportionnelle d’occupation de l’immeuble.
4. Brut modifié: Le loyer brut modifié désigne un type général de taux de location dans lequel le locataire est habituellement responsable de sa part proportionnelle d’un ou de plusieurs frais. C’est le propriétaire qui paie les frais restants. Considérez les structures tarifaires courantes suivantes applicables aux loyers bruts modifiés: 4. Plus les services: Un type de bail brut modifié suivant lequel le locataire est responsable de sa part proportionnelle des coûts des services publics, en plus du loyer. 4. Plus le nettoyage: Un type de bail brut modifié suivant lequel le locataire est responsable de sa part proportionnelle des coûts de nettoyage, en plus du loyer. 4. Plus l'électricité: Un type de bail brut modifié suivant lequel le locataire est responsable de sa part proportionnelle des coûts d’électricité, en plus du loyer. 4. Plus l’électricité et le nettoyage: Un type de bail brut modifié dans lequel le locataire est responsable de sa part proportionnelle des coûts d’électricité et de nettoyage, en plus du loyer. 4. Plus les services publics et le nettoyage: Un type de bail brut modifié dans lequel le locataire est responsable de sa part proportionnelle des coûts des services publics et de nettoyage, en plus du loyer. 4. Bail industriel brut: Un type de bail brut modifié dans lequel le locataire paie un ou plusieurs des frais, en plus du loyer. Le propriétaire et le locataire déterminent ces frais spécifiques avant la signature du bail.
5. L’électricité est à la charge du locataire: Le propriétaire paie pour tous les services et le locataire est responsable de sa propre utilisation de l’éclairage et des prises électriques dans l’espace qu’il occupe.
6. Négociable ou sur demande: Cette option est utilisée lorsque le contact de location ne précise pas le type de loyer ou de service.
7. À déterminer: À déterminer ; utilisé pour les immeubles dont le type de services ou de loyer n’est pas connu, souvent quand l’immeuble n’est pas encore construit.
Faits sur la propriété
| Superficie totale disponible | 6 600 pi² | Superficie commerciale brute | 5 808 pi² |
| Type de propriété | Commerce de détail | Année de construction | 1928 |
| Superficie totale disponible | 6 600 pi² |
| Type de propriété | Commerce de détail |
| Superficie commerciale brute | 5 808 pi² |
| Année de construction | 1928 |
Présenté par
Clove Homes LLC
For Lease: Theater Space (6,600 sq ft) | 141 N Main St
Hmm, il semble y avoir eu une erreur lors de l’envoi de votre message. Veuillez réessayer.
Merci! Votre message a été envoyé.



