Votre courriel a été envoyé.
1414 2nd St SE - 1414, 1416 & 1418 2nd St Development Site Lot • Terrain commercial • 0,49 Acres • 1 360 510 $ CAD • Puyallup, WA 98372



Certaines informations ont été traduites automatiquement.
Faits saillants de l'investissement
- Development site near MultiCare Good Samaritan Hospital and Washington State Fairgrounds.
- Zoned CG (General Commercial) with conceptual plans for hotel or mixed-use development.
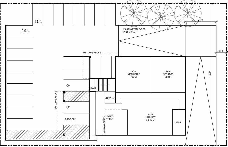
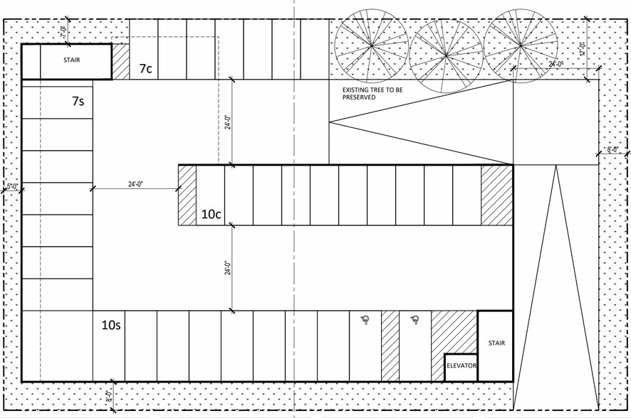
- Conceptual studies show potential for up to 40,413 SF of building area and structured parking.
- Approximately 0.49 acres across three parcels with existing income-producing duplex.
- Excellent access to SR-512 and major arterials with traffic counts exceeding 95,000 VPD nearby.
- Surrounded by retail, hospitality, and healthcare amenities in a high-demand corridor.
Résumé de l'annonce
The site is zoned CG (General Commercial), allowing for a wide range of commercial and hospitality uses. Conceptual massing studies have been completed, illustrating potential for a multi-story hotel or mixed-use development. Two design options are available: one supporting approximately 28,912 SF with 24 parking stalls, and another supporting approximately 40,413 SF with 34 stalls. Both concepts incorporate efficient layouts and modern amenities, maximizing the site’s development potential.
Located near the Washington State Fairgrounds and surrounded by retail, lodging, and healthcare facilities, this property benefits from strong traffic counts and a robust local economy. With conceptual drawings and a survey available, this site is well-positioned for investors or developers seeking a high-visibility project in a growing market.
Faits sur la propriété
1 Lot disponible
Lot
| Prix | 1 360 510 $ CAD | Taille du lot | 0,49 AC |
| Prix par AC | 2 776 551,00 $ CAD |
| Prix | 1 360 510 $ CAD |
| Prix par AC | 2 776 551,00 $ CAD |
| Taille du lot | 0,49 AC |
Development Site Near Good Samaritan Hospital. Multiple parcels. Rare Opportunity. Income producing duplex on one of the parcels.
Description
The property consists of three parcels totaling approximately 0.49 acres located on 2nd Street SE in Puyallup, Washington. It is situated near the intersection of 14th Avenue SE and 2nd Street SE, adjacent to commercial and residential uses. The site is in close proximity to MultiCare Good Samaritan Hospital and the Washington State Fairgrounds. Access to State Route 512 is nearby, providing regional connectivity. The property is currently improved with a duplex structure. Zoning is General Commercial (CG). Conceptual development plans have been prepared for potential hotel or mixed-use projects.
Impôts fonciers
| Numéros de lot | Évaluation des bâtiments | 80 282 $ CAD | |
| Évaluation du terrain | 895 432 $ CAD | Évaluation totale | 975 714 $ CAD |
Impôts fonciers
Présenté par
1414 2nd St SE - 1414, 1416 & 1418 2nd St Development Site
Hmm, il semble y avoir eu une erreur lors de l’envoi de votre message. Veuillez réessayer.
Merci! Votre message a été envoyé.

