Se Connecter/S’inscrire
Votre courriel a été envoyé.
1413-1415 Victorian Aly Duplex 1415 Victorian Aly 4 Unité Immeuble d’appartements 1 217 102 $ CAD (304 275 $ CAD/Unité) 10,30% Taux de capitalisation Sacramento, CA 95818



Certaines informations ont été traduites automatiquement.
Faits saillants de l'investissement
- High Income Short/Medium Term Furnished Apartments
Résumé de l'annonce
Duplex with internal attached ADU's.
Currently a mix of 30 to 120 night occupancy Occupancy length changes constantly. Average occupancy 90 nights.
Duplex is prime residential investment opportunity in Midtown Sacramento. Walkable to the R-Street entertainment corridor with all of its restaurants, bars, cafes, entertainment venues, and Safeway. Easy, convenient freeway access.
Upstairs and lower level include a studio/Master ADU.
1413 & 1415 Victorian Aly duplex (the right side of building) is Available *** 1409-1411 Victorian Aly is SOLD
Fully furnished and 100% occupied. Gated property and in-unit modern washer/dryers. High-quality interior finishes. Almost new low maintenance building. Located just around corner from Urban Roots Restaurant and brewery.
Lots of Free no-meter street parking in the area.
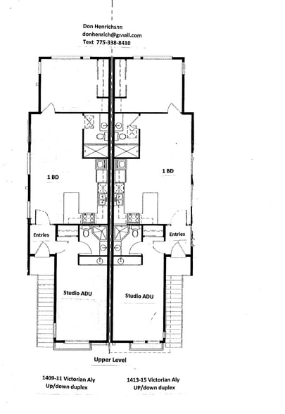
*See attached upper and street level floor plans in photos
*See attached turn key income and expense sheets in photos section
Write offers subject to inspections, then we can arrange interior viewings. Apartments are always occupied. You can view Apartments upon acceptance of your contingent offer.
The other side of the building (attached zero lot line) 1409-1411 is Sold. For further info, text Don (owner) at 775-338-8410 or email Donhenrich@gmail.co. Do Not Call if you want a reply. !!! Text only.
.
Currently a mix of 30 to 120 night occupancy Occupancy length changes constantly. Average occupancy 90 nights.
Duplex is prime residential investment opportunity in Midtown Sacramento. Walkable to the R-Street entertainment corridor with all of its restaurants, bars, cafes, entertainment venues, and Safeway. Easy, convenient freeway access.
Upstairs and lower level include a studio/Master ADU.
1413 & 1415 Victorian Aly duplex (the right side of building) is Available *** 1409-1411 Victorian Aly is SOLD
Fully furnished and 100% occupied. Gated property and in-unit modern washer/dryers. High-quality interior finishes. Almost new low maintenance building. Located just around corner from Urban Roots Restaurant and brewery.
Lots of Free no-meter street parking in the area.
*See attached upper and street level floor plans in photos
*See attached turn key income and expense sheets in photos section
Write offers subject to inspections, then we can arrange interior viewings. Apartments are always occupied. You can view Apartments upon acceptance of your contingent offer.
The other side of the building (attached zero lot line) 1409-1411 is Sold. For further info, text Don (owner) at 775-338-8410 or email Donhenrich@gmail.co. Do Not Call if you want a reply. !!! Text only.
.
Bilan financier (Réel - 2025) |
Annuel (CAD) | Annuel par pi² (CAD) |
|---|---|---|
| Revenu de location brut |
-
|
-
|
| Autres revenus |
-
|
-
|
| Perte due à l’inoccupation |
-
|
-
|
| Revenu brut effectif |
-
|
-
|
| Revenu net d’exploitation |
115 309 $
|
68,39 $
|
Bilan financier (Réel - 2025)
| Revenu de location brut (CAD) | |
|---|---|
| Annuel | - |
| Annuel par pi² | - |
| Autres revenus (CAD) | |
|---|---|
| Annuel | - |
| Annuel par pi² | - |
| Perte due à l’inoccupation (CAD) | |
|---|---|
| Annuel | - |
| Annuel par pi² | - |
| Revenu brut effectif (CAD) | |
|---|---|
| Annuel | - |
| Annuel par pi² | - |
| Revenu net d’exploitation (CAD) | |
|---|---|
| Annuel | 115 309 $ |
| Annuel par pi² | 68,39 $ |
Faits sur la propriété
| Prix | 1 217 102 $ CAD | Style d’appartement | De faible hauteur |
| Prix par unité | 304 275 $ CAD | Classe d’immeuble | B |
| Type de vente | Investissement | Taille du lot | 0,04 AC |
| Taux de capitalisation | 10,30% | Taille du bâtiment | 1 686 pi² |
| Nombre d’unités | 4 | Occupation moyenne | 99% |
| Type de propriété | Immeuble residentiel | Nombre d’étages | 2 |
| Sous-type de propriété | Appartement | Année de construction | 2021 |
| Zonage | R-1B-SPD - Résidentiel | ||
| Prix | 1 217 102 $ CAD |
| Prix par unité | 304 275 $ CAD |
| Type de vente | Investissement |
| Taux de capitalisation | 10,30% |
| Nombre d’unités | 4 |
| Type de propriété | Immeuble residentiel |
| Sous-type de propriété | Appartement |
| Style d’appartement | De faible hauteur |
| Classe d’immeuble | B |
| Taille du lot | 0,04 AC |
| Taille du bâtiment | 1 686 pi² |
| Occupation moyenne | 99% |
| Nombre d’étages | 2 |
| Année de construction | 2021 |
| Zonage | R-1B-SPD - Résidentiel |
Commodités
Commodités des unités
- Climatisation
- Lave-vaisselle
- Micro-ondes
- Laveuse/Sécheuse
- Connexions pour laveuse/Sécheuse
- Ventilateurs de plafond
- Comptoirs de granit
- Réfrigérateur
- Four
- Fourchette
- Bain/Douche
- Cour
- Salle de séjour
- Îlot de cuisine
- Patio
Commodités du site
- Installations de lessive
Unité renseignements sur le mélange
| Description | Nombre d’unités | Loyer moyen/mois | pi² |
|---|---|---|---|
| Studios | 2 | - | - |
| 1+1 | 2 | - | - |
1 1
Walk Score®
Un paradis pour un marcheur (93)
Bike Score®
Un paradis pour un cycliste (94)
Impôts fonciers
| Numéro de lot | 009-0205-031 | Évaluation des bâtiments | 834 459 $ CAD |
| Évaluation du terrain | 94 112 $ CAD | Évaluation totale | 928 571 $ CAD |
Impôts fonciers
Numéro de lot
009-0205-031
Évaluation du terrain
94 112 $ CAD
Évaluation des bâtiments
834 459 $ CAD
Évaluation totale
928 571 $ CAD
1 de 38
Vidéos
Visite extérieure 3D Matterport
Visite 3D Matterport
Photos
Vue depuis la rue
Rue
Carte
1 de 1
Présenté par
Don Henrichsen
1413-1415 Victorian Aly Duplex | 1415 Victorian Aly
Vous êtes déjà membre? Connectez-vous
Hmm, il semble y avoir eu une erreur lors de l’envoi de votre message. Veuillez réessayer.
Merci! Votre message a été envoyé.
