Votre courriel a été envoyé.
Certaines informations ont été traduites automatiquement.
Faits saillants
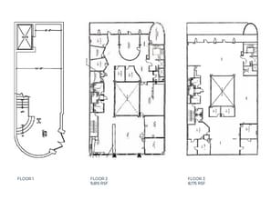
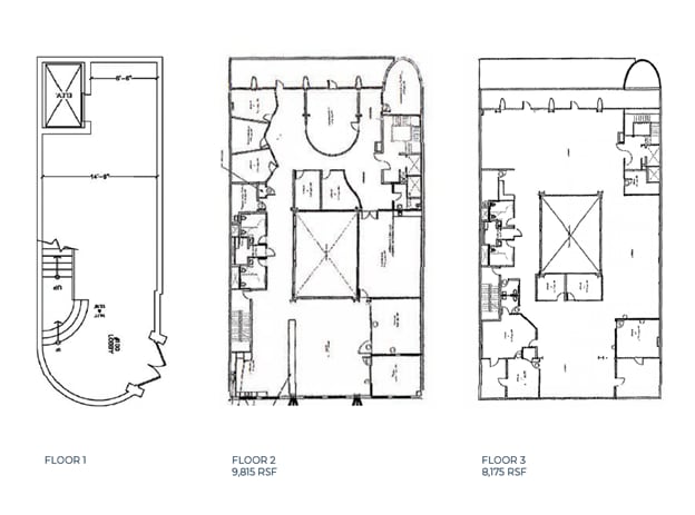
- Move operations into a two-level, 17,990-square-foot office space with an intuitive open layout of 10 private offices and two conference rooms.
- Availabilities include a screening room, private courtyard, big outdoor decks, polished concrete floors, and tall exposed ceilings.
- Valuable on-site parking with four parking spaces, 25 spaces at a nearby city lot, as well as easy commuting from the Downtown Santa Monica Expo Line.
- Downtown Studios has a prominent location right by Santa Monica beach, beloved local restaurants, and everything else downtown.
Tous les espaces disponibles(2)
Afficher les taux de location en
- Espace
- Taille
- Terme
- Taux de location
- Utilisation de l’espace
- Aménagement
- Disponible
- Le taux de location ne comprend pas les services publics, les services de bâtiment ou les dépenses immobilières.
- Disposition du plan d’étage ouverte en général
- Salles de conférence
- Peut être associé à un ou plusieurs espaces supplémentaires pour obtenir jusqu’à 17 990 pi² d’espace adjacent.
- Salle de bains privée
- Plafond exposé
- CVCA disponible après les heures de travail
- Plan ouvert
- Large Private Courtyard
- Private Decks
- Large Server Room
- Entièrement construit comme Bureau standard
- Convient pour 23 à 72 personnes
- Espace en excellent état
- Air central et chauffage
- Hauts plafonds
- Lumière naturelle
- Installations WC abandonnées
- Separate Secured Entry
- Onsite Parking
- Large Custom Kitchen
- Le taux de location ne comprend pas les services publics, les services de bâtiment ou les dépenses immobilières.
- Disposition du plan d’étage ouverte en général
- Salles de conférence
- Peut être associé à un ou plusieurs espaces supplémentaires pour obtenir jusqu’à 17 990 pi² d’espace adjacent.
- Salle de bains privée
- Plafond exposé
- CVCA disponible après les heures de travail
- Plan ouvert
- Large Private Courtyard
- Private Decks
- Large Server Room
- Entièrement construit comme Bureau standard
- Convient pour 23 à 72 personnes
- Espace en excellent état
- Air central et chauffage
- Hauts plafonds
- Lumière naturelle
- Installations WC abandonnées
- Separate Secured Entry
- Onsite Parking
- Large Custom Kitchen
| Espace | Taille | Terme | Taux de location | Utilisation de l’espace | Aménagement | Disponible |
| 2e étage, ste 200 | 8 995 pi² | Négociable | 73,47 $ CAD/pi²/an 6,12 $ CAD/pi²/mois 660 841 $ CAD/an 55 070 $ CAD/mois | Bureau | construction complète | Maintenant |
| 3e étage, ste 300 | 8 995 pi² | Négociable | 73,47 $ CAD/pi²/an 6,12 $ CAD/pi²/mois 660 841 $ CAD/an 55 070 $ CAD/mois | Bureau | construction complète | Maintenant |
2e étage, ste 200
| Taille |
| 8 995 pi² |
| Terme |
| Négociable |
| Taux de location |
| 73,47 $ CAD/pi²/an 6,12 $ CAD/pi²/mois 660 841 $ CAD/an 55 070 $ CAD/mois |
| Utilisation de l’espace |
| Bureau |
| Aménagement |
| construction complète |
| Disponible |
| Maintenant |
3e étage, ste 300
| Taille |
| 8 995 pi² |
| Terme |
| Négociable |
| Taux de location |
| 73,47 $ CAD/pi²/an 6,12 $ CAD/pi²/mois 660 841 $ CAD/an 55 070 $ CAD/mois |
| Utilisation de l’espace |
| Bureau |
| Aménagement |
| construction complète |
| Disponible |
| Maintenant |
2e étage, ste 200
| Taille | 8 995 pi² |
| Terme | Négociable |
| Taux de location | 73,47 $ CAD/pi²/an |
| Utilisation de l’espace | Bureau |
| Aménagement | construction complète |
| Disponible | Maintenant |
- Le taux de location ne comprend pas les services publics, les services de bâtiment ou les dépenses immobilières.
- Entièrement construit comme Bureau standard
- Disposition du plan d’étage ouverte en général
- Convient pour 23 à 72 personnes
- Salles de conférence
- Espace en excellent état
- Peut être associé à un ou plusieurs espaces supplémentaires pour obtenir jusqu’à 17 990 pi² d’espace adjacent.
- Air central et chauffage
- Salle de bains privée
- Hauts plafonds
- Plafond exposé
- Lumière naturelle
- CVCA disponible après les heures de travail
- Installations WC abandonnées
- Plan ouvert
- Separate Secured Entry
- Large Private Courtyard
- Onsite Parking
- Private Decks
- Large Custom Kitchen
- Large Server Room
3e étage, ste 300
| Taille | 8 995 pi² |
| Terme | Négociable |
| Taux de location | 73,47 $ CAD/pi²/an |
| Utilisation de l’espace | Bureau |
| Aménagement | construction complète |
| Disponible | Maintenant |
- Le taux de location ne comprend pas les services publics, les services de bâtiment ou les dépenses immobilières.
- Entièrement construit comme Bureau standard
- Disposition du plan d’étage ouverte en général
- Convient pour 23 à 72 personnes
- Salles de conférence
- Espace en excellent état
- Peut être associé à un ou plusieurs espaces supplémentaires pour obtenir jusqu’à 17 990 pi² d’espace adjacent.
- Air central et chauffage
- Salle de bains privée
- Hauts plafonds
- Plafond exposé
- Lumière naturelle
- CVCA disponible après les heures de travail
- Installations WC abandonnées
- Plan ouvert
- Separate Secured Entry
- Large Private Courtyard
- Onsite Parking
- Private Decks
- Large Custom Kitchen
- Large Server Room
Visite 3D Matterport
Aperçu de la propriété
Vient tout juste d’arriver sur le marché. Studios du centre-ville sur la 2e rue à Santa Monica. C’est un espace propre et créatif comprenant 10 bureaux privés, 2 salles de conférence, une salle de projection, une cour privée, de grandes terrasses extérieures et des plafonds hauts avec poutres apparentes. Inclut 4 espaces de stationnement sur place à 250 $ chacun, avec 25 autres places disponibles à proximité. Emplacement de choix, tout près de la plage, des restaurants et de tout ce que le centre-ville a à offrir.
- Atrium
- Accès contrôlé
- Système de sécurité
- Affichage
- Accessible aux fauteuils roulants
- Détecteur de fumée
Faits sur la propriété
Présenté par
Downtown Studios | 1424 2nd St
Hmm, il semble y avoir eu une erreur lors de l’envoi de votre message. Veuillez réessayer.
Merci! Votre message a été envoyé.









