Votre courriel a été envoyé.
| Great space for Medical, Office | 4,367 SF 14253 SW 42nd St 4 367 pi² d'espace disponible • Flex • Miami, FL 33175



Certaines informations ont été traduites automatiquement.
Faits saillants de la sous-location
- High daily traffic exposure – over 20,000 cars pass by on Bird Road
- Ample free parking
- Fully air-conditioned with central HVAC system
Caractéristiques
Tous les espaces disponibles(1)
Afficher les taux de location en
- Espace
- Taille
- Terme
- Taux de location
- Utilisation de l’espace
- Aménagement
- Disponible
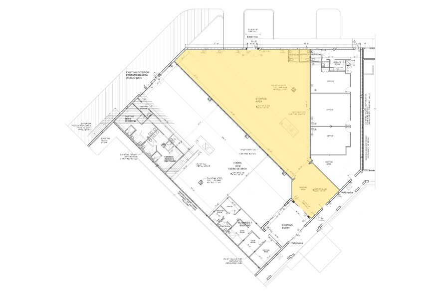
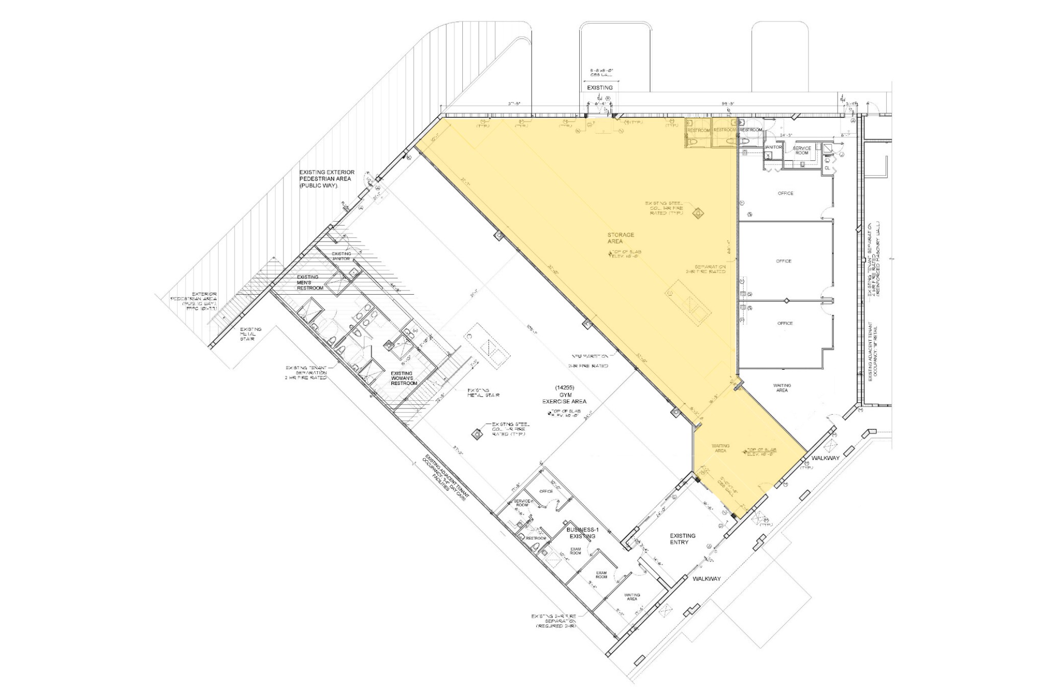
Fully Air-Conditioned Flex Space Now Available – Prime Bird Road Location Discover 4,367 SF of versatile commercial space at 14253 SW 42nd St #13B, Miami, FL 33175, located in the highly sought-after Bird Road Center. This professional suite is fully air-conditioned, creating an ideal setting for healthcare providers, therapy practices, wellness studios, finance/insurance offices, and more. The unit was previously built out as a restaurant and includes a partial build-out with select equipment still in place, central air & heating, and access to shared common areas. The property also offers ample free parking (412 spaces), a strong business address, and all-inclusive utilities. Currently Vacant: There is no existing sublease or tenant in place. The space is open, ready for occupancy, and available with a minimum sublease term of three years.
- Espace de sous-location disponible auprès du locataire actuel
- Espace en excellent état
- Salle de bains privée
- Hauts plafonds
- Le taux de location ne comprend pas les services publics, les services de bâtiment ou les dépenses immobilières.
- Climatisation centrale
- Entreposage sécurisé
- Fully air-conditioned
| Espace | Taille | Terme | Taux de location | Utilisation de l’espace | Aménagement | Disponible |
| 1er étage | 4 367 pi² | Négociable | 38,35 $ CAD/pi²/an 3,20 $ CAD/pi²/mois 167 483 $ CAD/an 13 957 $ CAD/mois | Flex | construction partielle | Maintenant |
1er étage
| Taille |
| 4 367 pi² |
| Terme |
| Négociable |
| Taux de location |
| 38,35 $ CAD/pi²/an 3,20 $ CAD/pi²/mois 167 483 $ CAD/an 13 957 $ CAD/mois |
| Utilisation de l’espace |
| Flex |
| Aménagement |
| construction partielle |
| Disponible |
| Maintenant |
1er étage
| Taille | 4 367 pi² |
| Terme | Négociable |
| Taux de location | 38,35 $ CAD/pi²/an |
| Utilisation de l’espace | Flex |
| Aménagement | construction partielle |
| Disponible | Maintenant |
Fully Air-Conditioned Flex Space Now Available – Prime Bird Road Location Discover 4,367 SF of versatile commercial space at 14253 SW 42nd St #13B, Miami, FL 33175, located in the highly sought-after Bird Road Center. This professional suite is fully air-conditioned, creating an ideal setting for healthcare providers, therapy practices, wellness studios, finance/insurance offices, and more. The unit was previously built out as a restaurant and includes a partial build-out with select equipment still in place, central air & heating, and access to shared common areas. The property also offers ample free parking (412 spaces), a strong business address, and all-inclusive utilities. Currently Vacant: There is no existing sublease or tenant in place. The space is open, ready for occupancy, and available with a minimum sublease term of three years.
- Espace de sous-location disponible auprès du locataire actuel
- Le taux de location ne comprend pas les services publics, les services de bâtiment ou les dépenses immobilières.
- Espace en excellent état
- Climatisation centrale
- Salle de bains privée
- Entreposage sécurisé
- Hauts plafonds
- Fully air-conditioned
Aperçu de la propriété
Prime Bird Road Flex Space | Ready for Immediate Use Position your business in a 4,367 SF commercial suite at 14253 SW 42nd St #13B, Miami, FL 33175, right in the heart of the Bird Road Center. This flexible space is fully air-conditioned, making it a perfect fit for medical offices, wellness and therapy practices, professional services, or creative studios. Formerly designed as a restaurant, the suite offers a partial build-out with select equipment remaining, central heating & cooling, and access to shared common areas. The location also provides over 400 free parking spaces, a strong professional address, and utilities included for convenience.
Faits sur la propriété
Présenté par
JCIS Holdings LLC
| Great space for Medical, Office | 4,367 SF | 14253 SW 42nd St
Hmm, il semble y avoir eu une erreur lors de l’envoi de votre message. Veuillez réessayer.
Merci! Votre message a été envoyé.
