Se Connecter/S’inscrire
Votre courriel a été envoyé.
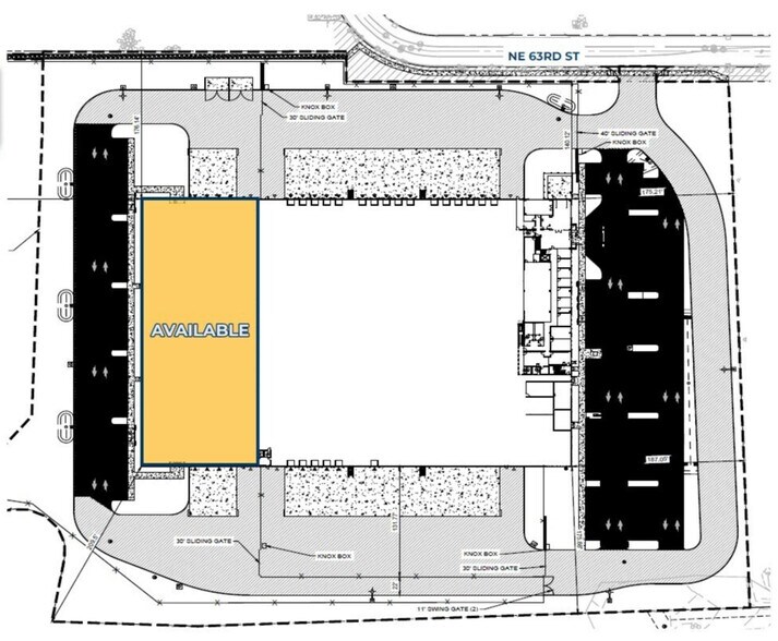
14303 NE 63rd St 15 000–40 447 pi² d'espace disponible • Industriel • 4 étoiles • Vancouver, WA 98682



Certaines informations ont été traduites automatiquement.
Faits saillants
- Cutting-edge warehouse development designed to unlock your business’s potential
- Signalized access to Fourth Plain Blvd via 143rd and 147th for seamless logistics
- Customize your workspace to perfectly suit your needs
Caractéristiques
Hauteur libre
36’
Baies d’entrée
4
Portes de quai de chargement extérieures
20
Quais de transbordement
Oui
Tous les espaces disponibles(1)
Afficher les taux de location en
- Espace
- Taille
- Terme
- Taux de location
- Utilisation de l’espace
- Aménagement
- Disponible
- Le taux de location ne comprend pas les services publics, les services de bâtiment ou les dépenses immobilières.
- 8 quais de chargement
- 2 accès plain-pied
| Espace | Taille | Terme | Taux de location | Utilisation de l’espace | Aménagement | Disponible |
| 1er étage | 15 000 à 40 447 pi² | Négociable | Sur demande Sur demande Sur demande Sur demande | Industriel | - | Maintenant |
1er étage
| Taille |
| 15 000 à 40 447 pi² |
| Terme |
| Négociable |
| Taux de location |
| Sur demande Sur demande Sur demande Sur demande |
| Utilisation de l’espace |
| Industriel |
| Aménagement |
| - |
| Disponible |
| Maintenant |
1 de 2
Vidéos
Visite extérieure 3D Matterport
Visite 3D Matterport
Photos
Vue depuis la rue
Rue
Carte
1er étage
| Taille | 15 000 à 40 447 pi² |
| Terme | Négociable |
| Taux de location | Sur demande |
| Utilisation de l’espace | Industriel |
| Aménagement | - |
| Disponible | Maintenant |
- Le taux de location ne comprend pas les services publics, les services de bâtiment ou les dépenses immobilières.
- 2 accès plain-pied
- 8 quais de chargement
Aperçu de la propriété
Espace industriel : Entrepôt de 15 000 à 40 447 pi²
Faits sur l’installation distribution
Taille du bâtiment
160 086 pi²
Taille du lot
16,99 AC
Année de construction
2024
Construction
Béton renforcé
Système de gicleur
ESFR
Alimentation électrique
Volts: 480
Zonage
IL - Industrie légère
Assez praticable à pied
50/100
Exceptionnellement facile d’accès en voiture
90/100
Transports en commun limités
20/100
Plutôt praticable en vélo
40/100
1 de 11
Vidéos
Visite extérieure 3D Matterport
Visite 3D Matterport
Photos
Vue depuis la rue
Rue
Carte
Présenté par
14303 NE 63rd St
Vous êtes déjà membre? Connectez-vous
Hmm, il semble y avoir eu une erreur lors de l’envoi de votre message. Veuillez réessayer.
Merci! Votre message a été envoyé.




