Votre courriel a été envoyé.
1431 Merill Dr 840–4 280 pi² d'espace disponible • Little Rock, AR 72211

Certaines informations ont été traduites automatiquement.
Faits saillants
- Zoned C-3
- Front door parking
- Excellent corner lot visibility
- Building signage
- Rear access to all suites
- Proximity to popular shopping centers and restaurants and easy access to I-630 & I-430
Tous les espaces disponibles(2)
Afficher les taux de location en
- Espace
- Taille
- Terme
- Taux de location
- Utilisation de l’espace
- Aménagement
- Disponible
This 840 SF +\- second generation salon suite at 1431 Merrill Drive offers a beautifully finished space ideal for salon, spa, or medical aesthetics users. The suite features a modern, upscale interior with tile flooring, contemporary lighting, and a stylish reception and waiting area, creating a welcoming environment for clients. The layout supports multiple styling or treatment stations along with private service areas suitable for aesthetic treatments or specialty services. Located on a highly visible corner lot, the property offers building signage, convenient front-door parking for clients, and rear access to all suites for staff and operational convenience. Surrounded by popular shopping and dining destinations and with easy access to I-630 and I-430, this location provides excellent accessibility and strong exposure in central Little Rock.
- Le taux de location ne comprend pas les services publics, les services de bâtiment ou les dépenses immobilières.
- Disposition du plan d’étage ouverte en général
- Espace en excellent état
- Entièrement construit comme Bureau de services professionnels
- Convient pour 3 à 7 personnes
The beautifully renovated and furnished office space is ideal for professional offices or service firms seeking street presence and easy access.
- Le taux de location ne comprend pas les services publics, les services de bâtiment ou les dépenses immobilières.
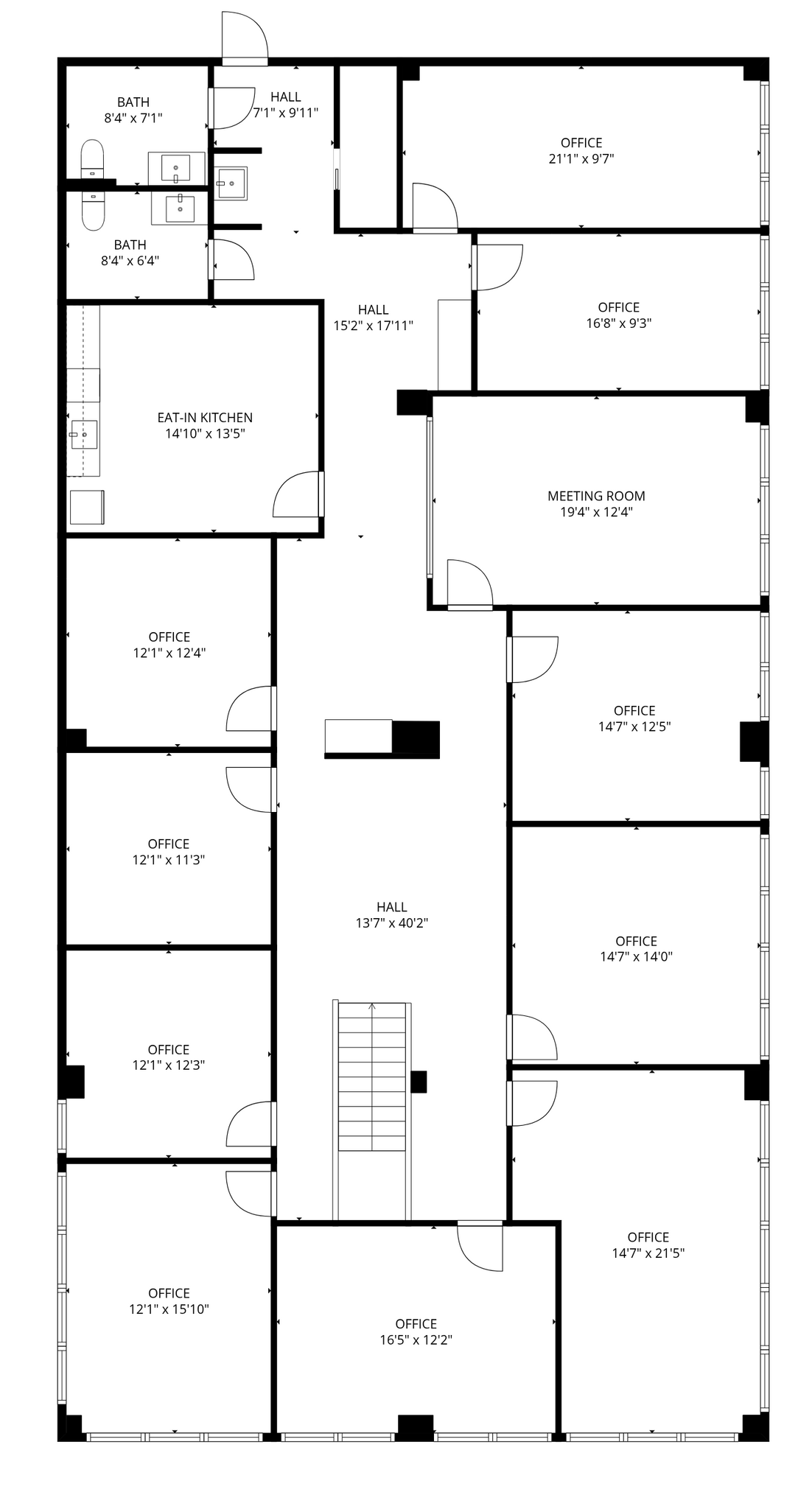
- Convient pour 9 à 28 personnes
- 1 salle de conférence
- Entièrement construit comme Bureau standard
- 7 bureaux privés
| Espace | Taille | Terme | Taux de location | Utilisation de l’espace | Aménagement | Disponible |
| 1er étage, ste G | 840 pi² | Négociable | 25,88 $ CAD/pi²/an 2,16 $ CAD/pi²/mois 21 740 $ CAD/an 1 812 $ CAD/mois | Bureau/Commerce de détail | construction complète | 2026-05-01 |
| 2e étage, ste H | 3 440 pi² | Négociable | 27,24 $ CAD/pi²/an 2,27 $ CAD/pi²/mois 93 717 $ CAD/an 7 810 $ CAD/mois | Bureau | construction complète | Maintenant |
1er étage, ste G
| Taille |
| 840 pi² |
| Terme |
| Négociable |
| Taux de location |
| 25,88 $ CAD/pi²/an 2,16 $ CAD/pi²/mois 21 740 $ CAD/an 1 812 $ CAD/mois |
| Utilisation de l’espace |
| Bureau/Commerce de détail |
| Aménagement |
| construction complète |
| Disponible |
| 2026-05-01 |
2e étage, ste H
| Taille |
| 3 440 pi² |
| Terme |
| Négociable |
| Taux de location |
| 27,24 $ CAD/pi²/an 2,27 $ CAD/pi²/mois 93 717 $ CAD/an 7 810 $ CAD/mois |
| Utilisation de l’espace |
| Bureau |
| Aménagement |
| construction complète |
| Disponible |
| Maintenant |
1er étage, ste G
| Taille | 840 pi² |
| Terme | Négociable |
| Taux de location | 25,88 $ CAD/pi²/an |
| Utilisation de l’espace | Bureau/Commerce de détail |
| Aménagement | construction complète |
| Disponible | 2026-05-01 |
This 840 SF +\- second generation salon suite at 1431 Merrill Drive offers a beautifully finished space ideal for salon, spa, or medical aesthetics users. The suite features a modern, upscale interior with tile flooring, contemporary lighting, and a stylish reception and waiting area, creating a welcoming environment for clients. The layout supports multiple styling or treatment stations along with private service areas suitable for aesthetic treatments or specialty services. Located on a highly visible corner lot, the property offers building signage, convenient front-door parking for clients, and rear access to all suites for staff and operational convenience. Surrounded by popular shopping and dining destinations and with easy access to I-630 and I-430, this location provides excellent accessibility and strong exposure in central Little Rock.
- Le taux de location ne comprend pas les services publics, les services de bâtiment ou les dépenses immobilières.
- Entièrement construit comme Bureau de services professionnels
- Disposition du plan d’étage ouverte en général
- Convient pour 3 à 7 personnes
- Espace en excellent état
2e étage, ste H
| Taille | 3 440 pi² |
| Terme | Négociable |
| Taux de location | 27,24 $ CAD/pi²/an |
| Utilisation de l’espace | Bureau |
| Aménagement | construction complète |
| Disponible | Maintenant |
The beautifully renovated and furnished office space is ideal for professional offices or service firms seeking street presence and easy access.
- Le taux de location ne comprend pas les services publics, les services de bâtiment ou les dépenses immobilières.
- Entièrement construit comme Bureau standard
- Convient pour 9 à 28 personnes
- 7 bureaux privés
- 1 salle de conférence
Faits sur la propriété
Présenté par
P4 Realty Group, LLC
1431 Merill Dr
Hmm, il semble y avoir eu une erreur lors de l’envoi de votre message. Veuillez réessayer.
Merci! Votre message a été envoyé.


