Votre courriel a été envoyé.
Bayview Corporate Center 1433 Hooper Ave 2 698–8 319 pi² d'espace disponible • Bureau • 4 étoiles • Toms River, NJ 08753



Certaines informations ont été traduites automatiquement.
Tous les espaces disponibles(3)
Afficher les taux de location en
- Espace
- Taille
- Terme
- Taux de location
- Utilisation de l’espace
- Aménagement
- Disponible
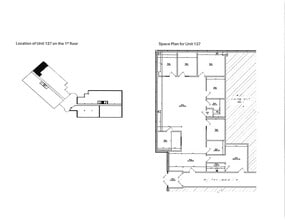
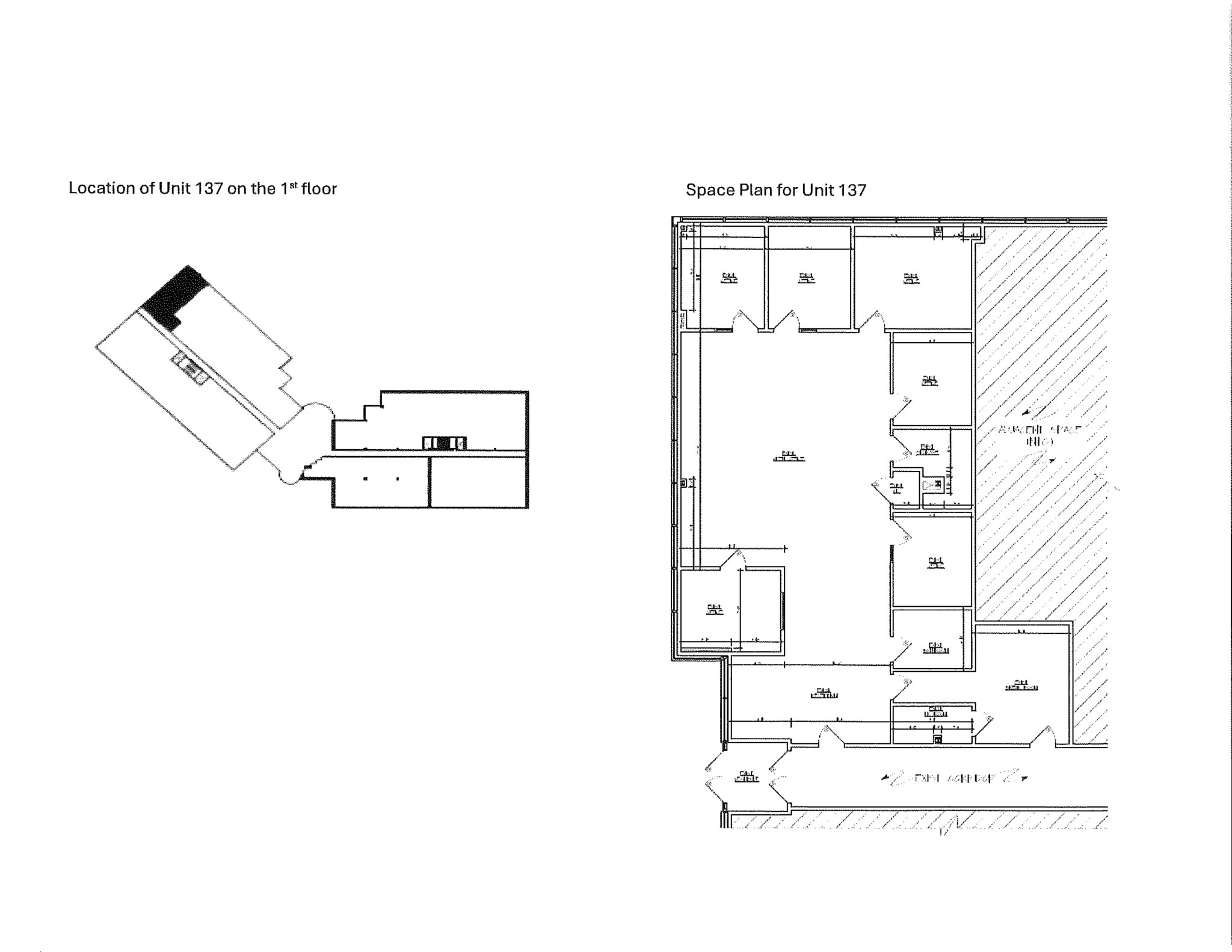
Unit 137 has 2,698 sf and 6/1 parking ration (parking for 750 cars) floor plan attached.
- Le taux inscrit peut ne pas comprendre certains services publics, les services de bâtiment et les dépenses immobilières.
- Entièrement construit comme Bureau standard
Unit 212 is 2730 SF. 6/1 parking ratio (parking for 750 cars). floor plan attached.
- Le taux inscrit peut ne pas comprendre certains services publics, les services de bâtiment et les dépenses immobilières.
- Disposition du plan d’étage ouverte en général
- Détecteur de fumée
- Entièrement construit comme Bureau standard
- Air central et chauffage
- Bâtiment surélevé
Unit 241 is 2,891 SF parking for 750 cars
- Le taux inscrit peut ne pas comprendre certains services publics, les services de bâtiment et les dépenses immobilières.
- Disposition du plan d’étage ouverte en général
- 1 salle de conférence
- Entièrement construit comme Bureau standard
- 12 bureaux privés
- Air central et chauffage
| Espace | Taille | Terme | Taux de location | Utilisation de l’espace | Aménagement | Disponible |
| 1er étage, ste Unit 137 | 2 698 pi² | Négociable | 30,32 $ CAD/pi²/an 2,53 $ CAD/pi²/mois 81 801 $ CAD/an 6 817 $ CAD/mois | Bureau | construction complète | Maintenant |
| 2e étage, ste 212 | 2 730 pi² | 3-10 ans | 30,32 $ CAD/pi²/an 2,53 $ CAD/pi²/mois 82 771 $ CAD/an 6 898 $ CAD/mois | Bureau | construction complète | Bail en cours |
| 2e étage, ste 241 | 2 891 pi² | Négociable | 30,32 $ CAD/pi²/an 2,53 $ CAD/pi²/mois 87 652 $ CAD/an 7 304 $ CAD/mois | Bureau | construction complète | Maintenant |
1er étage, ste Unit 137
| Taille |
| 2 698 pi² |
| Terme |
| Négociable |
| Taux de location |
| 30,32 $ CAD/pi²/an 2,53 $ CAD/pi²/mois 81 801 $ CAD/an 6 817 $ CAD/mois |
| Utilisation de l’espace |
| Bureau |
| Aménagement |
| construction complète |
| Disponible |
| Maintenant |
2e étage, ste 212
| Taille |
| 2 730 pi² |
| Terme |
| 3-10 ans |
| Taux de location |
| 30,32 $ CAD/pi²/an 2,53 $ CAD/pi²/mois 82 771 $ CAD/an 6 898 $ CAD/mois |
| Utilisation de l’espace |
| Bureau |
| Aménagement |
| construction complète |
| Disponible |
| Bail en cours |
2e étage, ste 241
| Taille |
| 2 891 pi² |
| Terme |
| Négociable |
| Taux de location |
| 30,32 $ CAD/pi²/an 2,53 $ CAD/pi²/mois 87 652 $ CAD/an 7 304 $ CAD/mois |
| Utilisation de l’espace |
| Bureau |
| Aménagement |
| construction complète |
| Disponible |
| Maintenant |
1er étage, ste Unit 137
| Taille | 2 698 pi² |
| Terme | Négociable |
| Taux de location | 30,32 $ CAD/pi²/an |
| Utilisation de l’espace | Bureau |
| Aménagement | construction complète |
| Disponible | Maintenant |
Unit 137 has 2,698 sf and 6/1 parking ration (parking for 750 cars) floor plan attached.
- Le taux inscrit peut ne pas comprendre certains services publics, les services de bâtiment et les dépenses immobilières.
- Entièrement construit comme Bureau standard
2e étage, ste 212
| Taille | 2 730 pi² |
| Terme | 3-10 ans |
| Taux de location | 30,32 $ CAD/pi²/an |
| Utilisation de l’espace | Bureau |
| Aménagement | construction complète |
| Disponible | Bail en cours |
Unit 212 is 2730 SF. 6/1 parking ratio (parking for 750 cars). floor plan attached.
- Le taux inscrit peut ne pas comprendre certains services publics, les services de bâtiment et les dépenses immobilières.
- Entièrement construit comme Bureau standard
- Disposition du plan d’étage ouverte en général
- Air central et chauffage
- Détecteur de fumée
- Bâtiment surélevé
2e étage, ste 241
| Taille | 2 891 pi² |
| Terme | Négociable |
| Taux de location | 30,32 $ CAD/pi²/an |
| Utilisation de l’espace | Bureau |
| Aménagement | construction complète |
| Disponible | Maintenant |
Unit 241 is 2,891 SF parking for 750 cars
- Le taux inscrit peut ne pas comprendre certains services publics, les services de bâtiment et les dépenses immobilières.
- Entièrement construit comme Bureau standard
- Disposition du plan d’étage ouverte en général
- 12 bureaux privés
- 1 salle de conférence
- Air central et chauffage
Aperçu de la propriété
L'un des seuls immeubles de bureaux de catégorie A de la rivière Toms, juste sur l'avenue Hooper. Trois étages plus sous-sol, atrium en verre, ascenseurs, salles de bains communes et quelques salles de bain attenantes. Le locateur négociera les tarifs de location à long terme. Excellent emplacement près du centre commercial Ocean County. Emplacement très souhaitable avec un accès facile à partir du GPS et de la route 9. Le tarif de location est de 22$ par pied carré brut modifié, ce qui comprend l'essence et les services de conciergerie. Le locataire paie son propre électricité.
- Atrium
Faits sur la propriété
Présenté par
Bayview Corporate Center | 1433 Hooper Ave
Hmm, il semble y avoir eu une erreur lors de l’envoi de votre message. Veuillez réessayer.
Merci! Votre message a été envoyé.




