Se Connecter/S’inscrire
Votre courriel a été envoyé.
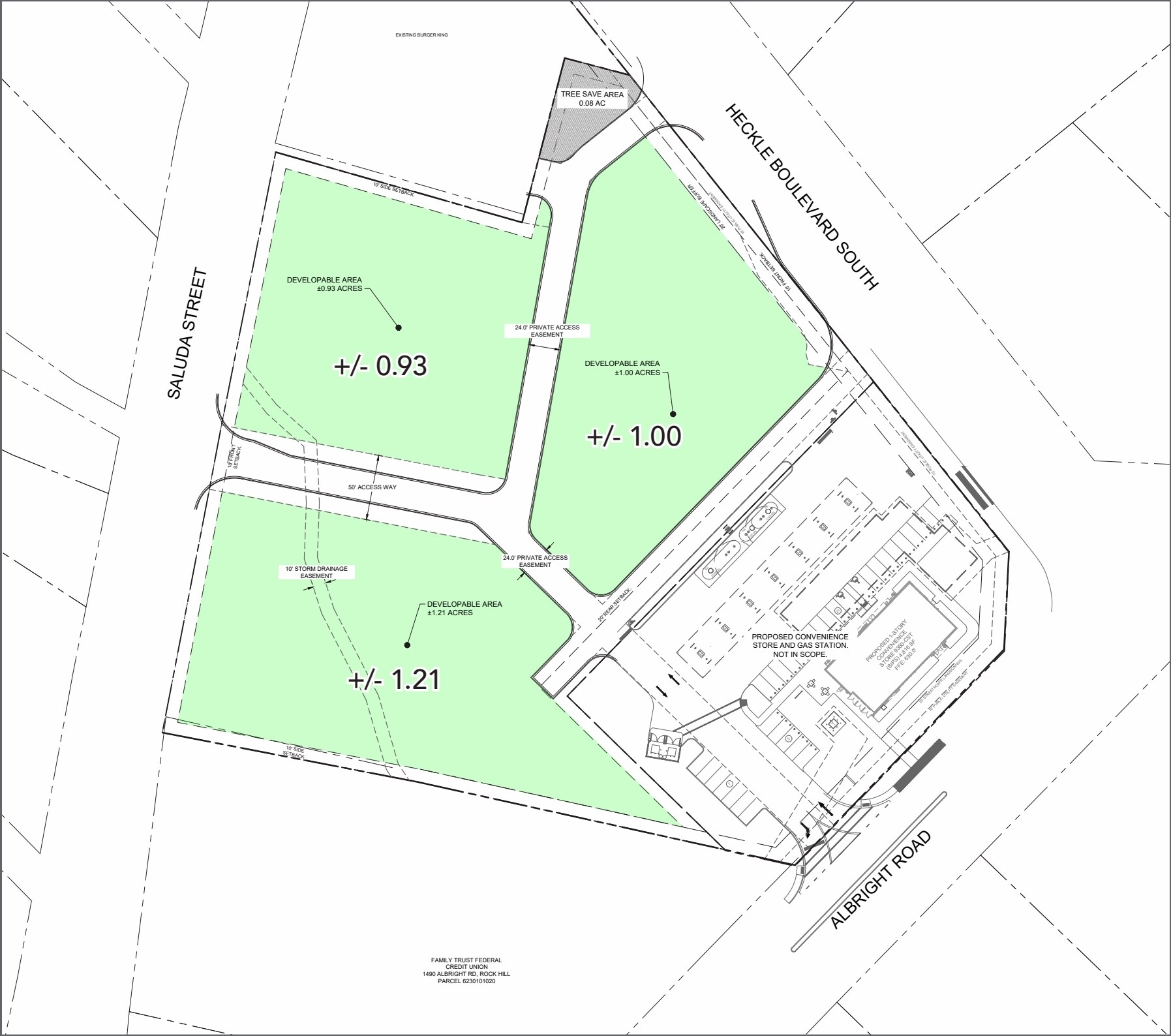
1439 Saluda Street
Rock Hill, SC 29730
Terrain À louer

Certaines informations ont été traduites automatiquement.
Faits saillants
- Adjacent to proposed 7-Eleven.
- Great sites for food & beverage, financial & medical development.
- 3.6 miles from I-77 via Mount Holly Rd.
Faits sur la propriété
| Superficie totale disponible | 1,21 AC | Sous-type de propriété | Terrain commercial |
| Type de propriété | Terrain |
| Superficie totale disponible | 1,21 AC |
| Type de propriété | Terrain |
| Sous-type de propriété | Terrain commercial |
1 de 2
Vidéos
Visite extérieure 3D Matterport
Visite 3D Matterport
Photos
Vue depuis la rue
Rue
Carte
