Votre courriel a été envoyé.
The Ampersand West Tower 144 4th Ave SW 3 048 pi² d'espace disponible • Bureau • Calgary, AB T2P 3N4



Certaines informations ont été traduites automatiquement.
Faits saillants de la sous-location
- Plus 15 relié au stationnement James Short, avec une connexion supplémentaire au Suncor Energy Centre et à la TransCanada Tower.
- À proximité immédiate du réseau de sentiers de la rivière Bow et d'Eau Claire
- À trois pâtés de maisons de la station de train léger.
Tous les espaces disponibles(1)
Afficher les taux de location en
- Espace
- Taille
- Terme
- Taux de location
- Utilisation de l’espace
- Aménagement
- Disponible
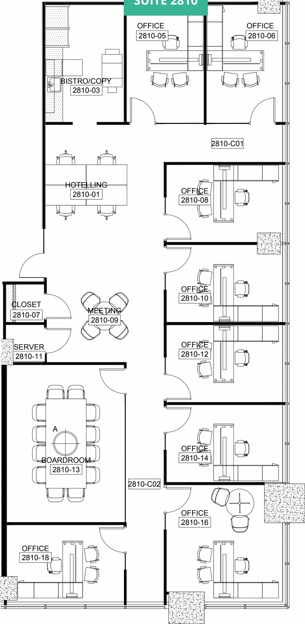
Possibilité de sous-location au dernier étage de la tour ouest de The Ampersand. Prêt à emménager avec des finitions de haute qualité. Les meubles peuvent être mis à disposition. Aménagement extrêmement efficace comprenant 8 bureaux, une cuisine, une salle de réunion, un espace d'accueil/travail.
- Espace de sous-location disponible auprès du locataire actuel
- Convient pour 8 à 25 personnes
- Aire de réception
- Vues en hauteur depuis le dernier étage
- Entièrement construit comme Bureau standard
- 8 bureaux privés
- Exposition directe à l'ascenseur
| Espace | Taille | Terme | Taux de location | Utilisation de l’espace | Aménagement | Disponible |
| 28e étage, ste 2810 | 3 048 pi² | Mai 2029 | Sur demande Sur demande Sur demande Sur demande | Bureau | construction complète | Maintenant |
28e étage, ste 2810
| Taille |
| 3 048 pi² |
| Terme |
| Mai 2029 |
| Taux de location |
| Sur demande Sur demande Sur demande Sur demande |
| Utilisation de l’espace |
| Bureau |
| Aménagement |
| construction complète |
| Disponible |
| Maintenant |
28e étage, ste 2810
| Taille | 3 048 pi² |
| Terme | Mai 2029 |
| Taux de location | Sur demande |
| Utilisation de l’espace | Bureau |
| Aménagement | construction complète |
| Disponible | Maintenant |
Possibilité de sous-location au dernier étage de la tour ouest de The Ampersand. Prêt à emménager avec des finitions de haute qualité. Les meubles peuvent être mis à disposition. Aménagement extrêmement efficace comprenant 8 bureaux, une cuisine, une salle de réunion, un espace d'accueil/travail.
- Espace de sous-location disponible auprès du locataire actuel
- Entièrement construit comme Bureau standard
- Convient pour 8 à 25 personnes
- 8 bureaux privés
- Aire de réception
- Exposition directe à l'ascenseur
- Vues en hauteur depuis le dernier étage
Caractéristiques et commodités
- Atrium
- Ligne d'autobus
- Train de banlieue
Faits sur la propriété
Sélectionner des locataires
- Étage
- Nom du locataire
- Secteur
- 22ᵉ
- AtkinsRéalis
- Services professionnels, scientifiques et techniques
- 17ᵉ
- Canada Development Investment Corporation
- Finance et assurances
- 28ᵉ
- Gateway Tubulars
- Exploitation minière, carrière et extraction de pétrole et de gaz
- 17ᵉ
- Intricate Group
- Exploitation minière, carrière et extraction de pétrole et de gaz
- 2ᵉ
- Keyera
- Exploitation minière, carrière et extraction de pétrole et de gaz
- 27ᵉ
- KV Capital
- Finance et assurances
- 25ᵉ
- Liberty Energy
- Exploitation minière, carrière et extraction de pétrole et de gaz
- 19ᵉ
- Navacord
- Finance et assurances
- 26ᵉ
- Randstad
- Services administratifs et de soutien
- Multiple
- WC Business Centres
- Immobilier
Durabilité
Durabilité
Certification LEED Dirigé par le Conseil du bâtiment durable du Canada (CBDCA), le Leadership in Energy and Environmental Design (LEED) est un programme de certification des bâtiments écologiques axé sur la conception, la construction, l'exploitation et l'entretien de bâtiments, de maisons et de quartiers écologiques. Il vise à aider les propriétaires et les exploitants d'immeubles à être respectueux de l'environnement et à utiliser efficacement les ressources. La certification LEED est un symbole mondialement reconnu de réussite et de leadership en matière de développement durable. Pour obtenir la certification LEED, un projet gagne des points en respectant les conditions préalables et les crédits qui traitent du carbone, de l'énergie, de l'eau, des déchets, du transport, des matériaux, de la santé et de la qualité de l'environnement intérieur. Les projets passent par un processus de vérification et d'examen et se voient attribuer des points correspondant à un niveau de certification LEED: Platine (80+ points) Or (60-79 points) Argent (50-59 points) Certifié (40-49 points)
Présenté par
The Ampersand West Tower | 144 4th Ave SW
Hmm, il semble y avoir eu une erreur lors de l’envoi de votre message. Veuillez réessayer.
Merci! Votre message a été envoyé.




